Bildegalleri

Velkommen til en nyoppført og eksklusiv fritidsbolig i Blådalslia.
Strandafjellet
Nyoppført, eksklusiv fritidsbolig med nydelig beliggenhet og ski-in/ski-out.
Prisantydning6 500 000 kr
- Omkostninger
- 163 830 kr
- Totalpris
- 6 663 830 kr
Nøkkelinfo
- Beliggenhet
- På fjellet
- Boligtype
- Hytte
- Eieform
- Selveier
- Internt bruksareal
- 88 m² (BRA-i)
- Bruksareal
- 88 m²
- Balkong/Terrasse
- 60 m² (TBA)
- Tomteareal
- 872 m² (eiet)
- Byggeår
- 2025
- Soverom
- 3
- Rom
- 5
- Sengeplasser
- 7
- Energimerking
- C - Oransje
Fasiliteter
Barnevennlig
Balkong/Terrasse
Offentlig vann/kloakk
Peis/Ildsted
Turterreng
Utsikt
Bilvei frem
Moderne
Rolig
Innlagt strøm
Innlagt vann
Visning
Ta kontakt for å avtale visning.Husk å lese komplett salgsoppgave før visning. Bestill komplett, utskriftsvennlig salgsoppgave.
VisningspåmeldingOm boligen
Velkommen til en nyoppført fritidsbolig i vakre Blådalslia på Strandafjellet.
Er du på jakt etter en flott familiehytte er dette en super mulighet for deg!
Fritidsboligen inneholder følgende:
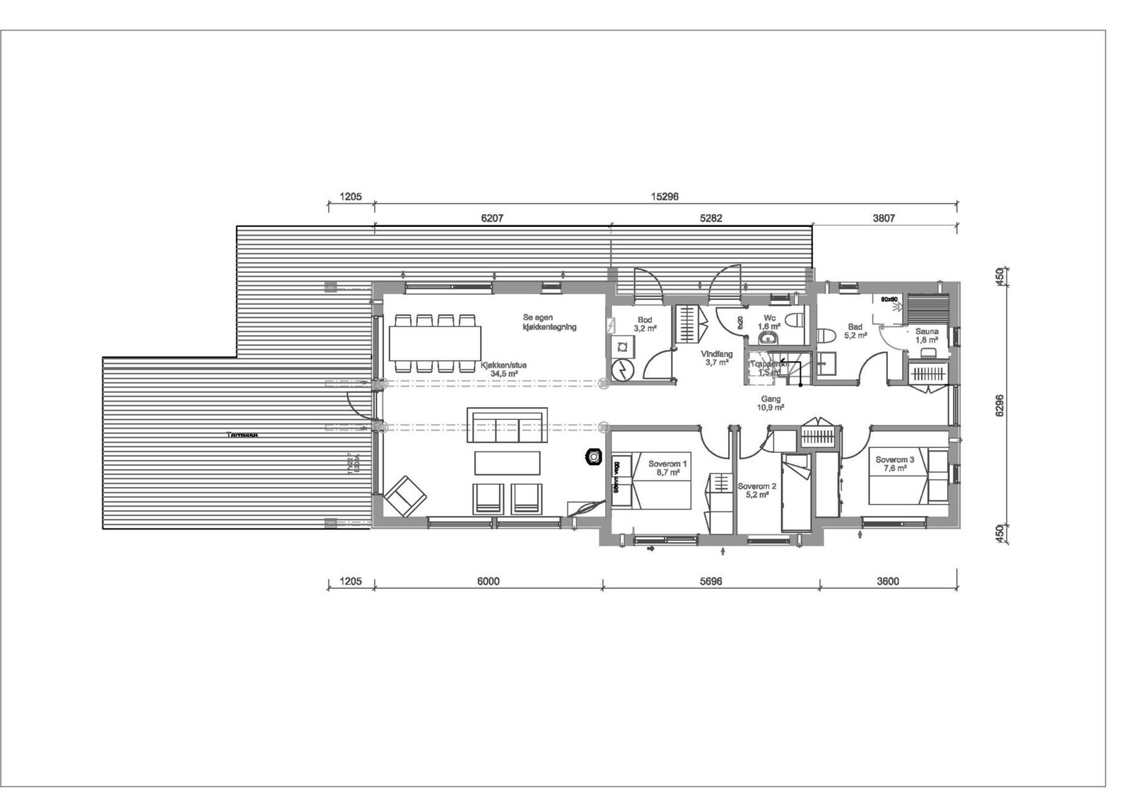
1.etasje: Vindfang, gang, tre soverom, bad, badstue, wc-rom, bod og stue/kjøkken.
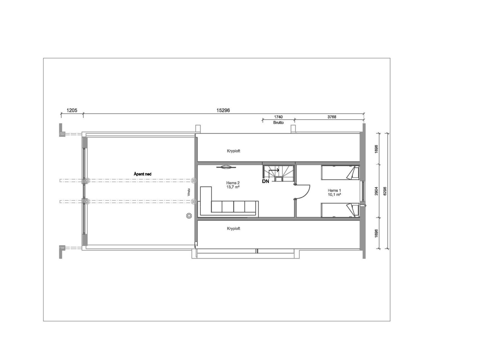
Hems: To hemsrom.
Hytta er oppført med høy og påkostet standard. Her får du blant annet en åpen stue-kjøkkenløsning med god takhøyde og utgang til terrasse på 60 kvm, kvalitetskjøkken fra HTH i sort eik, varmekabler i de fleste rom, tre soverom, bad med flislagt gulv og tilhørende badstue, samt hems for ekstra boltreplass.
Fra eiendommen er det nydelig utsikt, gode solforhold og ski-in/ski-out.
Velkommen på visning!
Er du på jakt etter en flott familiehytte er dette en super mulighet for deg!
Fritidsboligen inneholder følgende:
1.etasje: Vindfang, gang, tre soverom, bad, badstue, wc-rom, bod og stue/kjøkken.
Hems: To hemsrom.
Hytta er oppført med høy og påkostet standard. Her får du blant annet en åpen stue-kjøkkenløsning med god takhøyde og utgang til terrasse på 60 kvm, kvalitetskjøkken fra HTH i sort eik, varmekabler i de fleste rom, tre soverom, bad med flislagt gulv og tilhørende badstue, samt hems for ekstra boltreplass.
Fra eiendommen er det nydelig utsikt, gode solforhold og ski-in/ski-out.
Velkommen på visning!
NB: Knappen for å vise hele beskrivelsen har kun en visuell effekt.
NB: Knappen for å vise hele beskrivelsen har kun en visuell effekt.
Salgsoppgaven beskriver vesentlig og lovpålagt informasjon om eiendommen
Se komplett salgsoppgaveNærområdet
Partners Eiendomsmegling Storfjord
Verdien av lokalkunnskap
Annonseinformasjon
| FINN-kode | 394606929 |
|---|---|
| Sist endret | 27. mars 2026 07:41 |
| Referanse | 21250016 |
Annonsene kan være mangelfulle i forhold til lovpålagt opplysningsplikt. Før bindende avtale inngås oppfordres interessenter til å innhente komplett informasjon fra meglerforetaket, selger eller utleier.
















































