Bildegalleri

3 SOLGT! Fagerlia - Prosjektert hytte i Fagerlia
- Omkostninger
- 28 125 kr
- Totalpris
- 4 828 125 kr
Nøkkelinfo
- Beliggenhet
- På fjellet
- Boligtype
- Hytte
- Eieform
- Selveier
- Bruksareal
- 119 m²
- Byggeår
- 2025
- Soverom
- 3
Fasiliteter
Visning
Ta kontakt for å avtale visning.Om eiendommen
Beliggenhet
På toppen ved alpinsenteret er hyttefeltet Fjellblikk, selve indrefileten av tomter i området. Tomtene ligger høyt opp, det er god utsikt, og du er midt i kjernen av alpinsenteret, og i nærheten av serveringssteder. Herfra finner du også et nettverk med milevis av langrennsløyper i fjell og skog. Løypene prepareres hver dag gjennom hele skisesongen.
En flott tomt i skrånende terreng med gode solforhold. Her har du solen fra tidlig morgen, til sen ettermiddag. Hele området er sørvendt med flott utsikt utover dalen og fjellene i sør.
I Fagerlia bygger du mer enn en hytte, du skaper ditt helt eget fristed. Et fristed spekket med godt innhold for hele familien. Enten du liker vår, sommer, høst eller vinter best finner du hele tiden aktiviteter og opplevelser i vakre Meråker – og Fagerlia er kanskje det mest allsidige området av dem alle.
Generelt
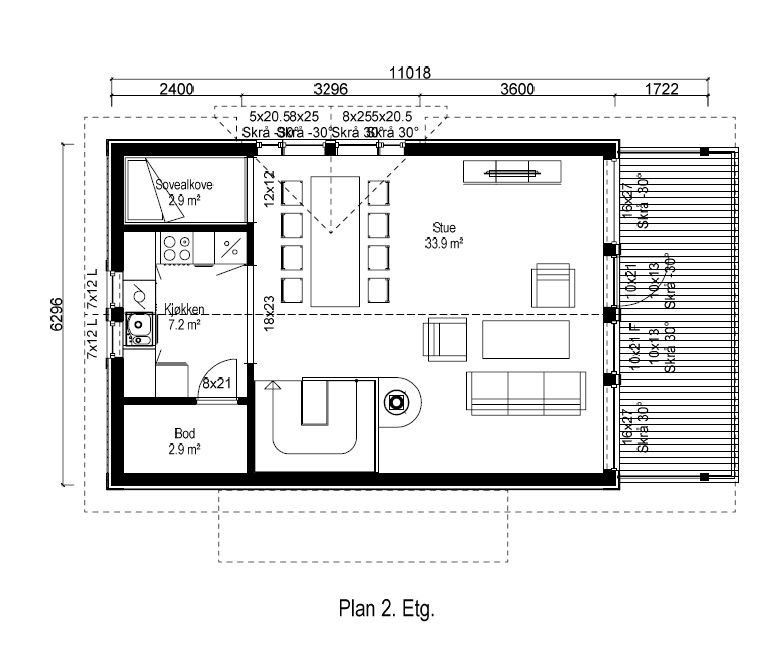
Lennart er en tradisjonell familiehytte med moderne løsninger. Hytta er en kombilaft, og overetasjen er derfor godt utnyttet med god takhøyde. To flotte vindusfasader gir deg formidabel utsikt til naturen utenfor, i tillegg til en overbygd veranda som gir deg le. I underetasjen finner man hele 3 soverom, vaskerom/bod og bad. Fra hovedsoverommet har man tilgang til en koselig overbygd terrasse.
Dette prosjektet består av 6 stk prosjekterte hytter hvor 3 er av hyttetype Lennart. Hyttene bygges fortløpende etterhvert som de blir solgt. Prisen inkluderer tomt (kr 1.125.000,- pr stk) grunnarbeid og støpt plate samt leveranse fra Selbu Boligsystem. Hyttene leveres nøkkelferdig med utgangspunkt i standard leveranse fra Selbuhytta, her er det mulighet for å gjøre endringer hvis ønskelig.
- Tomt nr 04 - kr 4.800.000,- + omk. SOLGT!
- Tomt nr 05 - kr 4.800.000,- + omk. SOLGT!
- Tomt nr 06 - kr 4.800.000,- + omk. SOLGT!
Ved kjøp av hytte vil det være en kontrakt på tomt (Statskog Meråker) og en kontrakt på hytteleveranse.
Ta kontakt for mere info.
Adkomst/Tomteforhold
Kjør E14 og følg denne mot Meråker, like før Meråker sentrum tar du av til venstre ved skiltet Fagerlia. Følg denne veien oppover til toppen mot alpinsenteret. Du får da tomtene på venstre side, vil bli skiltet på tomta.
Innhold
- 3 soverom
- Lekkert bad med flislagt gulv og baderomsplater.
- Stort vaskerom/innvendig bod.
- Stue og kjøkken i 2.etasje.
Standard
YTTERVEGGER
Laminert laft i furu 154x184 ubehandlet med nødvendig tilbehør, beitskier, dumlinger, strekkfisk mm.
Yttervegg i bindingsverk, stående dobbelfals rett kant 19x148
INNERVEGGER
1.etasje, laminert laft, baderomsplater på bad.
2.etasje. Glattpanel 14x120 ubehandlet.
YTTERTAK
Takstoler/sperrer (dimensjoneres etter lokale forhold) Limtredragere etter krav, torvtak.
Ta kontakt for komplette leveranse beskrivelse
Ta kontakt med megler for komplett informasjon
Nærområdet
Selbuhytta
Annonsene kan være mangelfulle i forhold til lovpålagt opplysningsplikt. Før bindende avtale inngås oppfordres interessenter til å innhente komplett informasjon fra meglerforetaket, selger eller utleier.
















