Bildegalleri

Visningshytte Hellerud
Målselv Fjellandsby - attraktiv tomt klar for bygging av Saltdalshytte!
- Omkostninger
- 15 000 kr
- Totalpris
- 3 870 000 kr
Nøkkelinfo
- Beliggenhet
- På fjellet
- Boligtype
- Hytte
- Eieform
- Eier (Selveier)
- Bruksareal
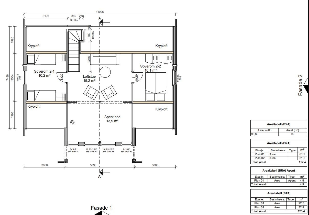
- 112 m²
- Tomteareal
- 937 m² (eiet)
- Grunnflate
- 89 m²
- Bruttoareal
- 125 m²
- Byggeår
- 2025
- Soverom
- 4
- Meter over havet
- 275
Fasiliteter
Visning
Ta kontakt for å avtale visning.Om eiendommen
Beliggenhet
Bilder i annonsen er eksempelbilder fra modellen Solheim. Bilder og illustrasjoner kan avvike fra det som leveres som standard leveranse.
I målselv Fjellandsby selges en fantastisk utsiktstomt med en Saltdalshytte. Opplev spennende aktiviteter året rundt – fra nedfart i alpinanlegget, guidede trugeturer og hundekjøring om vinteren til fjellturer og fiske om sommeren. Perfekt for hele familien!
Annonsen viser eksempel ved bygging av modell Solheim 100.
Skogsbærveien ligger nært alpinløypen og skitrekk og beliggenheten kan med rette betegnes som ski inn - ski ut i tillegg til panoramautsikt.
Generelt
Kjøp av tomt forutsetter bygging av en hvilken som helst Saltdalshytte. Det signeres to kontrakter. En for tomt og en for hytte. Tomt selges for kunde.
Priseksemplet i annonsen gjelder for nøkkelferdig standard leveranse av modellen en Solheim 100 med takvinkel 35 grader.
Pris forutsetter hytte på fundament av støpt såle. Grunnarbeid og fundament er ikke inkludert i pris.
Tomt er priset til kr. 500 000,-. Det er vei til tomt, vann/avløp og strøm til tomtegrensen. Utgifter til tilknyting vann/strøm samt kommunale gebyrer er ikke inkludert i prisen og faktureres kjøper (ca. kr. 15 000)
Mot tillegg i pris kan det gjøres tilvalg på hytte utovert standard leveranse hytte.
Dokumentavgift tomt og tinglysningsgebyrer er stipulert til kr. 15 000,- og faktureres kjøper.
Adkomst/Tomteforhold
Det er ca. 2 timers kjøretur fra Tromsø til Målselv Fjellandsby og 20 min til Bardufoss flyplass.
Innhold
Modellen Solheim:
Solheim er vår mest populære hytteserie, og finnes i flere størrelser. Felles for alle modellene er et moderne og samtidig klassisk eksteriør, der stua er trukket fram i en luftig vinkel med vinduer som strekker seg helt opp til skråtaket.
Et annet fellestrekk er kjøkkenet og soverommene, som er plassert på hver sin side av denne vinkelen. Hovedplanet inneholder også to boder, mens loftet kan by på to disponible-/soverom, og en loftstue med et galleri mot stua og utsikten.
Solheim kan tilpasses på en rekke måter. For eksempel kan du velge mellom 30 og 35 graders takvinkel, eller alternative planløsninger som gir deg et ekstra bad, sauna og utebod. Det finnes også ulike typer takoverbygg som skaper en lun uteplass eller et skjermet inngangsparti. Til interiøret kan du velge mellom seks ulike fargeserier, der panel, listverk, parkett, fliser, dører og andre detaljer er nøye avstemt mot hverandre, for å skape en helhetlig stil tilpasset din personlige smak.
Standard
Ta kontakt med megler for komplett informasjon
Nærområdet
Saltdalshytta
Annonsene kan være mangelfulle i forhold til lovpålagt opplysningsplikt. Før bindende avtale inngås oppfordres interessenter til å innhente komplett informasjon fra meglerforetaket, selger eller utleier.


















