Bildegalleri

Eiendomsmegler Vest v/ Andreas Anda Dalmar har gleden av å presentere Langedalsvegen 12!
Seljestad/Solfonn
Lekker og familievennlig fritidsleilighet - P-plass i lukket garasjeanlegg - Elbil-lader - Felles basseng
Prisantydning1 990 000 kr
- Omkostninger
- 62 740 kr
- Totalpris
- 2 059 771 kr
- Kommunale avg.
- 10 136 kr per år
- Fellesgjeld
- 7 031 kr
- Felleskost/mnd.
- 3 022 kr
Nøkkelinfo
- Beliggenhet
- På fjellet
- Boligtype
- Leilighet
- Eieform
- Eier (Selveier)
- Internt bruksareal
- 50 m² (BRA-i)
- Bruksareal
- 50 m²
- Balkong/Terrasse
- 10 m² (TBA)
- Tomteareal
- 13 258 m² (eiet)
- Byggeår
- 2009
- Soverom
- 2
- Rom
- 3
- Energimerking
- C - Oransje
- Overtakelse
- Overtagelsesdato skal fastsettes før aksept av bud. Ved spesielle ønsker skal dette fremkomme som forbehold i evt. bud.
Fasiliteter
Balkong/Terrasse
Barnevennlig
Bilvei frem
Garasje/P-plass
Kabel-TV
Peis/Ildsted
Rolig
Utsikt
Innlagt strøm
Offentlig vann/kloakk
Turterreng
Lademulighet
Visning
Velkommen til visning! Visning avtales direkte med megler eller eier på mobil 909 88 674.
Husk å lese komplett salgsoppgave før visning. Bestill komplett, utskriftsvennlig salgsoppgave.
VisningspåmeldingOm boligen
Eiendomsmegler Vest v/ Andreas Anda Dalmar har gleden av å presentere Langedalsvegen 12!
En lekker og familievennlig fritidsleilighet på Seljestad i populære Solfonn Family Resort, kun 10 minutters kjøring fra Røldal. Leiligheten egner seg til både sommer og vinterbruk med flotte turområder rett utenfor døren om sommeren, samt preparerte skiløyper rett utenfor døren. Sameiet byr på felles svømmebasseng, fotballbinge, akebakke og restaurant mm.
Innvendig holder leiligheten gjennomgående god standard og en tidsriktig fargepalett. Åpen stue- og kjøkkenløsning med peis og utgang til herlig balkong på 10 m². Helfliset bad med varmekabler og badstue. To gode soverom. Fast p-plass i lukket garasjeanlegg med heis.
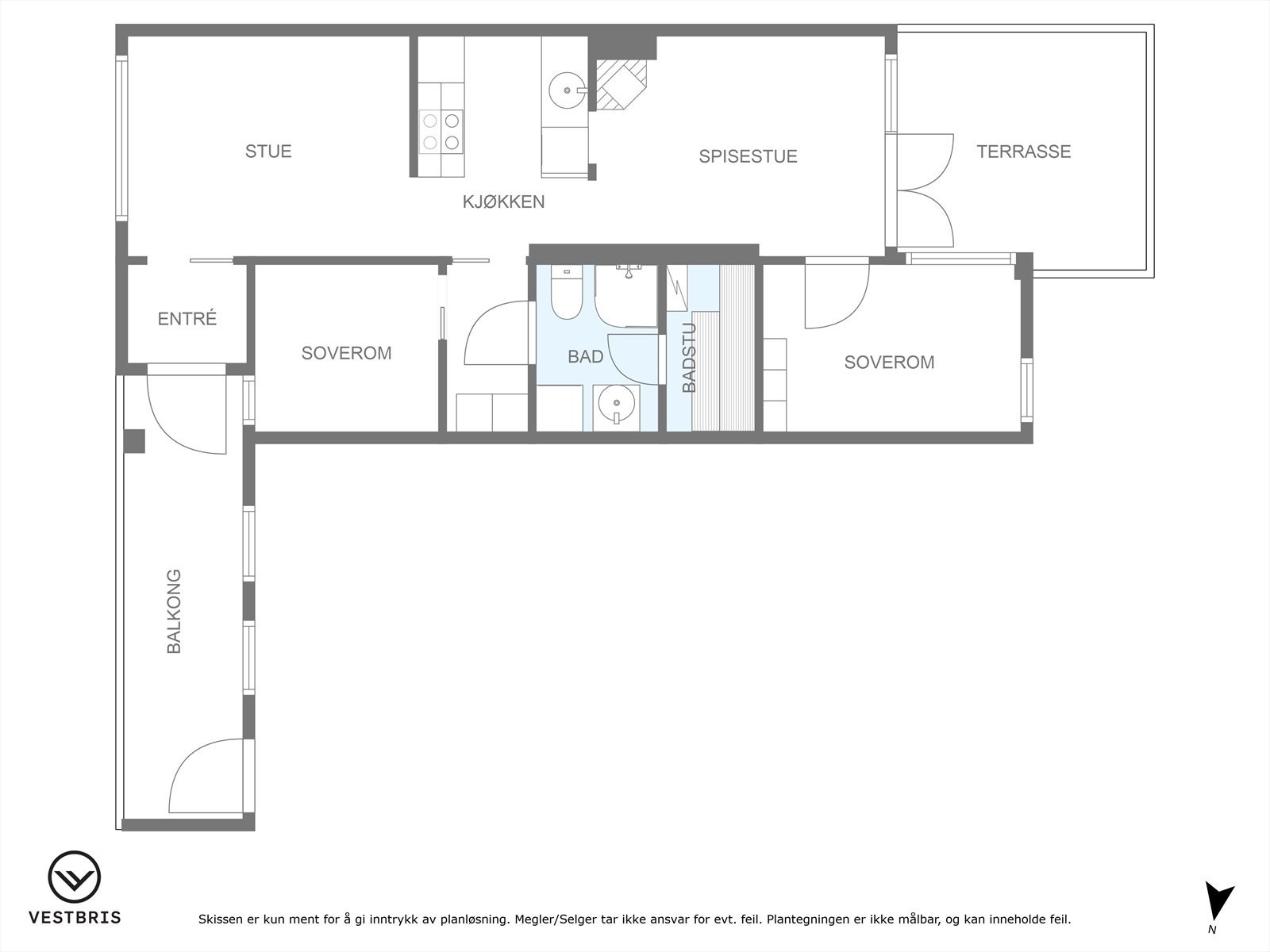
3. etg: Entré, gang, stue/kjøkken, 2 soverom, bad, badstue. Balkong.
Skibod.
En lekker og familievennlig fritidsleilighet på Seljestad i populære Solfonn Family Resort, kun 10 minutters kjøring fra Røldal. Leiligheten egner seg til både sommer og vinterbruk med flotte turområder rett utenfor døren om sommeren, samt preparerte skiløyper rett utenfor døren. Sameiet byr på felles svømmebasseng, fotballbinge, akebakke og restaurant mm.
Innvendig holder leiligheten gjennomgående god standard og en tidsriktig fargepalett. Åpen stue- og kjøkkenløsning med peis og utgang til herlig balkong på 10 m². Helfliset bad med varmekabler og badstue. To gode soverom. Fast p-plass i lukket garasjeanlegg med heis.
3. etg: Entré, gang, stue/kjøkken, 2 soverom, bad, badstue. Balkong.
Skibod.
NB: Knappen for å vise hele beskrivelsen har kun en visuell effekt.
NB: Knappen for å vise hele beskrivelsen har kun en visuell effekt.
Salgsoppgaven beskriver vesentlig og lovpålagt informasjon om eiendommen
Se komplett salgsoppgaveNyttige lenker
Nærområdet
Eiendomsmegler Norge Stavanger
Det viktigste stedet i Norge er der du bor
Annonseinformasjon
| FINN-kode | 393570020 |
|---|---|
| Sist endret | 05. nov. 2025 09:47 |
| Referanse | 20240210 |
Annonsene kan være mangelfulle i forhold til lovpålagt opplysningsplikt. Før bindende avtale inngås oppfordres interessenter til å innhente komplett informasjon fra meglerforetaket, selger eller utleier.















































