Bildegalleri

NY PRIS! Nyoppført plassbygget hytte - lun og lekker med flott utsikt - 1 000 m.o.h
Prisantydning6 390 000 kr
- Omkostninger
- 38 820 kr
- Totalpris
- 6 428 820 kr
- Kommunale avg.
- 1 816 kr per år
- Eiendomsskatt
- 4 090 kr per år
Nøkkelinfo
- Beliggenhet
- På fjellet
- Boligtype
- Hytte
- Eieform
- Eier (Selveier)
- Internt bruksareal
- 116 m² (BRA-i)
- Bruksareal
- 119 m²
- Eksternt bruksareal
- 3 m² (BRA-e)
- Tomteareal
- 1 195 m² (eiet)
- Byggeår
- 2023
- Soverom
- 3
- Rom
- 4
Fasiliteter
Innlagt vann
Barnevennlig
Bilvei frem
Peis/Ildsted
Rolig
Utsikt
Innlagt strøm
Turterreng
Visning
Ta kontakt for å avtale visning.Husk å lese komplett salgsoppgave før visning. Bestill komplett, utskriftsvennlig salgsoppgave.
VisningspåmeldingOm boligen
Dette er det perfekte stedet for den som måtte ønske å ha ro og fred på fjellet, her er du omringet av storslagen natur som gir rom for fantastiske opplevelser. Det er ypperlige turmuligheter rett utenfor døra, og vinterstid er det preparerte langrennsløyper i umiddelbar nærhet, samtidig er det kun 7 km til nærmeste alpinanlegg på Kikut. Her er også gode fiske- og jaktmuligheter.
Hytta er åpen, romslig og har store vindusflater med flott utsikt. Interiøret og fargene er lune og behagelige.
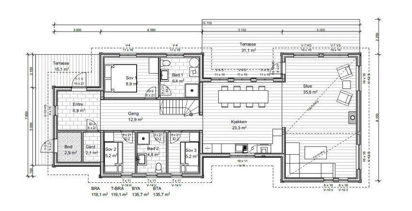
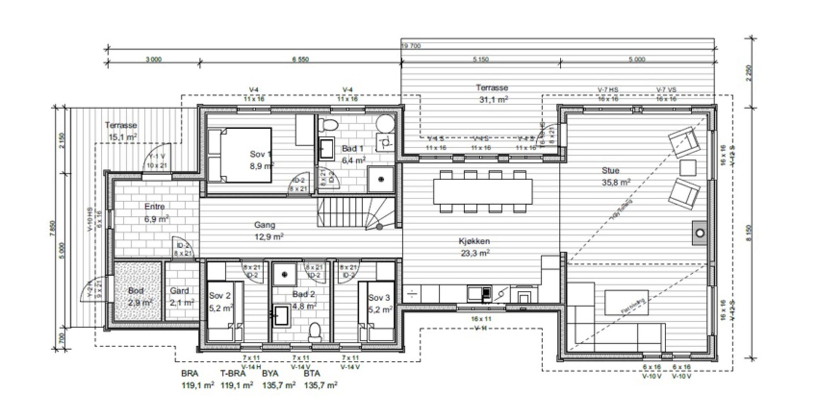
Hytta går over to etasjer og inneholder stue, kjøkken, 3 soverom, 2 bad/wc, bod/garderobe, entré/gang og bod med adkomst utenfra.
Loftsetasje med to innredede rom (ikke målbart areal grunnet lav romhøyde) - gulvareal på 28 kvm.
Hytta er åpen, romslig og har store vindusflater med flott utsikt. Interiøret og fargene er lune og behagelige.
Hytta går over to etasjer og inneholder stue, kjøkken, 3 soverom, 2 bad/wc, bod/garderobe, entré/gang og bod med adkomst utenfra.
Loftsetasje med to innredede rom (ikke målbart areal grunnet lav romhøyde) - gulvareal på 28 kvm.
NB: Knappen for å vise hele beskrivelsen har kun en visuell effekt.
NB: Knappen for å vise hele beskrivelsen har kun en visuell effekt.
Salgsoppgaven beskriver vesentlig og lovpålagt informasjon om eiendommen
Se komplett salgsoppgaveNyttige lenker
Nærområdet
EiendomsMegler 1 Fjellmegleren
Vi loser deg trygt gjennom hele boligsalget
Annonseinformasjon
| FINN-kode | 393348580 |
|---|---|
| Sist endret | 16. des. 2025 15:20 |
| Referanse | 1530250003 |
Annonsene kan være mangelfulle i forhold til lovpålagt opplysningsplikt. Før bindende avtale inngås oppfordres interessenter til å innhente komplett informasjon fra meglerforetaket, selger eller utleier.






























