Bildegalleri

Velkommen til Solbergvegen 42, presentert av Privatmegleren Hamar v/ Elias Kaulum!
Oppgradert helårshytte med nærhet til turstier og løypenett | Anneks | Innlagt strøm (2024) | Lave årlige kostnader
- Omkostninger
- 42 840 kr
- Totalpris
- 932 840 kr
- Formuesverdi
- 196 263 kr
Nøkkelinfo
- Beliggenhet
- Innlandet
- Boligtype
- Hytte
- Eieform
- Eier (Selveier)
- Internt bruksareal
- 53 m² (BRA-i)
- Bruksareal
- 72 m²
- Eksternt bruksareal
- 19 m² (BRA-e)
- Balkong/Terrasse
- 12 m² (TBA)
- Tomteareal
- 958 m² (eiet)
- Byggeår
- 1980
- Soverom
- 2
- Rom
- 3
- Energimerking
- G - Oransje
Fasiliteter
Visning
Husk å lese komplett salgsoppgave før visning. Bestill komplett, utskriftsvennlig salgsoppgave.
VisningspåmeldingOm boligen
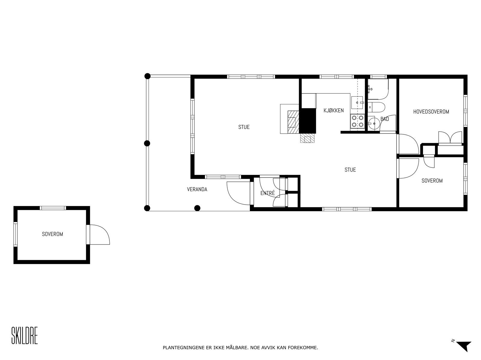
Velkommen til Solbergvegen 42 - en koselig hytte som har sett flere oppgraderinger i 2024, vakkert plassert i naturskjønne omgivelser.
Hytten har fått installert dusjkabinett på baderommet, nytt røranlegg inn og ut av hytten, og et rom er omgjort til ekstra soverom. Hytten har to soverom, ett baderom, kjøkken, stue og entre. Stuen har en åpen peis og spisestuen en vedovn som gir ekstra varme. Kjøkkenet har god skap- og benkeplass med enkel tilgang fra alle rom. Beliggenheten byr på fantastisk utsikt og rolig, landlig atmosfære.
Merk deg dette:
- Nytt el-anlegg fra 2024 i hele hytten.
- Fra 1 til 2 soverom der badet har fått dusjkabinett
- Lave faste årlige kostnader på kun ca. 3.500,- kr.
Eiendommen har også to tilbygg: et anneks/uthus og en utebod med utedo.
Velkommen til visning!
Salgsoppgaven beskriver vesentlig og lovpålagt informasjon om eiendommen
Se komplett salgsoppgaveNyttige lenker
Nærområdet
PrivatMegleren Hamar
Annonseinformasjon
| FINN-kode | 392624891 |
|---|---|
| Sist endret | 26. des. 2025 10:14 |
| Referanse | 320250009 |
Annonsene kan være mangelfulle i forhold til lovpålagt opplysningsplikt. Før bindende avtale inngås oppfordres interessenter til å innhente komplett informasjon fra meglerforetaket, selger eller utleier.


































