Bildegalleri

Velkommen til Sjusjøenden 33- Innholdsrik hytte en rolig beligghet og svært gode solforhold
Eggedal
Flott og nyere hytte beliggende i rolig blindvei - Solrik tomt - Skiløyper og badevann rett ved
Prisantydning4 250 000 kr
- Omkostninger
- 107 490 kr
- Totalpris
- 4 357 490 kr
- Eiendomsskatt
- 5 640 kr per år
Nøkkelinfo
- Beliggenhet
- På fjellet
- Boligtype
- Hytte
- Eieform
- Eier (Selveier)
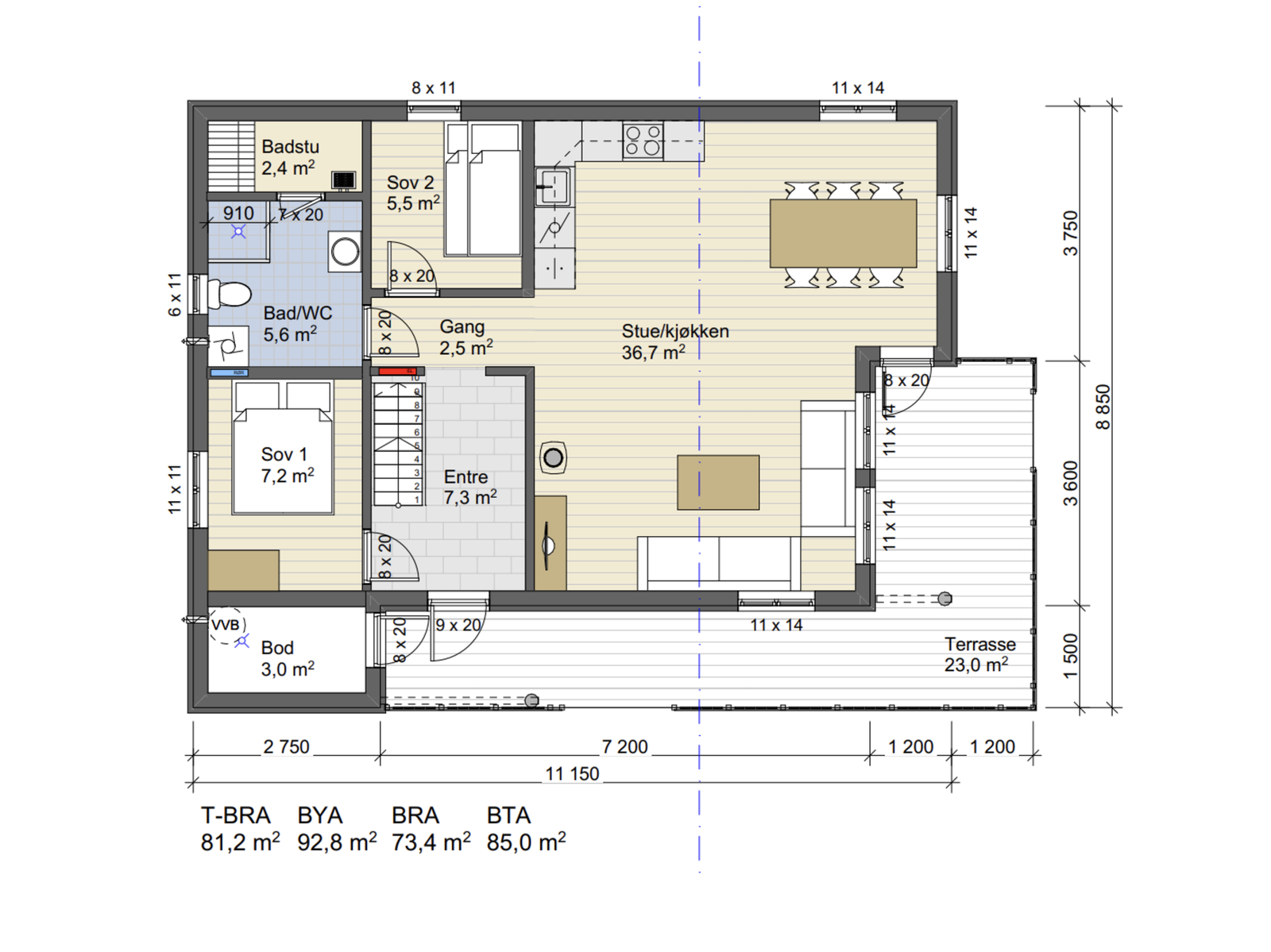
- Internt bruksareal
- 78 m² (BRA-i)
- Bruksareal
- 82 m²
- Eksternt bruksareal
- 4 m² (BRA-e)
- Balkong/Terrasse
- 21 m² (TBA)
- Tomteareal
- 1 179 m² (eiet)
- Byggeår
- 2023
- Soverom
- 4
- Rom
- 5
- Energimerking
- C - Oransje
Fasiliteter
Balkong/Terrasse
Garasje/P-plass
Fiskemulighet
Offentlig vann/kloakk
Peis/Ildsted
Turterreng
Utsikt
Alpinanlegg
Bilvei frem
Innlagt strøm
Innlagt vann
Lademulighet
Visning
Ta kontakt for å avtale visning.Husk å lese komplett salgsoppgave før visning. Bestill komplett, utskriftsvennlig salgsoppgave.
VisningspåmeldingOm boligen
Flott hytte beliggende i Eggedal (Norefjell vest). Vakker natur og rike friluftsmuligheter rett utenfor døren, som skiløyper og alpinbakker vinterstid samt turstier og nærhet til innsjø sommerstid. Vestvendt tomt med svært gode solforhold. Innholdsrik hytte med godt med sengeplasser og sosiale områder. Hytten ble ferdigstilt i 2023 og fremstår godt ivaretatt. Stuen har store vinduer som slipper inn godt med lys og ikke minst naturen utenfor. Her er også utgangen til den overbyggede terrassen på fremsiden av hytten. Moderne kjøkken med integrerte hvitevarer og godt med lagringsplass. Praktisk og pent flislagt bad med dusjhjørne og opplegg for vaskemaskin. Det er badstue i tilknytting til badet. I første etasje er det 2 gode soverom og på hemsen finner man 2 romslige hemsrom benyttet som soverom samt en koselig loftstue. Gulvareal på hems er 42 kvm.
En svært hyggelig hytte med en veldig god beliggenhet og svært gode solforhold.
En svært hyggelig hytte med en veldig god beliggenhet og svært gode solforhold.
NB: Knappen for å vise hele beskrivelsen har kun en visuell effekt.
NB: Knappen for å vise hele beskrivelsen har kun en visuell effekt.
Salgsoppgaven beskriver vesentlig og lovpålagt informasjon om eiendommen
Se komplett salgsoppgaveNærområdet
Eiendomsmeglerne AS
Erfaring og lokalkunnskap
Annonseinformasjon
| FINN-kode | 392437287 |
|---|---|
| Sist endret | 27. des. 2025 22:46 |
| Referanse | 202250015 |
Annonsene kan være mangelfulle i forhold til lovpålagt opplysningsplikt. Før bindende avtale inngås oppfordres interessenter til å innhente komplett informasjon fra meglerforetaket, selger eller utleier.

































