Bildegalleri

Velkommen til Einerstadveien 39!
Inaktiv
Oppussingsobjekt i idyllisk beliggenhet | Eiet tomt på 1,9 mål |Oppr 2 soverom | Mulighet til å sette sitt preg på hytta
Prisantydning950 000 kr
- Omkostninger
- 25 100 kr
- Totalpris
- 975 100 kr
- Kommunale avg.
- 7 105 kr per år
Nøkkelinfo
- Beliggenhet
- Innlandet
- Boligtype
- Hytte
- Eieform
- Eier (Selveier)
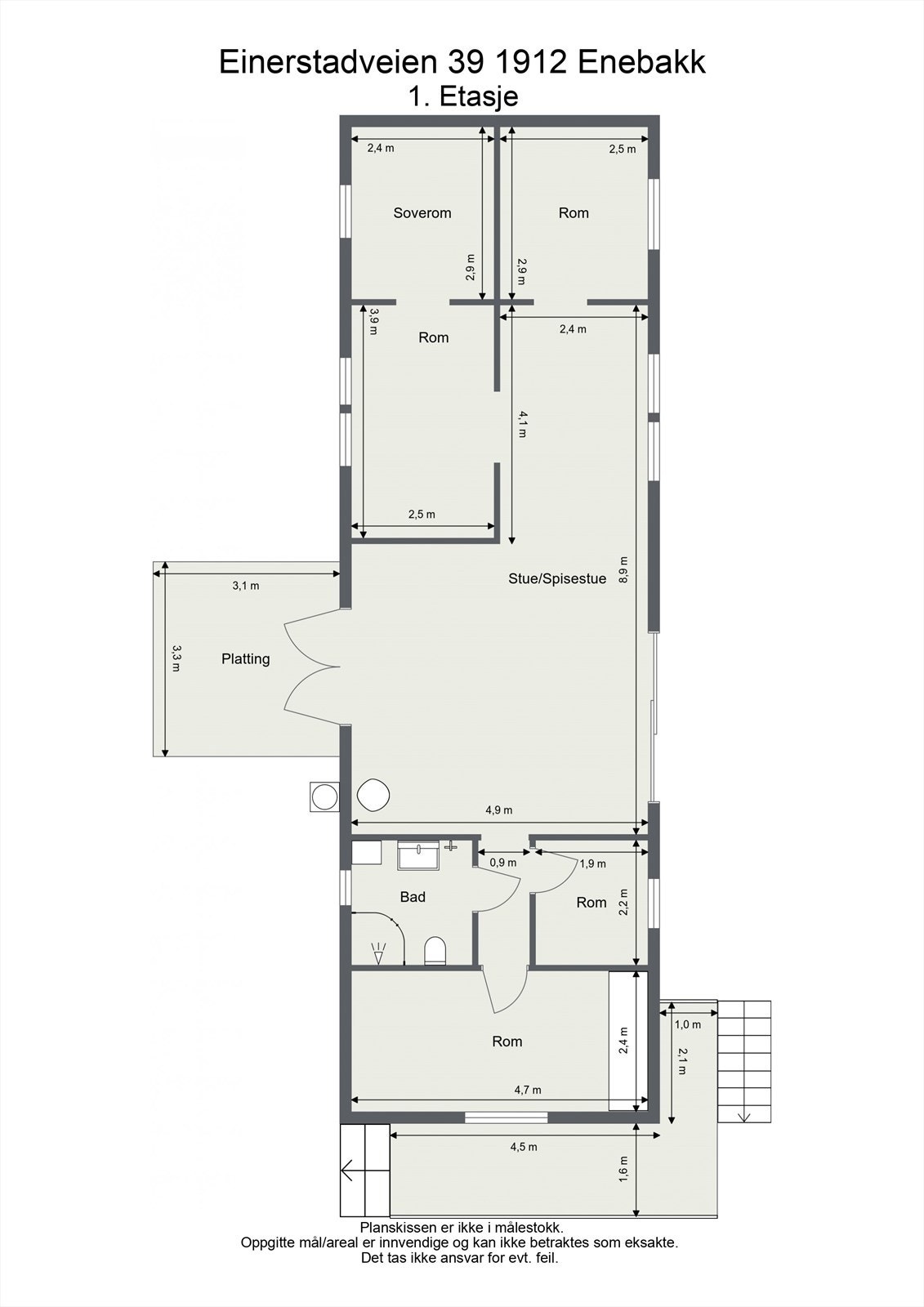
- Internt bruksareal
- 82 m² (BRA-i)
- Bruksareal
- 82 m²
- Tomteareal
- 1 956 m² (eiet)
- Byggeår
- 1975
- Soverom
- 1
- Rom
- 5
- Energimerking
- F - Rød
- Overtakelse
- Etter nærmere avtale med selger. Vær vennlig å angi ønsket overtagelsesdato i vedlagte budskjema.
Fasiliteter
Balkong/Terrasse
Barnevennlig
Garasje/P-plass
Hage
Rolig
Turterreng
Visning
Ring eiendomsmegler Alexandra Askeland (41 42 71 96) for å avtale tidspunkt for evt. privatvisning. Visninger hvor det ikke er påmeldte på forhånd risikerer å ikke bli avholdt.
Husk å lese komplett salgsoppgave før visning. Bestill komplett, utskriftsvennlig salgsoppgave.
VisningspåmeldingOm boligen
Drømmer du om å skape ditt helt unike uttrykk på en hytte? Nå har du sjansen! Velkommen til Einerstadveien 39 - en fritidseiendom med skikkelig hyttesjarm! Denne hytten har usjenert og rolig beliggenhet på et hyttefelt i Enebakk med naturskjønne omgivelser. I tillegg byr hytten på et sjeldent spennende utgangspunkt, hvor stue og kjøkken står klare for din kreative visjon. Selger har allerede tatt jobben med å rive vegger og klargjøre rommene, og byggematerialer følger med.
Her er det kun fantasien som setter grenser for hvordan du kan forme dette arealet. Vil du ha en åpen og sosial løsning med stort kjøkken og stue i ett? Eller kanskje en koselig, lun atmosfære med moderne detaljer? Mulighetene er mange, og du kan sette ditt helt eget preg på denne hytten.
Velkommen til visning!
Her er det kun fantasien som setter grenser for hvordan du kan forme dette arealet. Vil du ha en åpen og sosial løsning med stort kjøkken og stue i ett? Eller kanskje en koselig, lun atmosfære med moderne detaljer? Mulighetene er mange, og du kan sette ditt helt eget preg på denne hytten.
Velkommen til visning!
NB: Knappen for å vise hele beskrivelsen har kun en visuell effekt.
NB: Knappen for å vise hele beskrivelsen har kun en visuell effekt.
Salgsoppgaven beskriver vesentlig og lovpålagt informasjon om eiendommen
Se komplett salgsoppgaveNyttige lenker
Nærområdet
EiendomsMegler 1 Lillestrøm
Vi loser deg trygt gjennom hele boligsalget
Annonsene kan være mangelfulle i forhold til lovpålagt opplysningsplikt. Før bindende avtale inngås oppfordres interessenter til å innhente komplett informasjon fra meglerforetaket, selger eller utleier.



























