Bildegalleri

Velkommen til Øvre Hoppmannsknuten! Fantastisk panoramautsikt, gode solforhold og en etterspurt beliggenhet i Hønedalen.
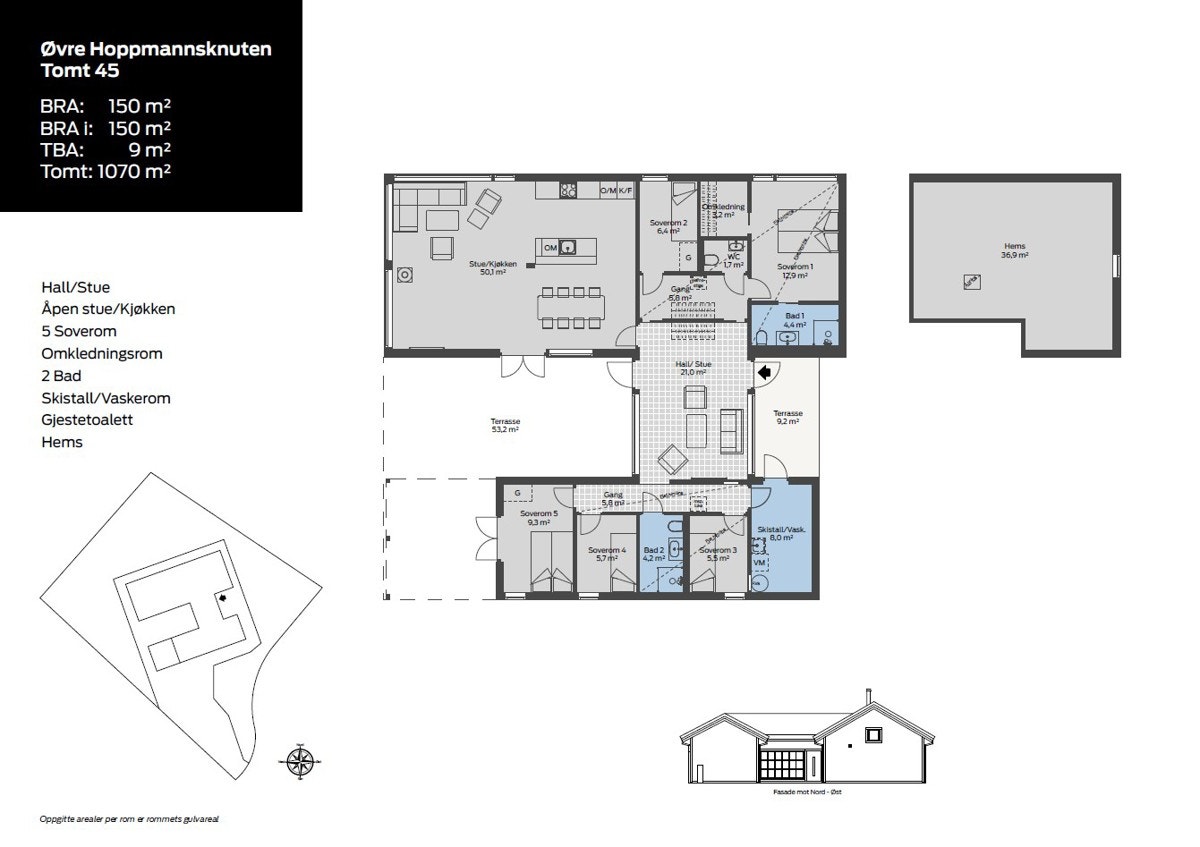
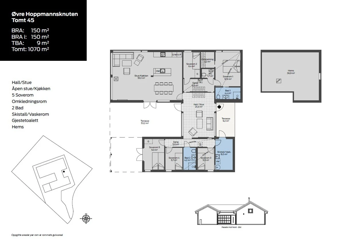
KLAR FOR OVERTAKELSE! Panoramautsikt | Mye inkl i pris | 5 sov | 2 stuer | 2 bad + Wc | Skistall | Hems
- Omkostninger
- 178 069 kr
- Totalpris
- 8 028 069 kr
Nøkkelinfo
- Beliggenhet
- På fjellet
- Boligtype
- Hytte
- Eieform
- Eier (Selveier)
- Internt bruksareal
- 150 m² (BRA-i)
- Bruksareal
- 150 m²
- Tomteareal
- 1 070 m² (eiet)
- Byggeår
- 2024
- Soverom
- 5
- Rom
- 7
Visning
Husk å lese komplett salgsoppgave før visning. Bestill komplett, utskriftsvennlig salgsoppgave.
Om boligen
Hytten er ferdig behandlet innvenndig og leveres med belysning!
Velkommen til Øvre Hoppmannsknuten, et av Sirdals mest etterspurte områder.
Innholdsrik hytte med høy standard og fantastisk beliggenhet med gode sol og utsiktsforhold. Klar for overtakelse!
- Svært etterspurt område i Sirdal
- Nærhet til Slottet, lysløype og Sirdals beste skiløyper
- Rå panoramautsikt og gode solforhold, grenser til friområdet.
- Hovedsoverom med walk-in og eget bad
- 4-5 soverom
- 2 bad og 2-3 stuer
- Skistall/vaskerom
- Stor åpen stue/kjøkken løsning på 50 kvm
- Kjøkken fra Bjerks Trevare, inkl hvitevarer
- Gjestetoalett og hems
- Stor selveiertomt
- Mulighet for garasje og tilleggsbygg.
- Plisségardiner i store deler av hytten fra Sandnes Markise.
Ta kontakt for visning!
Einar@oster-hus.no / 46 82 98 18
Ta kontakt med megler for komplett informasjon
Nyttige lenker
Nærområdet
Annonsene kan være mangelfulle i forhold til lovpålagt opplysningsplikt. Før bindende avtale inngås oppfordres interessenter til å innhente komplett informasjon fra meglerforetaket, selger eller utleier.














































