Bildegalleri

Velkommen til Haugsætervegen 57. Presentert av EIE eiendomsmegling ved Sissel Longva
Solgt
Elegant hytte fra 2016 med 3 soverom, loftstue, stor terrasse, flott utsikt og gode solforhold
Prisantydning2 600 000 kr
- Omkostninger
- 91 140 kr
- Totalpris
- 2 691 140 kr
- Kommunale avg.
- 8 392 kr per år
- Eiendomsskatt
- 1 554 kr per år
- Verditakst
- 2 600 000 kr
Nøkkelinfo
- Boligtype
- Hytte
- Eieform
- Eier (Selveier)
- Internt bruksareal
- 78 m² (BRA-i)
- Bruksareal
- 79 m²
- Eksternt bruksareal
- 1 m² (BRA-e)
- Balkong/Terrasse
- 45 m² (TBA)
- Tomteareal
- 1 204 m² (eiet)
- Byggeår
- 2016
- Soverom
- 3
- Rom
- 5
- Energimerking
- D - Oransje
Fasiliteter
Balkong/Terrasse
Peis/Ildsted
Turterreng
Utsikt
Alpinanlegg
Bilvei frem
Innlagt strøm
Innlagt vann
Om boligen
Uten overdrivelse beskrives hytta som en sjelden mulighet.
Her har du moderne comfort og tradisjonell hyttekos foran ildstedet.
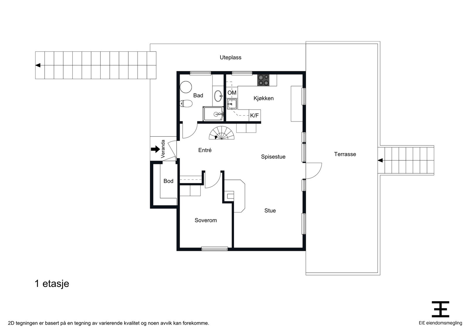
Terrassen på hele 45 kvm ligger usjenert til i forkant av hytta og man har 3 soverom fordelt på 2 etasjer.
En mindre utebod for lagring av ved, ski og lignende medfølger.
Hytta er svært pent ( og lite) brukt og kan ha snarlig overtakelse av ny eier om ønskelig.
Kjøkkenet er utstyrt med både induksjonstopp, stekeovn, kjøl/fryseskap og oppvaskmaskin.
Varmtvannstanken er på ca 200l så her kan flere dusje etter hverandre når man kommer tilbake fra turen, enten den er på ski, truger eller til fots. Åpen himling ved stue/kjøkken område gir rommene en helt spesiell følelse. Dette kombinert med vinduer i front resulterer i høy trivselsfaktor.
Årlig vedlikeholdskostnad på felles veg er omtrent 1000,-
Fra hovedvegen over Ørskogfjellet er det ca 500m til hytten, i relativt flatt terreng på gruset veg.
Her har du moderne comfort og tradisjonell hyttekos foran ildstedet.
Terrassen på hele 45 kvm ligger usjenert til i forkant av hytta og man har 3 soverom fordelt på 2 etasjer.
En mindre utebod for lagring av ved, ski og lignende medfølger.
Hytta er svært pent ( og lite) brukt og kan ha snarlig overtakelse av ny eier om ønskelig.
Kjøkkenet er utstyrt med både induksjonstopp, stekeovn, kjøl/fryseskap og oppvaskmaskin.
Varmtvannstanken er på ca 200l så her kan flere dusje etter hverandre når man kommer tilbake fra turen, enten den er på ski, truger eller til fots. Åpen himling ved stue/kjøkken område gir rommene en helt spesiell følelse. Dette kombinert med vinduer i front resulterer i høy trivselsfaktor.
Årlig vedlikeholdskostnad på felles veg er omtrent 1000,-
Fra hovedvegen over Ørskogfjellet er det ca 500m til hytten, i relativt flatt terreng på gruset veg.
NB: Knappen for å vise hele beskrivelsen har kun en visuell effekt.
NB: Knappen for å vise hele beskrivelsen har kun en visuell effekt.
Salgsoppgaven beskriver vesentlig og lovpålagt informasjon om eiendommen
Se komplett salgsoppgaveNyttige lenker
Nærområdet
EIE Eiendomsmegling Ålesund
Annonseinformasjon
| FINN-kode | 391398673 |
|---|---|
| Sist endret | 09. feb. 2025 05:04 |
| Referanse | 17250001 |
Annonsene kan være mangelfulle i forhold til lovpålagt opplysningsplikt. Før bindende avtale inngås oppfordres interessenter til å innhente komplett informasjon fra meglerforetaket, selger eller utleier.





























