Bildegalleri

Hyttemodellen Gåsbu 2 - Illustrasjon
Ny moderne hytte på Gåsbu hyttegrend - mulighet for tilpasninger
- Omkostninger
- 150 000 kr
- Totalpris
- 3 995 000 kr
Nøkkelinfo
- Beliggenhet
- På fjellet
- Boligtype
- Hytte
- Bruttoareal
- 75 m²
- Soverom
- 3
Fasiliteter
Visning
Ta kontakt for å avtale visning.Om eiendommen
Beliggenhet
Nå kan drømmen om ny hytte bli virkelig!
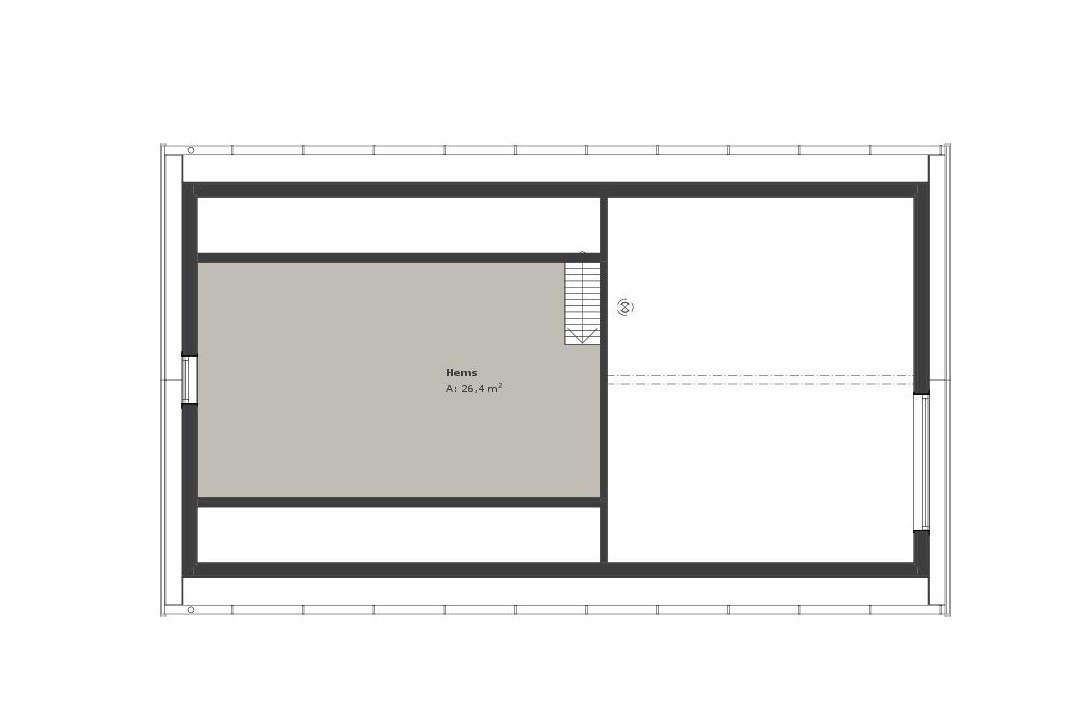
Hytte modellen Gåsbu 2 med hems er en praktisk og areal effektiv hytte. Her får du en romslig og åpen stue/kjøkken med god plass til mange hyggelige stunder. De store vinduene og den fulle takhøyden med skråtak gjør rommet luftig og spesielt. Vi har funnet plass til en god kjøkkenløsning og du får god plass både til et romslig spisebord og en fin sofakrok.
Når du kommer inn i hytta møtes du først av en romslig gang, før du finner 3 gode soverom, bad og bod.
På denne modellen får du også med en fin hemsløsning. Hemsen har takhøyde på 1,89 meter og et gulvareal på 26,4 m2. Dette gir deg mye ekstra plass med mange muligheter.
Ønsker du mer bod plass kan vi levere en utvendig bod mot et tillegg på kr 60 000,-.
Denne modellen kan vi også levere uten hems noe som gjør hytta kr 250 000,- rimeligere.
Du kan være med å utforme hytta, inkludert alle overflater. Det som er inkludert i den annonserte prisen er:
• Selveie tomt kr 550 000,-
• Estimert gravekost kr 300 000,-
• Støpt betongsåle inkl. radonsikring
• Ferdig grunnet kledning utvendig (mellomstrøk kan leveres mot pristillegg)
• Laminatgulv i alle tørre rom
• Fliser på gulv i gang og bad
• Baderomsplater på vegg i bad
• Kjøkken og baderomsinnredning fra Aubo (I totalpris er det også inkludert hvitevarer)
• Rørleggerleveranse iht. tegning inkludert dusjvegg og utvendig kran
• Komplett elektroleveranse iht. NEK 400, inkl. kr 30 000,- til kjøp av belysning mm.
• Varmekabler i alle flislagte gulv og panelovner inkludert appstyring av all varme.
• Peisovn med stålpipe
• Platting ved inngangsparti (terrasseplatting er ikke inkudert)
• Takstein som taktekking
• Antatt indeksregulering
• Tilkoblingsavgift vann/avløp og byggesaksgebyr til Hamar kommune og dokumentavgift er inkl i omkostninger.
• Hyttekontrakt NS3425 – kreves i merkeordningen Trygt hyttekjøp - enkelte andre leverandører tar pristillegg for å bruke denne kontrakten – vi mener det er en selvfølge.
• Byggestrøm – estimert kr 15 000,- er inkludert
• Byggforsikring fra oppstart til overlevering, samt all lovpålagt garanti iht Norsk standard.
• Ubehandlet panel på vegger og i alle himlinger. Ferdig beiset innvendig panel, sorte dører og vinduer kan leveres mot et pristillegg på kr 75 000,-
Inkludert i prisen er også prosjektering, oppføring, avfallshåndtering, byggvask og utstikking. Vi håndterer også hele søknadsprosessen for deg, slik at det blir enkelt å bygge med oss. Våre ansatte vil strekke seg langt for å sikre en smidig prosess, som skal være enkel for deg. Vi gir deg også full valgfrihet, slik at du kan få hytta slik du ønsker.
Her kan du selv påvirke valgene og få hytta bygd ut i fra dine ønsker og behov. Ta kontakt med hyttekonsulent Kjetil Noren tlf. 95781022 - for en gjennomgang av hvilke materialvalg som er inkludert i prisen og hvilke muligheter som finnes.
Vi har flere ledige tomter på Gåsbu hyttegrend. Ta kontakt for en oversikt over ledige tomter.
Vi tar forbehold om feil i tekst eller i prisgrunnlag i annonsen.
Ta kontakt for en uforpliktende hytteprat og tomtebefaring
Beliggenhet
Gåsbu hyttegrend er perfekt for dere som vil ha kort vei til hytta (ca 1 time og 10 minutter fra Gardermoen), og nyte hyttelivet i rolige omgivelser med en begrenset hytteutbygging.
Gåsbu hyttegrend er et koselig hyttefelt med mange muligheter. På vinterstid er dette en av Norges beste langrenns destinasjoner. Det er nærmere 500 km med topp preparerte skiløyper, 12 km lysløype som starter like ved hytte feltet, topp moderne skistadion hvor Ski NM ble arrangert senest nå i 2025, og 3 serveringshytter som holder åpent i helgene, som er fine turmål i et lett gått skiterreng. Det er også en flombelyst akebakke like ved. Vil dere kjøre alpint, ligger Lierberget ca 6 km unna. Snøen kommer tidlig på Gåsbu, og det er som regel preparerte skiløyper i fra Oktober/November til Mai.
En svært aktiv turistforening sørger for at det flotte og omfattende stinettet er godt merket, og innbyr til herlige fotturer også om sommeren. Det er mange koselige fjellvann, med både bade og fiskemuligheter. På høsten kan dere plukke mengder av bær eller kjøpe jaktkort. Hedmarksvidda byr også på fantastiske muligheter for flotte sykkelturer på endeløse fjellveger og stier. Det er også en gruset natursti med koselige grillplasser, gapahuker og utkikkstårn like ved.
Ønsker dere avveksling og andre opplevelser når dere er på hytta er det bare 20 minutter i bil til Hamar sentrum. Nyt sommeren langs Mjøsa, kos dere på kafe eller benytt dere av Hamars rike kulturliv.
Generelt
Adkomst/Tomteforhold
Gåsbu hyttegrend ligger ca. 15 km nordøst for Hamar sentrum (ca. 15 minutter med bil) og ca. 1-1,5 times biltur fra Gardermoen og Oslo.
Adkomst til hyttefeltet er fra Gåsbuvegen (Fv. 103). Avkjøringen til Gåsbu hyttegrend er godt skiltet, feltet ligger på venstre side like før Gåsbu langrennsarena.
E6 sørfra: Kjør forbi den første avkjøringen til Hamar (ved Vikingskipet, skiltet Hamar/Ridabu) og ta av neste avkjøring (Vienkrysset, skiltet Hamar/Olrud/Trehørningen/Gåsbu). Hold til høyre inn på Sælidvegen (Fv. 116) og følg deretter skilting mot Gåsbu.
E6 nordfra: Kjør av mot Hamar Vest/Olrud, følg denne veien parallelt med E6 til neste kryss/rundkjøring (Vienkrysset). Kjør over E6 på Sælidvegen (Fv. 116) og følg deretter skilting mot Gåsbu.
Det settes av plass til parkering av 2 biler på tomten.
Innhold
Standard
Ta kontakt med megler for komplett informasjon
Nærområdet
Silva Bolig AS
Annonsene kan være mangelfulle i forhold til lovpålagt opplysningsplikt. Før bindende avtale inngås oppfordres interessenter til å innhente komplett informasjon fra meglerforetaket, selger eller utleier.


























