Bildegalleri

Prosjektert Ålhytte og Tomt 31 Skredsvig Hyttefelt, Skallandslia
- Omkostninger
- 20 000 kr
- Totalpris
- 4 400 000 kr
Pris på lån: fra 18 390 kr/mnd
Eff.rente 5,86 %. 2 628 000 o/20 år. Kostnad: 1 785 600 kr. Totalt 4 413 600 kr.
LånekalkulatorNøkkelinfo
- Beliggenhet
- På fjellet
- Boligtype
- Hytte
- Eieform
- Eier (Selveier)
- P-plasser
- 2
- Tomteareal
- 1 000 m²
- Bruttoareal
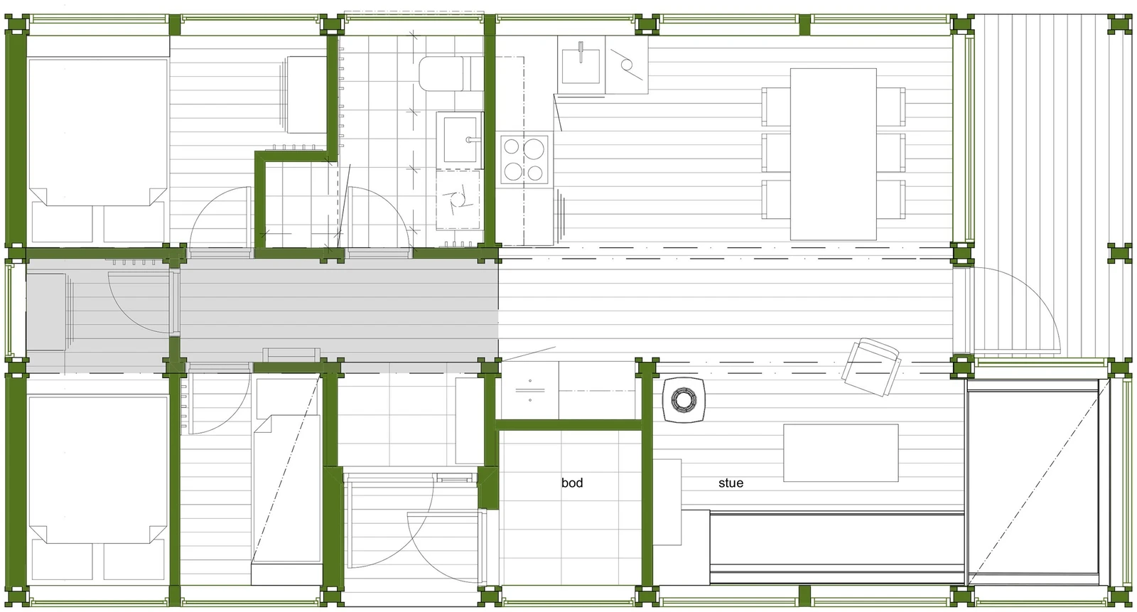
- 73 m²
- Soverom
- 3
- Sengeplasser
- 7
- Meter over havet
- 820
Fasiliteter
Visning
Ta kontakt for å avtale visning.Om eiendommen
Beliggenhet
Skallandslia er et etablert hytteområde i solsiden av Eggedal. Området kjennetegnes av svært rolige omgivelser, solrike tomter og lun beliggenhet. Området ligger på ca.820 m.o.h. og grunneieren har hatt et tydelig fokus når tomtene har blitt utredet. Området ligger rett i nærheten av et stort nettverk av langrennsløyper, med enkel tilgang til et barnevennlig skiterreng. Med nærhet til Eggedal sentrum er det heller ingen problem med servicetilbudene. Kort vei til butikker, vinmonopol, hurtigladere, bensinstasjon og restaurant.
Skredsvig hyttefelt ligger lunt og skjermet. og er et glimrende utgangspunkt for turer, sommer som vinter. Flotte skiløypergår ut i fra området og bringer deg til Dronninggutunatten/Holmvassnatten Gråfjell, Tempelseter, Høgevarde og Norefjell. Madonnastien som er en av norges beste turstier er et flott turmål vår, sommer og høst. Gode muligheter for fotturer, være seg på stier eller i terrenget.
Her finner du glassklare badekulper og rike moltemyrer. Haglebu skisenter, med flere nedfarter, varmestue og kafeteria ligger kun en 25 minutters biltur unna. Norefjell kun 30 minutter unna.
Generelt
Tomt, grunnarbeid og fundamentering:
Tomt T31 er på 1000 m2, har helårsvei, vann, avløp og strøm og leveres med parkeringsplass for 2 biler. Åpen tomt med flott utsikt og gode solforhold. Hytta er fundamentert på støpt plate.
Hytteleveransen:
Prosjektert Ålhytte med 3 soverom, 7 sengeplasser, åpen stue/kjøkkenløsning, hems, stort bad med dusjnisje. Innendørs bod samt bod utendørs. Interiør inngår ikke i dette prospekt, men komplett Ålhytteinteriør leveres hvis ønskelig.
Strøm, vann og avløp.
El og VVS leveres komplett med rør og avløp, dusj, toalett, servanter og armatur. El-installasjoner inkluderer hovedinntak, hovedtavle, alle nødvendige kurser og jordsikringer, samt 2 varmekabler.
Prisantydning er basert på indeks pr. november 2024.
Tilsvarende hytte har vi som prøvebo hytte:
www.aalhytta.no/provebohyttene/eggedal/skareseter/d35
Adkomst/Tomteforhold
Kjørebeskrivelse:
Skallandslia ligger øverst i Sigdal kommune, ca 2 timers kjøring fra Oslo og 1,5t fra Drammen. Følg skilt til Drammen, ta av til Åmot i Modum. I Åmot, ta av til rv 287 retning Sigdal/Eggedal, ca 60 km. I Eggedal sentrum, fortsett rett frem, ca 3 km, retning Haglebu, og ta av til høyre ved skilt Skallandsveien. Se kart for videre veibeskrivelse.
Innhold
Ålhytteinteriøret oppsto i skjæringspunktet mellom plassutnyttelse og estetikk. Tegnet og utviklet for å utnytte plassen optimalt, samtidig som man ivaretar hyttas rene linjer. Her er ingenting overlatt til tilfeldighetene.
Sitteplasser, enten det er faste sofabenker eller løse stoler, gir siktlinjer i tråd med vinduenes format og plassering. Skuffer under sengene sørger for nødvendig lagringsplass.
Ålhytta kjøkken
Tegnet og utviklet for å utnytte plassen optimalt. Kan leveres med ulike overflatebehandlinger.
Ålhytta stue
Ålhytteinteriøret er tegnet og utviklet for å utnytte plassen optimalt. Sitteplasser enten det er faste sofabenker eller løse stoler, gir siktlinjer i tråd med vinduenes format og plassering.
Soverommene
I Ålhytta har du alle muligheter for å få en god natt søvn. Sengene er tegnet og utviklet for å utnytte plassen optimalt. Trenger du soveplass til gjestene kan en praktisk nisjeseng være løsninger. Andre løsninger er familiekøye, køyeseng, veggfast dobbeltseng med skuffer eller vanlig dobbeltseng. Vi nevner også Kube hyllene som er perfekte nattbord.
Små detaljer og små justeringer gir smarte løsninger.
Standard
Hvorfor Ålhytta?
Ålhytta produseres på Ål i Halllingdal. Interiøret til Ålhytta er norskprodusert.
Ålhyttas stramme arkitektur, slanke hyttekropp og lave mønehøyde gir en dempet hytte. Ålhytter skriker ikke etter oppmerksomhet, men oppsummerer: Hvorfor bygge stort når man kan bygge smart? . Et redusert behov for areal og høyde gir en hytte som tar hensyn til naturen vi bygger i.
Og akkurat det er vel poenget? Vi reiser på hytta for å komme nærmere naturen, ikke distansere oss fra den.
Systugu
I tillegg har Ålhytta en egen systue, Systugu, som produserer alt av madrasser, seilduksgardiner, puter til stoler, sofa og krakk til Ålhytta.
Les mer om Systugu på www.aalsystugu.no
Ålhytta ble definert som moderne arkitektur da den kom i 1966 og står trygt plassert på samme sted i dag, snart 60 år senere.
Ta kontakt med megler for komplett informasjon
Nærområdet
Ålhytta
Annonsene kan være mangelfulle i forhold til lovpålagt opplysningsplikt. Før bindende avtale inngås oppfordres interessenter til å innhente komplett informasjon fra meglerforetaket, selger eller utleier.


































