Bildegalleri

- Velkommen til Dyregrenda sør og Fjellparkvegen 42 - Skisenteret i bakgrunnen.
Hovden
HOVDEN - Dyregrenda sør -Ny flott og meget innholdsrik familiehytte med sentral beliggenhet - solrikt - nært alt!
Prisantydning6 490 000 kr
- Omkostninger
- 70 900 kr
- Totalpris
- 6 560 900 kr
- Kommunale avg.
- 14 850 kr per år
Pris på lån: fra 27 207 kr/mnd
Eff.rente 5,84 %. 3 894 000 o/20 år. Kostnad: 2 635 680 kr. Totalt 6 529 680 kr.
LånekalkulatorNøkkelinfo
- Beliggenhet
- På fjellet
- Boligtype
- Hytte
- Eieform
- Eier (Selveier)
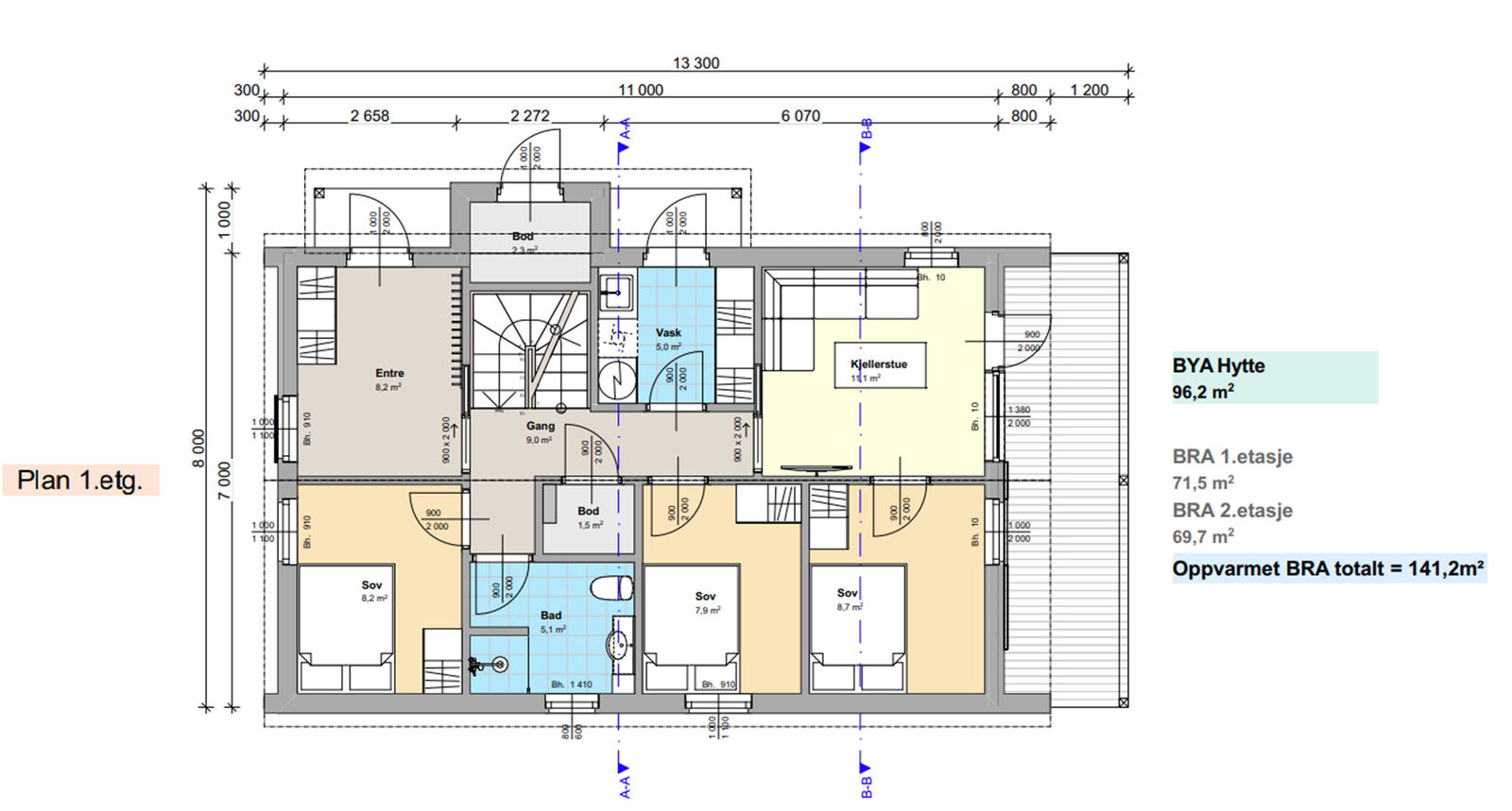
- Internt bruksareal
- 139 m² (BRA-i)
- Bruksareal
- 142 m²
- Eksternt bruksareal
- 3 m² (BRA-e)
- Balkong/Terrasse
- 13 m² (TBA)
- Tomt
- Eiet
- Byggeår
- 2024
- Soverom
- 4
- Rom
- 6
Fasiliteter
Alpinanlegg
Balkong/Terrasse
Barnevennlig
Bilvei frem
Bredbåndstilknytning
Peis/Ildsted
Rolig
Utsikt
Innlagt strøm
Offentlig vann/kloakk
Turterreng
Lademulighet
Visning
For å delta på visning, ber vi om at du melder deg på. Da sikrer vi at du får nødvendig informasjon og at det er satt av tilstrekkelig med tid. Kontakt megler dersom annet tidspunkt ønskes. Husk å lese salgsoppgaven før visningen, så du stiller forberedt. NB. Visning utgår dersom det ikke er noen påmeldte.
Ønsker du kun å bli holdt orientert, kan du fra eiendommens hjemmeside få varsel om solgtpris, eller kontakte megler.
VisningspåmeldingOm boligen
- Velkommen til Dyregrenda og Fjellparkveien 42! -
Dette er en ny og unik hytte med meget solrik og sentral beliggenhet på Hovden. Her er du kort unna både preparerte skiløyper, skisenteret og sentrum!
Sherpatrappene opp til Hovdenuten og dagsturhytta, starter like bortenfor.
Hytta byr på gjennomtenkt og god planløsning med en romslig og innbydende entre i 1. etg. med Tv-stue, 3 soverom, bad, vaskerom, innvendig og utvendig bod. Varmepumpe.
2. etg. byr på en åpen og trivelig stue kjøkkenløsning med fantastisk utsikt mot fjellheimen i sør og skisenteret i nord, stort bad og ett soverom. Flotte uteplasser og mulighet for garasje.
Her kan du nyte hyttetilværelsen i en flott hytte av god standard, med kort vei til de fleste fasiliteter.
Velkommen til visning!
Dette er en ny og unik hytte med meget solrik og sentral beliggenhet på Hovden. Her er du kort unna både preparerte skiløyper, skisenteret og sentrum!
Sherpatrappene opp til Hovdenuten og dagsturhytta, starter like bortenfor.
Hytta byr på gjennomtenkt og god planløsning med en romslig og innbydende entre i 1. etg. med Tv-stue, 3 soverom, bad, vaskerom, innvendig og utvendig bod. Varmepumpe.
2. etg. byr på en åpen og trivelig stue kjøkkenløsning med fantastisk utsikt mot fjellheimen i sør og skisenteret i nord, stort bad og ett soverom. Flotte uteplasser og mulighet for garasje.
Her kan du nyte hyttetilværelsen i en flott hytte av god standard, med kort vei til de fleste fasiliteter.
Velkommen til visning!
NB: Knappen for å vise hele beskrivelsen har kun en visuell effekt.
NB: Knappen for å vise hele beskrivelsen har kun en visuell effekt.
Salgsoppgaven beskriver vesentlig og lovpålagt informasjon om eiendommen
Se komplett salgsoppgaveNyttige lenker
Nærområdet
Krogsveen Kristiansand
Velkommen til en enklere boligreise.
Annonseinformasjon
| FINN-kode | 386051029 |
|---|---|
| Sist endret | 01. okt. 2025 10:48 |
| Referanse | KR31.21425 |
Annonsene kan være mangelfulle i forhold til lovpålagt opplysningsplikt. Før bindende avtale inngås oppfordres interessenter til å innhente komplett informasjon fra meglerforetaket, selger eller utleier.









































