Bildegalleri

Velkommen til Briskehallvegen 12! Fotograf: EFKT (Tor Solberg)
Liastøltjernet/Elveseter
Lekker, nyoppført hytte i vakkert turområde. Solrikt på fin eiertomt. To delikate bad, tre soverom og loftsetasje.
Prisantydning3 950 000 kr
- Omkostninger
- 18 890 kr
- Totalpris
- 3 968 890 kr
- Verditakst
- 4 600 000 kr
Nøkkelinfo
- Beliggenhet
- På fjellet
- Boligtype
- Hytte
- Eieform
- Eier (Selveier)
- Internt bruksareal
- 87 m² (BRA-i)
- Bruksareal
- 87 m²
- Balkong/Terrasse
- 60 m² (TBA)
- Tomteareal
- 1 499 m² (eiet)
- Byggeår
- 2024
- Soverom
- 3
- Energimerking
- C - Oransje
Fasiliteter
Innlagt vann
Balkong/Terrasse
Barnevennlig
Bilvei frem
Peis/Ildsted
Rolig
Utsikt
Bademulighet
Fiskemulighet
Innlagt strøm
Turterreng
Visning
Påmeldingsvisning. Ved annonsert visning er det viktig at du melder deg på visningen ved å bruke visningspåmeldings knappen eller kontakter megler. Annonserte visninger hvor det ikke er noen påmeldte innen kl. 16 dagen før visningsdagen vil ikke bli avholdt.
For visninger utover dette, ta direkte kontakt med megler.
Husk å lese komplett salgsoppgave før visning. Bestill komplett, utskriftsvennlig salgsoppgave.
VisningspåmeldingOm boligen
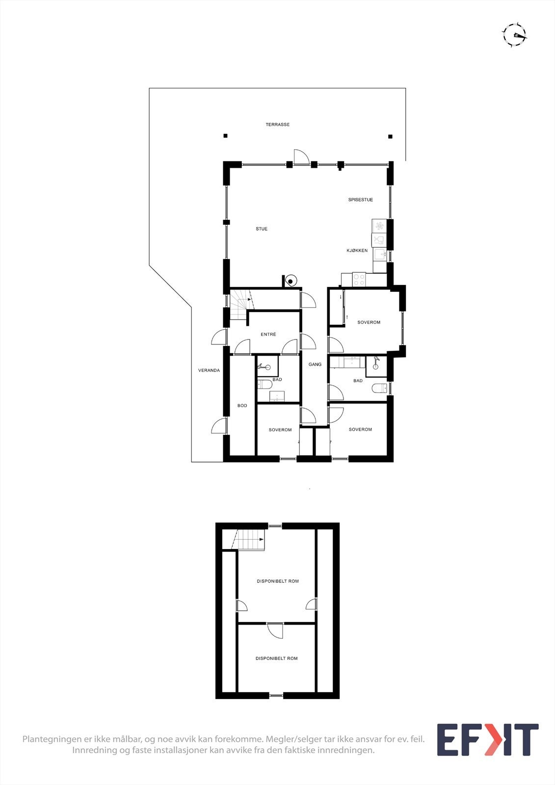
Denne flotte, nyoppførte hytta ligger fint til i Liastøl Hyttegrend, et mindre hyttefelt nær Liastøltjednet, ca. 900 moh! Her er det åpent og fritt med fin utsikt utover området, og det er vakkert turterreng året rundt. Hytta har selvsagt alle fasiliteter, og med en lekker, nyoppført hytte som denne, kan all tid brukes til aktiviteter og avslapping.
Den fine nærheten til naturen får en også når en kommer inn i hytta, som har store, flotte vinduer og pene materialvalg. I stua er det lyst og luftig med åpen løsning til kjøkken, og det er utgang til delvis overbygde terrasser. Hytta er innholdsrik med to delikate bad og tre romslige soverom. Den har en hyggelig loftsetasje med to pene rom. På grunn av lav takhøyde, er ikke loftsetasjen godkjent for varig opphold.
Velkommen på visning!
Den fine nærheten til naturen får en også når en kommer inn i hytta, som har store, flotte vinduer og pene materialvalg. I stua er det lyst og luftig med åpen løsning til kjøkken, og det er utgang til delvis overbygde terrasser. Hytta er innholdsrik med to delikate bad og tre romslige soverom. Den har en hyggelig loftsetasje med to pene rom. På grunn av lav takhøyde, er ikke loftsetasjen godkjent for varig opphold.
Velkommen på visning!
NB: Knappen for å vise hele beskrivelsen har kun en visuell effekt.
NB: Knappen for å vise hele beskrivelsen har kun en visuell effekt.
Salgsoppgaven beskriver vesentlig og lovpålagt informasjon om eiendommen
Se komplett salgsoppgaveNærområdet
Aktiv Valdres
Annonseinformasjon
| FINN-kode | 385645439 |
|---|---|
| Sist endret | 23. jan. 2026 11:46 |
| Referanse | 1201240154 |
Annonsene kan være mangelfulle i forhold til lovpålagt opplysningsplikt. Før bindende avtale inngås oppfordres interessenter til å innhente komplett informasjon fra meglerforetaket, selger eller utleier.






























