Bildegalleri

Eiendomsmegler 1 Fjellmegleren har gleden av å presentere denne moderne leiligheten beliggende i Natten på Nesfjellet
Nesfjellet Alpinsenter
NESFJELLET - Lekker toppleilighet over to plan| ski inn/ut | 4 soverom | 2 bad | 2 terrasser
Prisantydning5 100 000 kr
- Omkostninger
- 228 730 kr
- Totalpris
- 5 328 730 kr
- Kommunale avg.
- 12 404 kr per år
- Felleskost/mnd.
- 990 kr
- Fellesformue
- 4 289 kr
- Eiendomsskatt
- 9 011 kr per år
Nøkkelinfo
- Beliggenhet
- På fjellet
- Boligtype
- Hytte
- Eieform
- Eier (Selveier)
- Internt bruksareal
- 99 m² (BRA-i)
- Bruksareal
- 105 m²
- Eksternt bruksareal
- 6 m² (BRA-e)
- Balkong/Terrasse
- 35 m² (TBA)
- Tomteareal
- 2 254 m² (eiet)
- Byggeår
- 2021
- Soverom
- 4
- Rom
- 5
- Energimerking
- B - Rød
Fasiliteter
Innlagt vann
Alpinanlegg
Balkong/Terrasse
Barnevennlig
Bilvei frem
Bredbåndstilknytning
Garasje/P-plass
Golfbane
Peis/Ildsted
Rolig
Utsikt
Innlagt strøm
Turterreng
Lademulighet
Visning
For visninger utover de annonserte, ta kontakt med megler på telefon 901 57 966.
Husk å lese komplett salgsoppgave før visning. Bestill komplett, utskriftsvennlig salgsoppgave.
VisningspåmeldingOm boligen
Eiendomsmegler 1 Fjellmegleren har gleden av å presentere denne moderne leiligheten beliggende i Natten på Nesfjellet i Nesbyen. Leiligheten ligger rett ved tilfarerløypa til bakken så her kan du spenne på deg alpinskiene fra ytterveggen.
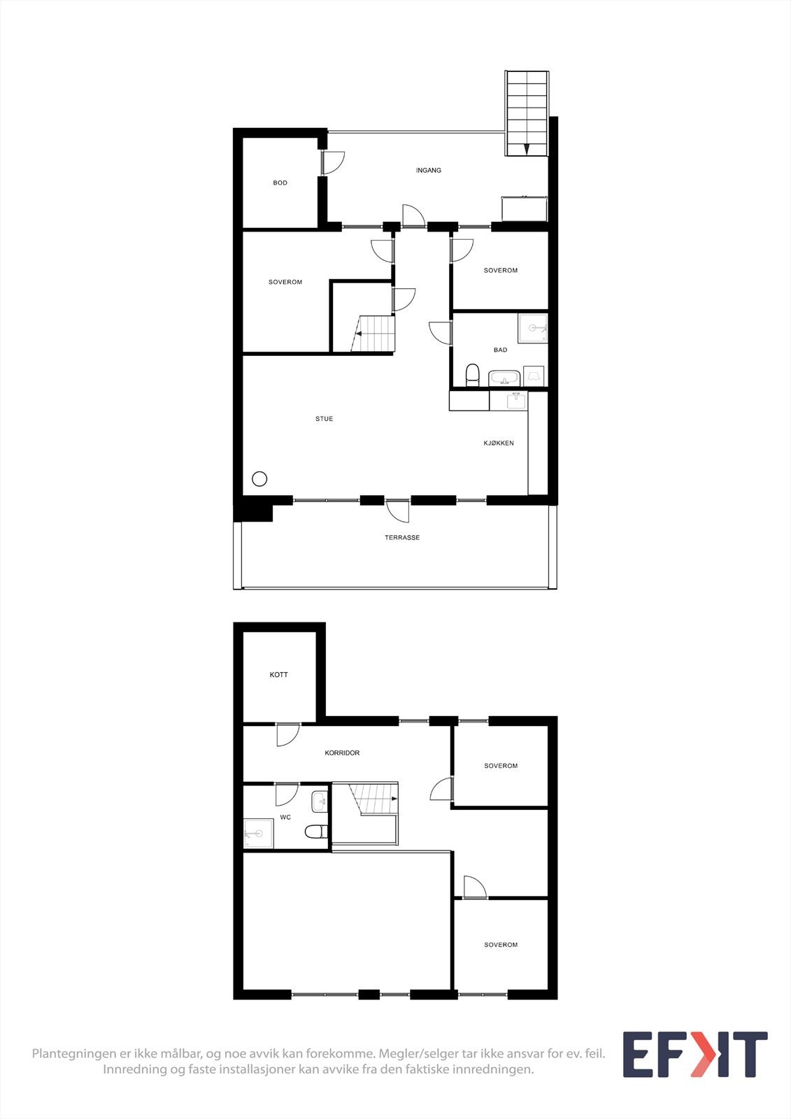
Leiligheten ligger i 2. og 3. etasje med god og luftig planløsning. Leiligheten har to store terrasser og fra terrassen mot (nordøst) ved inngangspartiet har du tilkomst til en bod på 5 kvm samt en praktisk skistall.
INNHOLD:
2. etasje: Entré, kjøkken/stue, to soverom, bad og bod, samt teknisk rom og skiskap/bod.
3. etasje: Gang, to soverom, bad og bod.
Privat terrasse på to sider.
Andre høydepunkter:
- Utvendig solskjerming
- Elbil lader
- Leiligheten selges med møbelpakke.
- Fiber
- Energieffektiv med lave strømkostnader
Leiligheten ligger i 2. og 3. etasje med god og luftig planløsning. Leiligheten har to store terrasser og fra terrassen mot (nordøst) ved inngangspartiet har du tilkomst til en bod på 5 kvm samt en praktisk skistall.
INNHOLD:
2. etasje: Entré, kjøkken/stue, to soverom, bad og bod, samt teknisk rom og skiskap/bod.
3. etasje: Gang, to soverom, bad og bod.
Privat terrasse på to sider.
Andre høydepunkter:
- Utvendig solskjerming
- Elbil lader
- Leiligheten selges med møbelpakke.
- Fiber
- Energieffektiv med lave strømkostnader
NB: Knappen for å vise hele beskrivelsen har kun en visuell effekt.
NB: Knappen for å vise hele beskrivelsen har kun en visuell effekt.
Salgsoppgaven beskriver vesentlig og lovpålagt informasjon om eiendommen
Se komplett salgsoppgaveNyttige lenker
Nærområdet
EIE Fjellmegleren Gol / Nesbyen / Flå
Annonseinformasjon
| FINN-kode | 384344582 |
|---|---|
| Sist endret | 05. jan. 2026 09:49 |
| Referanse | 1531240316 |
Annonsene kan være mangelfulle i forhold til lovpålagt opplysningsplikt. Før bindende avtale inngås oppfordres interessenter til å innhente komplett informasjon fra meglerforetaket, selger eller utleier.






































