Bildegalleri

Eiendomsmegler Siri Lyseng Solberg presentere denne eiedommen
Trivelig tun med hytte, uthus og bod - Tilbygg og noen oppgraderinger senere år - God beliggenhet med rikt turområde
- Omkostninger
- 54 840 kr
- Totalpris
- 1 554 840 kr
- Kommunale avg.
- 3 510 kr per år
- Formuesverdi
- 296 359 kr
Nøkkelinfo
- Beliggenhet
- På fjellet
- Boligtype
- Hytte
- Eieform
- Eier (Selveier)
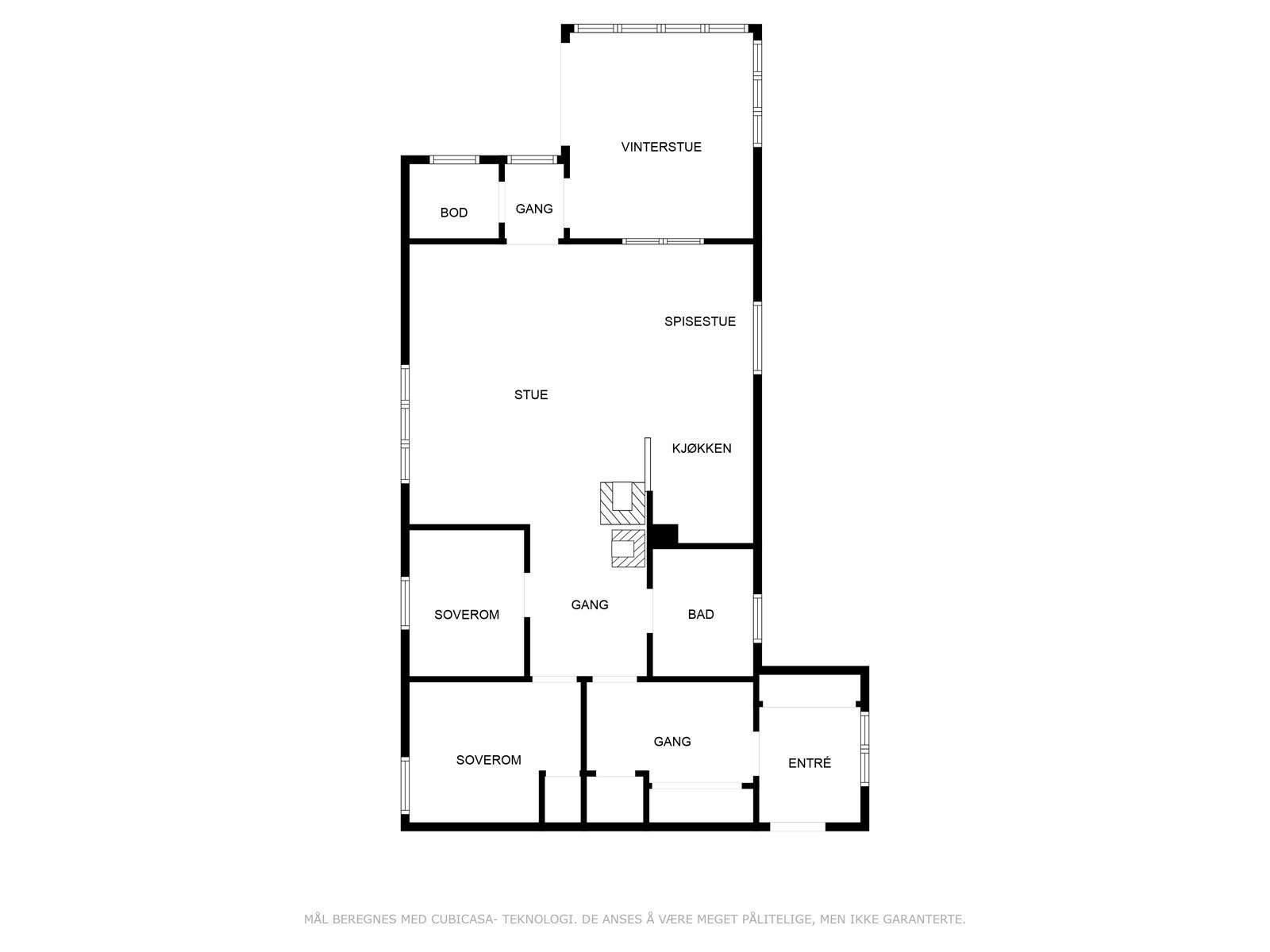
- Internt bruksareal
- 82 m² (BRA-i)
- Bruksareal
- 102 m²
- Eksternt bruksareal
- 20 m² (BRA-e)
- Balkong/Terrasse
- 17 m² (TBA)
- Tomteareal
- 2 042 m² (eiet)
- Byggeår
- 1982
- Soverom
- 2
- Rom
- 3
- Energimerking
- G - Oransje
Fasiliteter
Om boligen
Eiendommen ligger fint til ca. 780 moh. Lun og solrik eiendom med flott opparbeidet tomt. Det bugner av fine turmuligheter sommer som vinter. På sommeren er det fint sykle innover stølsveiene, gå fotturer og toppturer. Vinteren kan by på oppkjørte skiløyper.
- Hytta er bygd i 1982 og modernisert samt tilbygd i 2023
- Tilbygd inngangsparti og vinterstue
- Ny taktekking, etterisolert og etablert bedrde lufting på opprinnelig del
- Soverom er oppusset med blant annet gulv og integrerte skap- og senger
- Tilknytning av felles vann- og avløp
- Bod er oppført i 2020
- 2 soverom
Megler Siri Lyseng Solberg presenterer denne eiendommen.
Velkommen til Svartkøllvegen 27 i Tisleidalen.
Salgsoppgaven beskriver vesentlig og lovpålagt informasjon om eiendommen
Se komplett salgsoppgaveNyttige lenker
Nærområdet

PrivatMegleren Valdres
Prisstatistikk
Svartkøllvegen 27
på annonsen
prisantydning per kvadratmeter
Prisfordeling
Pris per m² ligger 14 708 kr under snittet for hytter i Nord-Aurdal.
Grafen viser antall hytter solgt i Nord-Aurdal siste året fordelt på pris per m² - totalt 60 hytter
Antall boliger
Kvadratmeterpris tilsvarer prisantydning pluss fellesgjeld per kvadratmeter (p-rom eller BRA-i). Prisene i grafen er avrundet til nærmeste 1000 kr.
Annonseinformasjon
| FINN-kode | 381696380 |
|---|---|
| Sist endret | 09. nov. 2025 11:04 |
| Referanse | 71240170 |
Annonsene kan være mangelfulle i forhold til lovpålagt opplysningsplikt. Før bindende avtale inngås oppfordres interessenter til å innhente komplett informasjon fra meglerforetaket, selger eller utleier.





























