Bildegalleri

Velkommen til Kikkutrustin 23!
Lifjell
Buen hytte i fredfulle omgivelser - Kort veg til turløyper både sommer og vinter! 2 soverom, solcellepanel.
Prisantydning990 000 kr
- Omkostninger
- 25 750 kr
- Totalpris
- 1 015 750 kr
- Kommunale avg.
- 4 830 kr per år
- Formuesverdi
- 367 690 kr
Nøkkelinfo
- Boligtype
- Hytte
- Eieform
- Eier (Selveier)
- Internt bruksareal
- 51 m² (BRA-i)
- Bruksareal
- 54 m²
- Eksternt bruksareal
- 3 m² (BRA-e)
- Balkong/Terrasse
- 16 m² (TBA)
- Tomteareal
- 1 030 m² (eiet)
- Byggeår
- 1987
- Soverom
- 2
- Rom
- 3
- Energimerking
- F - Oransje
Fasiliteter
Balkong/Terrasse
Peis/Ildsted
Turterreng
Utsikt
Visning
Ta kontakt for å avtale visning.Husk å lese komplett salgsoppgave før visning. Bestill komplett, utskriftsvennlig salgsoppgave.
VisningspåmeldingOm boligen
I naturskjønne og fredfulle omgivelser på Lifjell i Bø i Telemark kan en koselig Buen hytte fra 1987 nå bli din. Området rundt hytta er omkranset av furu og gran skog, dermed lite innsyn fra naboer rundt. Fra hytta kan man se flere flotte fjelltopper som strekker seg mot himmelen.
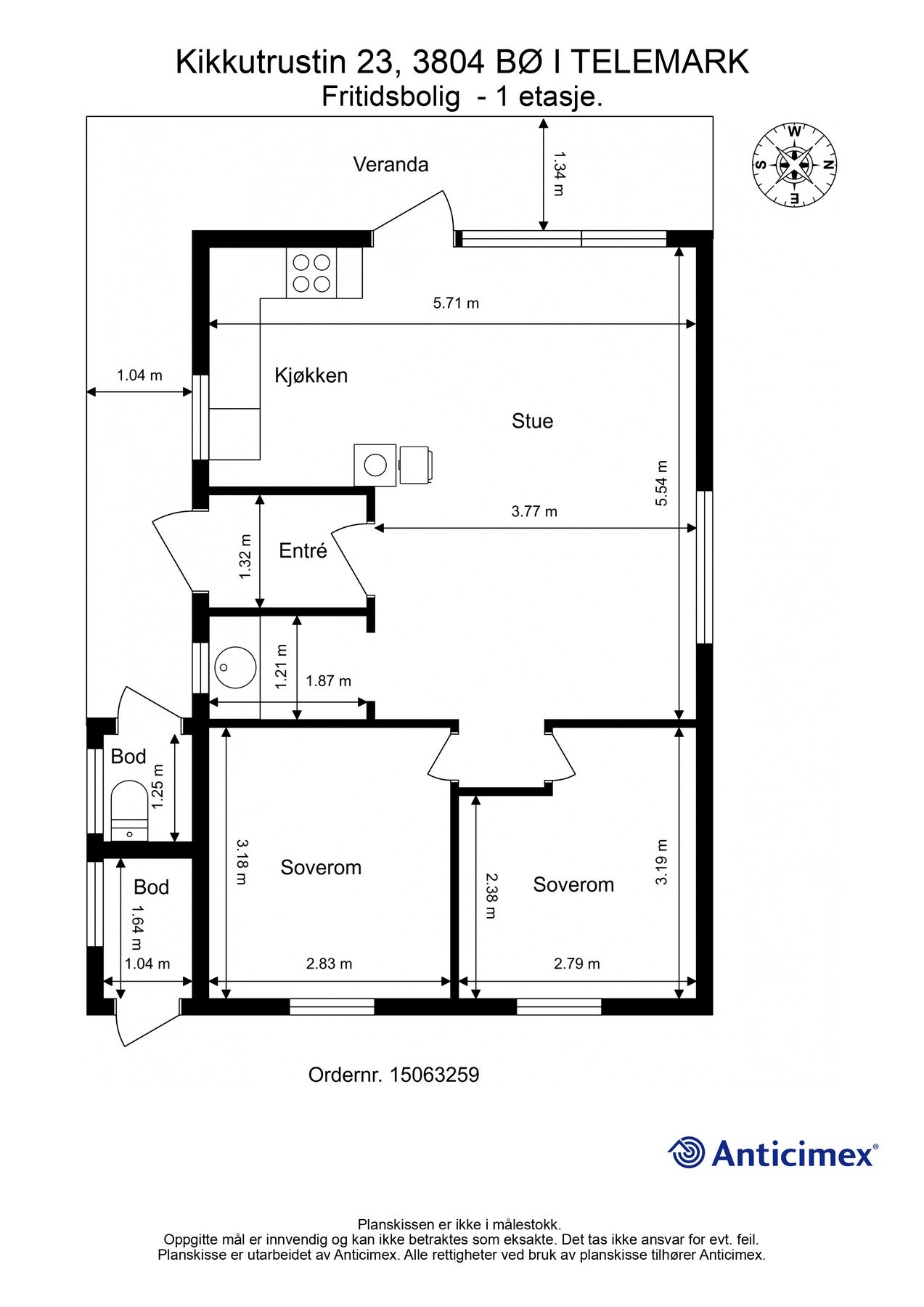
Hytta består av entrè, kjøkken, stue, to soverom, vaskerom/stellerom, toalettrom og hems. den åpne stue/kjøkken løsningen skaper rom hyggelige stunder med de du er glad i.
Langs to sider av hytta er det overbygget terrasse, og muligheter for flere fine uteplasser.
Koselig hytte i skogen på Lifjell, uten strøm, vann og veg. Hytta har usjenert beliggenhet, samtidig er avstanden kort til alpinbakke for både barn og nybegynnere, samt de mer erfarne. Milevis med turløyper både sommer og vinter, er heller ikke langt unna.
Hytta består av entrè, kjøkken, stue, to soverom, vaskerom/stellerom, toalettrom og hems. den åpne stue/kjøkken løsningen skaper rom hyggelige stunder med de du er glad i.
Langs to sider av hytta er det overbygget terrasse, og muligheter for flere fine uteplasser.
Koselig hytte i skogen på Lifjell, uten strøm, vann og veg. Hytta har usjenert beliggenhet, samtidig er avstanden kort til alpinbakke for både barn og nybegynnere, samt de mer erfarne. Milevis med turløyper både sommer og vinter, er heller ikke langt unna.
NB: Knappen for å vise hele beskrivelsen har kun en visuell effekt.
NB: Knappen for å vise hele beskrivelsen har kun en visuell effekt.
Salgsoppgaven beskriver vesentlig og lovpålagt informasjon om eiendommen
Se komplett salgsoppgaveNærområdet
Lokalmegleren & Partners
Verdien av lokalkunnskap
Annonseinformasjon
| FINN-kode | 378274720 |
|---|---|
| Sist endret | 22. okt. 2025 12:22 |
| Referanse | 47240110 |
Annonsene kan være mangelfulle i forhold til lovpålagt opplysningsplikt. Før bindende avtale inngås oppfordres interessenter til å innhente komplett informasjon fra meglerforetaket, selger eller utleier.



























