Bildegalleri

Velkommen til Bjorøyvegen 2 i Vrådal!
Fossøy
VRÅDAL | To innholdsrike hytter - 2 båtplasser - 2,3 mål - Nær Nisser og naturen - Innredet anneks/bod - Unik mulighet!
Prisantydning8 490 000 kr
- Omkostninger
- 233 150 kr
- Totalpris
- 8 723 150 kr
- Kommunale avg.
- 29 900 kr per år
- Formuesverdi
- 962 500 kr
Pris på lån: fra 35 390 kr/mnd
Eff.rente 5,77 %. 5 094 000 o/20 år. Kostnad: 3 399 600 kr. Totalt 8 493 600 kr.
LånekalkulatorNøkkelinfo
- Beliggenhet
- På fjellet
- Boligtype
- Hytte
- Eieform
- Eier (Selveier)
- Internt bruksareal
- 261 m² (BRA-i)
- Bruksareal
- 291 m²
- Eksternt bruksareal
- 30 m² (BRA-e)
- Balkong/Terrasse
- 158 m² (TBA)
- Tomteareal
- 2 369 m² (eiet)
- Byggeår
- 2011
- Soverom
- 7
- Rom
- 9
- Energimerking
- D - Oransje
- Overtakelse
- Etter nærmere avtale.
Fasiliteter
Innlagt vann
Alpinanlegg
Balkong/Terrasse
Barnevennlig
Bilvei frem
Bredbåndstilknytning
Båtplass
Garasje/P-plass
Golfbane
Hage
Peis/Ildsted
Rolig
Utsikt
Bademulighet
Fiskemulighet
Innlagt strøm
Offentlig vann/kloakk
Turterreng
Visning
Ta kontakt med megler for avtale om privatvisning.
For å delta på visning, ber vi om at du melder deg på. Da sikrer vi at du får nødvendig informasjon og at det er satt av tilstrekkelig med tid. Kontakt megler dersom annet tidspunkt ønskes. Husk å lese salgsoppgaven før visningen, så du stiller forberedt. NB. Visning utgår dersom det ikke er noen påmeldte.
Ønsker du kun å bli holdt orientert, kan du fra eiendommens hjemmeside få varsel om solgtpris, eller kontakte megler.
VisningspåmeldingOm boligen
Krogsveen har gleden av å ønske velkommen til Bjorøyvegen 2!
* Eiendommen var opprinnelig tiltenkt klubbhuset til golfen, men planen ble endret og her er det nå beliggende en svært innholdsrik duohytte (to hytter!) samt innredet anneks
* Dette er en unik mulighet til å sikre seg over 2,3 mål eiet tomt beliggende mot Nisser og naturflotte omgivelser bestående av fjell, masse sol og helt usjenert
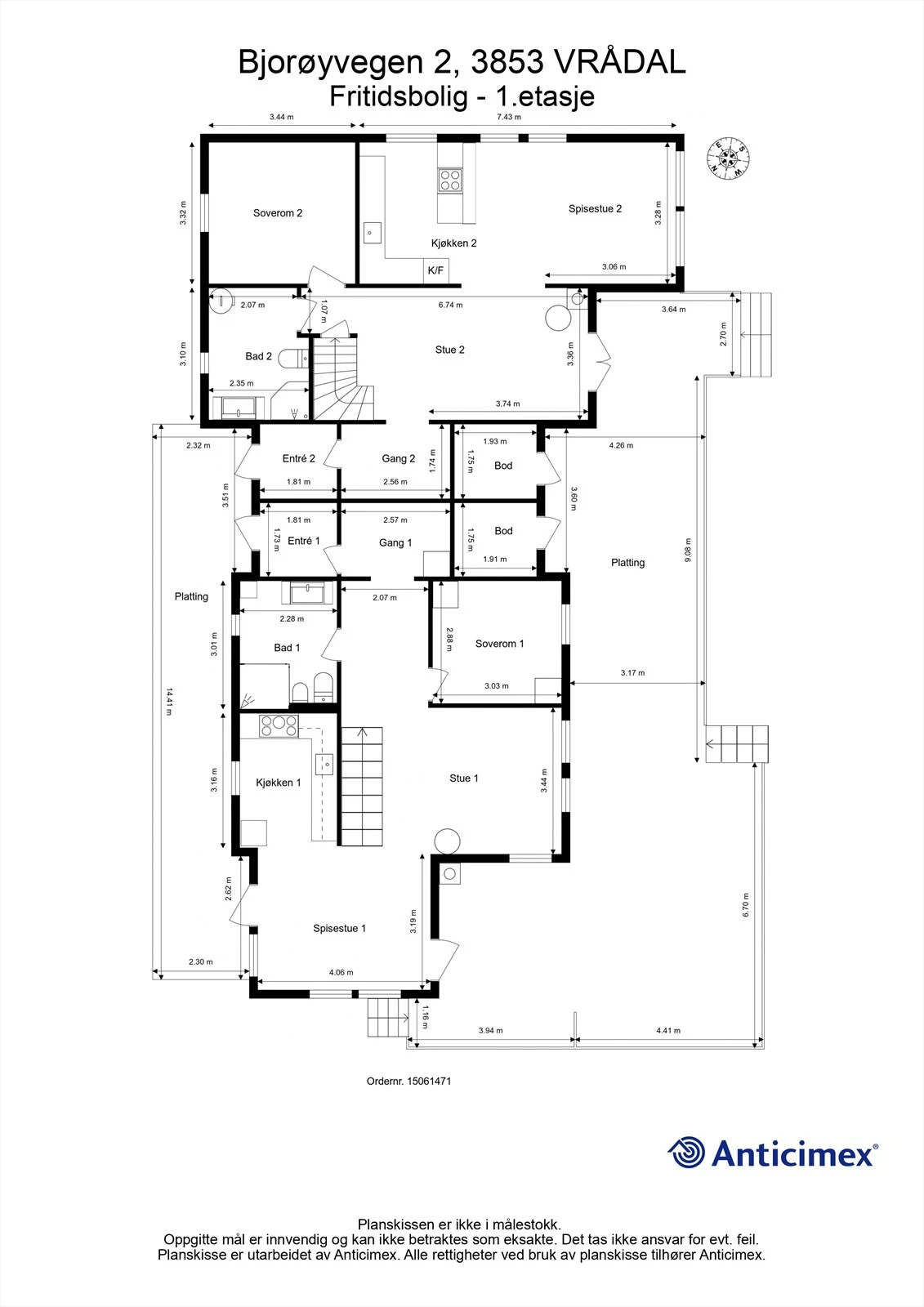
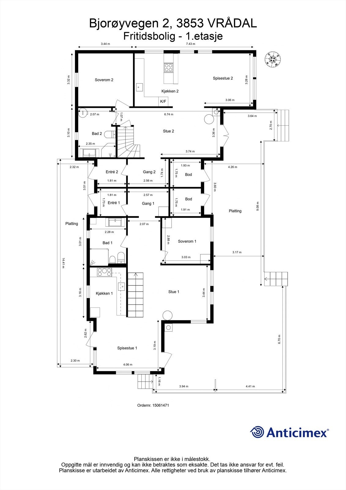
* Hver boenhet (2 hytter) er innredet med bla. entrè, gang, 2 bad, 4 soverom, kjøkken med plass til spisestuen samt to stuer
* Annekset/bod (isolert, men ikke godkjent til varig opphold) er innredet med entrè, bad med badstue og stue/kjøkken/soverom
* Medfølger 2 båtplasser
* Fantastiske og usjenerte og solrike terrasser/plattinger og grillbu
* Kort vei til både golf, alpint, tur- og lysløyper
* Eiendommen var opprinnelig tiltenkt klubbhuset til golfen, men planen ble endret og her er det nå beliggende en svært innholdsrik duohytte (to hytter!) samt innredet anneks
* Dette er en unik mulighet til å sikre seg over 2,3 mål eiet tomt beliggende mot Nisser og naturflotte omgivelser bestående av fjell, masse sol og helt usjenert
* Hver boenhet (2 hytter) er innredet med bla. entrè, gang, 2 bad, 4 soverom, kjøkken med plass til spisestuen samt to stuer
* Annekset/bod (isolert, men ikke godkjent til varig opphold) er innredet med entrè, bad med badstue og stue/kjøkken/soverom
* Medfølger 2 båtplasser
* Fantastiske og usjenerte og solrike terrasser/plattinger og grillbu
* Kort vei til både golf, alpint, tur- og lysløyper
NB: Knappen for å vise hele beskrivelsen har kun en visuell effekt.
NB: Knappen for å vise hele beskrivelsen har kun en visuell effekt.
Salgsoppgaven beskriver vesentlig og lovpålagt informasjon om eiendommen
Se komplett salgsoppgaveNyttige lenker
Nærområdet
Krogsveen Sandefjord
Velkommen til en enklere boligreise.
Annonseinformasjon
| FINN-kode | 374897363 |
|---|---|
| Sist endret | 31. okt. 2025 13:32 |
| Referanse | KR22.24281 |
Annonsene kan være mangelfulle i forhold til lovpålagt opplysningsplikt. Før bindende avtale inngås oppfordres interessenter til å innhente komplett informasjon fra meglerforetaket, selger eller utleier.






















































































