Bildegalleri

Planlagt nøkkelferdig hytte på skjermet felt som ligger spektakulært til med fantastisk utsikt. Kort vei til Stryn
Nøkkelinfo
- Beliggenhet
- På fjellet
- Boligtype
- Hytte
- Eieform
- Eier (Selveier)
- Internt bruksareal
- 141 m² (BRA-i)
- Bruksareal
- 141 m²
- Balkong/Terrasse
- 34 m² (TBA)
- Tomt
- Eiet
- Byggeår
- 2024
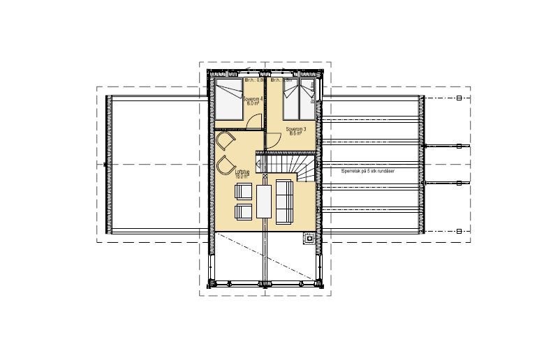
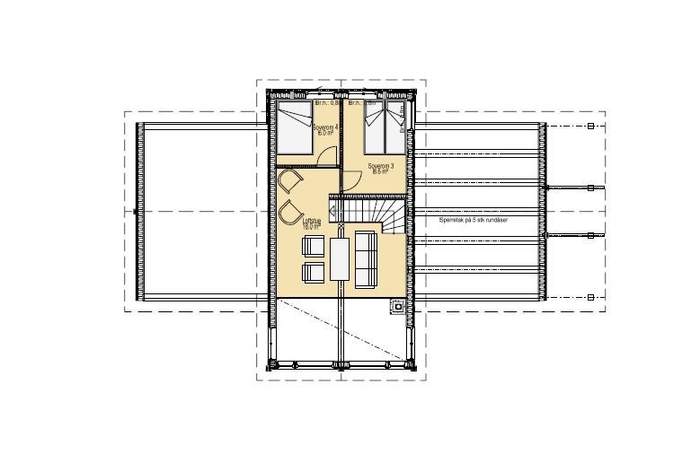
- Soverom
- 4
- Rom
- 5
Fasiliteter
Visning
Ta kontakt for å avtale visning.Om eiendommen
Beliggenhet
Sandeåsen hyttefelt ligger spektakulært til med en utsikt de fleste av oss, bare kan drømme om. Er en glad i å gå i fjellet sommer som vinter er Sandeåsen et flott utgangspunkt for den slags aktivitet.
Adkomst/Tomteforhold
Fra Stryn følger du Fylkesvei 60 til Alexandra Hotell i Loen, tar av til Fylkesvei 723 inn til Sandsåsen Fritidssenter og tar av opp til venstre. Følg veien opp til Service huset og kjør videre fremover opp til tomtene som du ser på toppen av knausen.
Generelt
Feltet består totalt av 20 tomter, hvor av 4 er de som bygges ut i starten. Her er du tilknyttet alle fasiliteter et moderne hytteliv krever.
Sandeåsen hyttefelt ligger spektakulært til med en utsikt de fleste av oss, bare kan drømme om. Lovatnet med sin karakteristiske farge, som speiler stup bratte fjell og heilårs isbre, gjør området så unikt at det må bare oppleves. Er en glad i å gå i fjellet sommer som vinter er Sandsåsen et flott utgangspunkt for den slags aktivitet. Eller om en bare ønsker å ta seg en kajakk tur på det vakre vannet. Feltet ligger skjermet, men likevel kort avstand fra alle nødvendigheter, være seg butikker etc. Det er kort vei til fagre Stryn om en ønsker seg en shopping tur, eller om en vil ta seg en tur i Ski bakken på Stryn Vinterski. For den del, om en er entusiast, kan en svippe seg en tur på Stryn Sommerski. Med andre ord er det enkelt å fylle dagene med alt av aktiviteter i nærområdet.
Rå 156 er en flott oppstuemodell med store rom, og herskaplig inngangsparti med dobbel ytterdør. Her har vi lagt vekt på kjøkkenet, som er hyttas sosiale samlingspunkt. I tillegg må det nevnes at stua har en åpen og luftig løsning opp til loftstua. Hytta har totalt fire soverom, to bad og eget vaskerom/bod med inngang både fra hall og ute.
Generell utførelse
• Stående låvepanel mix bredder med stavlaftdetaljer (ubehandlet), 20 cm isolasjon i yttervegg.
• Torv på tak
• Steinforblendet pipe over tak
• Takstige og snøfangere der det er krav.
• Vinduer iht. tegning. 2-lag energiglass, standard farge hvit inne/ute hvit NC SS 0502Y. Vinduer med gjennomgående sprosser.
• Takrenner i sort stål.
• Tinde ytterdør m/vindu, malt hvit.
• Eventuell sportsbod / utebod har Tinde boddør u/vindu, malt hvit.
• Terrasse leveres der det er vist på tegninger uten rekkverk.
• Isolasjon 25 cm i tak, 20 cm yttervegg og 10 cm i innervegger.
• Flytende gulv med 13 mm eikeparkett 3-stavs, type Kährs.
• Innvendige furupanel fra Moelven: 13 mm Sprekkpanel på vegger og himling, ubehandlet.
• Glatt standard listverk, ubehandlet.
• Furu 3-speils innerdører, ubehandlet.
• For hytter som leveres med hems/ loft er det inkludert trapp i ubehandlet utførelse.
• For hytter med badstue leveres benk i gran ubehandlet.
• Kjøkken fra Aubo Kjøkken av typen Unik NCS S 3502-Y, med laminat benkeplate og Slimline kjøkkenventilator (hvitevarer følger ikke med).
Rørlegger/innvendig sanitær
Rørleggerarbeid med utstyr iht. standard rørleggeroppsett. I utstyrsoversikt kan nevnes:
• Bunnledninger (rør som ligger i betongplate innenfor ringmur fram til toalett, sluker osv.).
• Rette slagdører i dusjnisje evnt. Dusjnisjedør (iht. tegning) med dusjgarnityr.
• Vegghengt toalett med innebygd sisterne.
• Unidrainsluk på bad.
• Baderomsinnredning m/skuffer, porselensvask og speil.
• Innredning med vask og speilskap leveres det det er separat WC rom.
• Varmtvannsbereder 200 liter.
• 1-greps blandebatterier på kjøkken, bad og evnt. andre våtrom.
• Opplegg for tilkobling av kjøkkenbenk m/ 1-greps benkebatteri med høy tut, samt opplegg for tilkobling av oppvaskmaskin.
• Lekkasjesikring/vannstoppeventil.
Murer, Flis, pipe og ildsted
• Peisovn med sideglass og m/glassplate montert på sort stålpipe.
• Flislagt gulv i vindfang med 30x60cm flis.
• Flislagt gulv på bad med 30 x 60 fliser. Ved eget WC-rom og badstue leveres det også 30x60 cm flis.
• Flislagte vegger på bad med 30x60 cm flis.
• Har hytta eget vaskerom, innvendig bod eller sportsbod leveres det med 30x30 cm flis.
Elektroinstallasjoner og utstyr
Elektrikerarbeid med utstyr iht. standard elektrikeroppsett. I utstyrsoversikt kan nevnes:
• Inntaksskap og kabel mellom inntak og sikringsskap.
• Sikringsskap m/overbelastningsvern, jordfeilautomater og overspenningsvern.
• EL-punkter (iht. NEK 400).
• Varmekabler med termostat og føler i vindfang og våtrom.
• Strømforsyning til seriekoblet røkvarslere m/backup batteri.
• Astrour-styrte utelamper.
• Downlights leveres i vindfang og bad. Om hytta har WC og gang i tillegg leveres det også downlights her.
• Taklamper leveres i soverom. For de hyttene som har vaskerom og bod, leveres det taklamper her.
• Panelovner, stikkontakter, komfyrvakt og badstuovn leveres i tråd med tegning.
Oppgradering av leveransen
• Taktyper som tilpasses ønsker og/evt reguleringsplan.
• Beiset sprekkpanel på vegger og himling, listverk, utforinger og innvendig trapp/stige i en av Tinde sine standard farger.
• Innerdører, vinduer, ytterdør og evnt. boddør malt i valgfri NCS farge.
• Hvitevarepakke og kjøkkenløsning
Ellers samme leveranse som standard.
Prisen er for ferdig oppsatt hytte inkl. tomt og grunnarbeid. Tomteverdi (tomt 1 ) kr 2 000 000,- Verdi grunnarbeid estimert kr 1 100 000,-
For totalpris, div. avgifter og kostnader, se; https://www.tindehytter.no/hyttefelt/sandeasen-lodalen
Prisene er beregnet med SSB sin sist kjente indeks, og vil bli justert til enhver tids gjeldene indeks.
Det tas forbehold om endelig godkjenning fra kommunen.
Salgsoppgaven beskriver vesentlig og lovpålagt informasjon om eiendommen
Se komplett salgsoppgaveNærområdet
Tindehytter AS
Annonsene kan være mangelfulle i forhold til lovpålagt opplysningsplikt. Før bindende avtale inngås oppfordres interessenter til å innhente komplett informasjon fra meglerforetaket, selger eller utleier.




















