Bildegalleri

Planlagt hytte med garasje | Beliggende midt i smørøyet til Nord Europas ski paradis. Ski In/out
Nøkkelinfo
- Beliggenhet
- På fjellet
- Boligtype
- Hytte
- Eieform
- Eier (Selveier)
- Internt bruksareal
- 111 m² (BRA-i)
- Bruksareal
- 132 m²
- Eksternt bruksareal
- 21 m² (BRA-e)
- Balkong/Terrasse
- 26 m² (TBA)
- Tomt
- Eiet
- Byggeår
- 2024
- Soverom
- 4
- Rom
- 5
Fasiliteter
Visning
Ta kontakt for å avtale visning.Om eiendommen
Beliggenhet
Blådalslia på Strandafjellet ligger perfekt til for den aktive familien. Her har du direkte tilgang til alt Strandafjellet har å by på.
Adkomst/Tomteforhold
Fra Stranda Ferjekai: Kjør ca 7 km i retning Strandafjellet Skisenter på
Rv. 60. Sving til høyre innpå Hevsdalsvegen og kjør ca. 150. Sving venstre
inn på veg 1155 og kjør ca 100 meter. Ta deretter til høyre inn på veg 1156.
Du er ankommet tomten på høyre side. Tomten blir skiltet.
Generelt
Blådalslia på Strandafjellet ligger perfekt til for den aktive familien. Her har du direkte tilgang til alt Strandafjellet har å by på. Strandafjellet har vunnet flere internasjonale og nasjonale kåringer for sine fantastiske ski / alpint fasiliteter, med et topp moderne anlegg, som byr på et stort løype nett, og restauranter på toppene. Stova er selve samlingsstedet tidlig som sent, med godt utvalg både av mat og drikke. Ønsker du en langrenns tur, slynger løypene seg rundt i fantastisk natur.
Er du på hytten på våren, sommeren eller høsten, ja da har du turmuligheter rett utenfor døren, på alle slags nivåer, og i umiddelbar nærhet ligger noen av de råeste fjelltur / topptur fjellene åpne for å ta imot deg. Eller du kan ta med deg fiskestangen å gå deg en tur for å fiske i elver eller vann. Her har du absolutt alt en familie kan tenke seg.
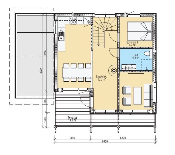
Blådalslia Chalet er en areal effektiv og eksklusiv hytte med 4 soverom, to bad og badstue. Hytten har en luftig og flott stue/ kjøkken løsning. Garasje er inkl. Med sin karakteristiske stil er dette en hytte for familien.
Planlagt hytte
Prosjektet leveres nøkkelferdig med høy standard, på stor sørvendt og meget solrik tomt! Det er utarbeidet et konsept av elementer som både passer fint i omgivelsene
og i en hytte litt utenom det vanlige. Her vil du kunne ha mulighet til å kunne påvirke hyttens standard og innhold.
Utvendig leveranse kort fortalt
• Tretak
• Stående og liggende kledning 19x123 dobbelfals rett- og skråkant, grunnet og beiset med ett strøk på byggeplass
• Vinduer og dører leveres i dempet sort
• Takrenner i sort stål
• Stor balkong og terrasse
• Utelamper
• Frostfri utekran
• Innvendig bod
Standard innvendig leveranse
Det er i valg av panel vektlagt betydningen av hva som skaper hyttefølelsen, inn i det moderne interiørbildet og som samtidig bærer høy kvalitet. Det er valgt å kle både
vegger og himling med samme panel. I interiørkonsept blir innvendig panel beiset i en lun farge som gir et dempet og sofistikert uttrykk.
Gulvene i hytten får et flott Bjelin xxl gulv som står fint i stil med panelen som er valgt på vegger og i himlingen.
Vindfang blir flislagt og det gjøres for at det skal være enklere å holde den ren, samt beskytte mot fuktskader.
Det er valgt store fliser på 60x60 cm.
Det skal være lunt og behagelig å være på badet. I likhet med resten av hytten er det valgt sorte detaljer på det meste av innredning. Toalettet er vegghengt med soft
close sete. Over baderomsinnredningen vil det bli montert speil med belysning.
Gulvene på badet blir levert med store, pene fliser. Disse er på 60x60 cm og gir et eksklusivt uttrykk. Dette er forøvrig også samme flis som er valgt i hall, som vil gi et
fullført helhetsinntrykk av hytten.
Veggene blir kledd med store fliser på 60x60 cm. Himlingen på badene blir kledd med samme panel som de øvrige veggene i hytten. Her vil beisen følge interiørkonseptet
som blir valgt. Badet har i likhet med de øvrige rommene i hytten taklister i samme beisfarge som vegg- og takpanel.
Hytten har egen badstu! Etter en lang dag ute i vinterkulden er det ikke mye som slår varmen i badstuen.
I badstuen blir vegger, himling og benker kledd med ubehandlet osp. Det samme blir listverket. Dør mellom
bad og badstue vil få sotet glass. I badstuen får gulvene sokkelflis i samme utførelse som gulvene.
Oppvarming
Nordpeis Origo DV m/sideglass og gulvplate i glass.
Varme i gulv stue/kjøkken, bad og hall. Panelovner.
Kjøkkenet leveres av Hjelle kjøkken i heltre, malt i fargen Dempet sort.
Tomteverdi kr. 1 500 000,-
For omkostninger og avgifter, se prospekt.
Salgsoppgaven beskriver vesentlig og lovpålagt informasjon om eiendommen
Se komplett salgsoppgaveNærområdet
Tindehytter AS
Annonsene kan være mangelfulle i forhold til lovpålagt opplysningsplikt. Før bindende avtale inngås oppfordres interessenter til å innhente komplett informasjon fra meglerforetaket, selger eller utleier.









