Bildegalleri

Bortelid - Lekker hytte for salg | Solrikt og lunt område | 2 soverom
- Omkostninger
- 21 250 kr
- Totalpris
- 2 411 250 kr
Nøkkelinfo
- Beliggenhet
- På fjellet
- Boligtype
- Hytte
- Eieform
- Eier (Selveier)
- P-plasser
- 2
- Primærrom
- 31 m²
- Bruksareal
- 31 m²
- Tomteareal
- 170 m² (eiet)
- Grunnflate
- 34 m²
- Byggeår
- 2025
- Soverom
- 2
- Meter over havet
- 550
Fasiliteter
Visning
Ta kontakt for å avtale visning.Om eiendommen
Beliggenhet
Hytten bygges i Bortelids nyeste hyttefelt svært tett på sentrum av Bortelid. Kort gangavstand til matbutikk, skisenter og andre av Bortelids fasiliteter. Det er bilvei fram til hytteveggen. Området har skiløype i umiddelbar nærhet. Om sommeren er det masse aktiviteter som frisveegolf, fiskevann, turløyper og en rekke andre muligheter.
Generelt
Adkomst/Tomteforhold
Innhold
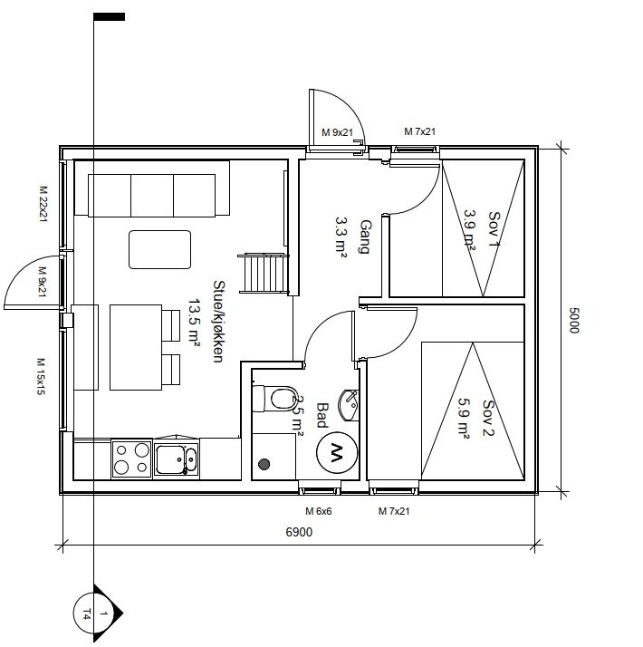
1.etasje: Stue/kjøkken, 2 soverom, bad m/dusjhjørne
Loft: Hems
Standard
Leveransebeskrivelse og romskjema fås på forespørsel.
Reguleringsforhold
Tomtene er regulert til fritidsbolig. Områdene rundt er regulert til friområder. Fritidstomtene BFK1-BFK6 er regulert til konsentrert fritidsbebyggelse. Tomtene ellers er regulert til frittliggende fritidsbebyggelse.
Området er regulert under reguleringsplan for Velia Sør, plan-ID: 20210090. Denne planen trådte i kraft 17/3-2022. Hele storområdet inngår også i Kommuneplan for Bortelid 2006-2030 som trådte i kraft 11/10-2007.
Reguleringsplanen for Velia sør definerer hva som kan bygges på tomtene, utnyttelsesgrader mm. Reguleringsplanen er vedlagt i salgsoppgaven og salg forutsetter at kjøper har satt seg godt inn i reguleringsplanen og regulering av tomten salget gjelder på forhånd. TT-anlegg står for øvrig for at rekkefølgekravene og annet blir oppfylt slik at ny hytte kan leveres nøkkelferdig.
Oppvarming
Peisovn Lotus Mondo 3 i stuen, samt. varmekabel i stue, kjøkken, gang, bad/vaskerom og i bod.
Vei, vann, kloakk
Det legges inn offentlig vann og kloakk. Tilkoblingsavgift på kr 92 000,- kommer i tillegg.
Veiene under planen for Velia Sør vil være private veier og tomtene vil dermed få tinglyste veiretter med plikt til å delta i kostnader for vedlikehold, brøyting, skiløyper ol. i området.
Avgift til Bortelid Drift og Vedlikehold for vedlikehold, brøyting og løypeavgift for skiløyper:
- Løypeavgift (2024): 1 568,-
- Brøyting med parkering ved hytta (2023): 5 535,-
Plikt til å betale avgifter for løype og brøyting tinglyses i grunnboken på hver eiendom.
Det vil bli lagt trekkerør for fiber frem til tomtegrensen. Strømkabler vil også legges i bakken i området som omfattes av reguleringsplanen for Velia Sør.
Offentlige avgifter
Kommunale avgifter er hentet fra Åseral Kommune sin prisliste for 2024.
Avløpsavgift:
- Abonnementsgebyr avløp hytte: 5 110,-
- Forbruksavgift pr. m3: 79
Vassavgift:
- Abonnementsgebyr vann hytte: 2 088,-
- Forbruksavgift pr. m3: 41,-
Feie- og kontrollavgift:
- Per pipeløp: 556,-
Ingen eiendomsskatt i Åseral Kommune pr. 2022. For mer informason om kommunale avgifter i Åseral kommune, besøk https://pub.framsikt.net/2024/aseral/bm-2024-gebyrliste_2024[/generic/summary/feesmanagemant?scrollTo=t-157
Listen over er ikke komplett. Satsene er hentet fra Åseral kommunes gebyrliste den 17.10.2023 og kan endres uten forvarsel.
Normalavgift for hytterenovasjon i 2024 kommer i tillegg og utgjør kr. 3 533,38,-. Dette beløpet varierer etter forbruk. Det er 2 terminer i året.
Servitutter
Det ligger vedlagt liste med alle tinglyste servitutter/erklæringer i salgsoppgave/prospekt. Servituttene/erklæringene er kopi/utdrag fra grunneiendommene sine grunnbøker.
Fra hovedbølet som eiendommen fradeles fra, kan det være tinglyst heftelser i form av erklæringer/ avtaler mv. som følger over ved fradeling. Dette kan være seg veiretter i området mv., men uten at dette berører den enkelte eiendom. Eiendommen skal være fri for tinglyste pantedokument.
Selger forbeholder seg retten til å tinglyse rettigheter/plikter som er nødvendige for utbyggingen av prosjektet.
Ferdigattest/Midlertidig brukstillatelse
Selger skal fremskaffe ferdigattest på alle hyttene. Dersom slik ferdigattest ikke foreligger på overtagelsestidspunktet, skal selger fremskaffe en midlertidig brukstillatelse. Kjøper aksepterer at midlertidig brukstillatelse i stedet for ferdigattest, ikke kan anses som en mangel.
Byggesøknad (anmodning om rammetillatelse/igangsettelse) basert på vedlagte tegninger og reguleringsplan blir tilsendt kommunen. Det legges til forbehold om at denne må være godkjent innen byggestart.
Energiattest
Selger er ansvarlig for at boligen har energiattest. Energimerkingen må foreligge før det kan utstedes ferdigattest.
Ligningsverdi
Eiendommen er ikke ferdigstilt og heller ikke lignet for formuesbeskatning. Dette må kjøper påregne at myndighetene gjennomfører i fremtiden.
Velavgift
Vel avgift: Velforeningsavgift betales til Bortelid velforening og hyttelag. Kontigenten er for tiden på 500kr pr. år.
Andre opplysninger
Hvitevarer medfølger ikke i handelen dersom ikke annet tydelig fremkommer i salgsoppgaven.Forbehold om feil i annonsen
Forbehold om offentlig godkjenning
Ta kontakt med megler for komplett informasjon
Nærområdet

Annonseinformasjon
| FINN-kode | 373777065 |
|---|---|
| Sist endret | 27. aug. 2025 18:18 |
| Referanse | XSTEFFENX |
Annonsene kan være mangelfulle i forhold til lovpålagt opplysningsplikt. Før bindende avtale inngås oppfordres interessenter til å innhente komplett informasjon fra meglerforetaket, selger eller utleier.





