Bildegalleri

Velkommen til fantastiske Engerdal og denne svært fine og innholdsrike fritidseiendommen! Her er det god plass for storfamilien eller gjester med 4 soverom, 2 bad og svært romslige terrasse!
ENGERDAL ØSTFJELL
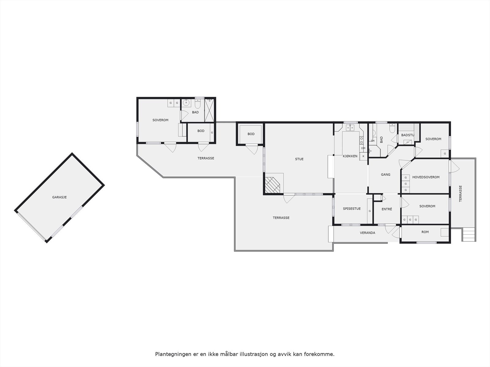
Svært innholdsrik og pen hytte med hele 4 sov og 2 bad. Anneks, boder og garasje. 71 kvm terrasse med storslagen utsikt!
Prisantydning2 090 000 kr
- Omkostninger
- 53 490 kr
- Totalpris
- 2 143 490 kr
- Kommunale avg.
- 20 979 kr per år
Nøkkelinfo
- Beliggenhet
- På fjellet
- Boligtype
- Hytte
- Eieform
- Eier (Selveier)
- Internt bruksareal
- 92 m² (BRA-i)
- Bruksareal
- 133 m²
- Eksternt bruksareal
- 41 m² (BRA-e)
- Balkong/Terrasse
- 71 m² (TBA)
- Tomteareal
- 1 131 m² (festet)
- Festeavgift
- 4 232 kr
- Byggeår
- 2002
- Soverom
- 4
- Rom
- 5
- Energimerking
- D - Gul
Fasiliteter
Innlagt vann
Balkong/Terrasse
Barnevennlig
Bilvei frem
Garasje/P-plass
Peis/Ildsted
Rolig
Utsikt
Innlagt strøm
Turterreng
Visning
For visninger utover annonserte visninger, ta direkte kontakt med megler. Ved annonsert visning er det viktig at du melder deg på visningen ved å bruke visningspåmeldingsknappen eller kontakter megler. Annonserte visninger hvor det ikke er noen påmeldte innen kl. 16.00 dagen før visningsdagen vil ikke bli avholdt.
Husk å lese komplett salgsoppgave før visning. Bestill komplett, utskriftsvennlig salgsoppgave.
VisningspåmeldingOm boligen
Velkommen til vakre Engerdal, Engerdal Østfjell og Bergknausen 5!
En innholdsrik fritidsbolig beliggende på en flott tomt, ca. 826 moh med formidabel utsikt. Hytta som ble oppført i 2002 består bl.a. av hele 4 soverom og 2 bad, og har en dels overbygd terrasse mot vest som med sitt romslige areal har flere møbleringsmuligheter både under tak- og under åpen himmel. Terrassen byr på fine solforhold og majestetisk utsikt mot nærområdet, og mektige og velkjente fjellområder. Fra eiendommen er det umiddelbar nærhet til fantastiske helårs' tur- og friluftsmuligheter, og med skiløypa som nærmeste nabo har man et unikt og velutviklet løypenett som passerer like ved.
Med mange soveplasser, 2 bad, flere boder og godt med boltreplass er dette en unik hytte for storfamilien eller for gjester!
En innholdsrik fritidsbolig beliggende på en flott tomt, ca. 826 moh med formidabel utsikt. Hytta som ble oppført i 2002 består bl.a. av hele 4 soverom og 2 bad, og har en dels overbygd terrasse mot vest som med sitt romslige areal har flere møbleringsmuligheter både under tak- og under åpen himmel. Terrassen byr på fine solforhold og majestetisk utsikt mot nærområdet, og mektige og velkjente fjellområder. Fra eiendommen er det umiddelbar nærhet til fantastiske helårs' tur- og friluftsmuligheter, og med skiløypa som nærmeste nabo har man et unikt og velutviklet løypenett som passerer like ved.
Med mange soveplasser, 2 bad, flere boder og godt med boltreplass er dette en unik hytte for storfamilien eller for gjester!
NB: Knappen for å vise hele beskrivelsen har kun en visuell effekt.
NB: Knappen for å vise hele beskrivelsen har kun en visuell effekt.
Salgsoppgaven beskriver vesentlig og lovpålagt informasjon om eiendommen
Se komplett salgsoppgaveNærområdet
Aktiv Innlandet
Annonseinformasjon
| FINN-kode | 373622228 |
|---|---|
| Sist endret | 11. feb. 2026 13:56 |
| Referanse | 1211240409 |
Annonsene kan være mangelfulle i forhold til lovpålagt opplysningsplikt. Før bindende avtale inngås oppfordres interessenter til å innhente komplett informasjon fra meglerforetaket, selger eller utleier.





















































