Bildegalleri

Privatmegleren ved Ole Eirik Thunshelle ønsker velkommen til Tiurknatten 50
Hyttetun med to komplette boliger, beliggende med flott utsikt og gode solforhold. Helårsvei. Innlagt V/A. 220V.
- Omkostninger
- 107 840 kr
- Totalpris
- 3 597 840 kr
- Kommunale avg.
- 12 624 kr per år
- Formuesverdi
- 589 596 kr
Nøkkelinfo
- Beliggenhet
- På fjellet
- Boligtype
- Hytte
- Eieform
- Eier (Selveier)
- Internt bruksareal
- 169 m² (BRA-i)
- Bruksareal
- 169 m²
- Balkong/Terrasse
- 91 m² (TBA)
- Tomteareal
- 2 125 m² (eiet)
- Byggeår
- 2006
- Soverom
- 4
- Rom
- 6
- Energimerking
- C - Oransje
Fasiliteter
Visning
Husk å lese komplett salgsoppgave før visning. Bestill komplett, utskriftsvennlig salgsoppgave.
VisningspåmeldingOm boligen
Privatmegleren, ved Ole Eirik Thunshelle har gleden av å ønske velkommen til Tiurknatten 50. Her har du inngangsporten til Valdres med kort vei til alpinbakker og et stort løypenett.
- To tømmerhytter med påkostede løsninger i flotte turområder
- Selvstendige enheter med mange sengeplasser, gir god plass til familieliv, eventuelt utleiemuligheter
- Stort uteareal med panoramautsikt fra hyttenes terrasser
- Sjenert og lun beliggenhet med stor parkering som vinterbrøytes
- Aktiv hytteierforening med blant annet påskeaktiviteter i et område som tilbyr rikelig turglede
- Helårsvei
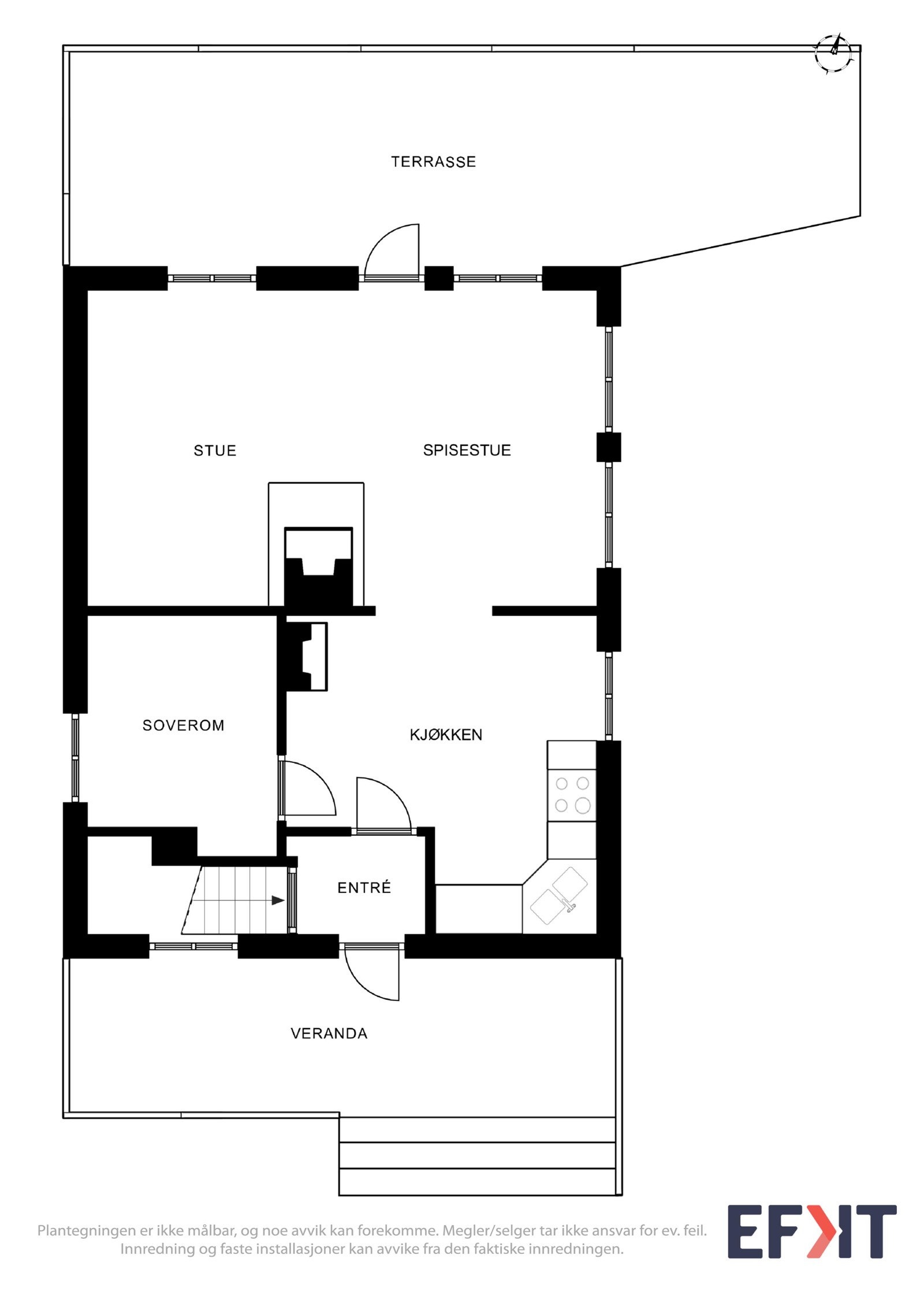
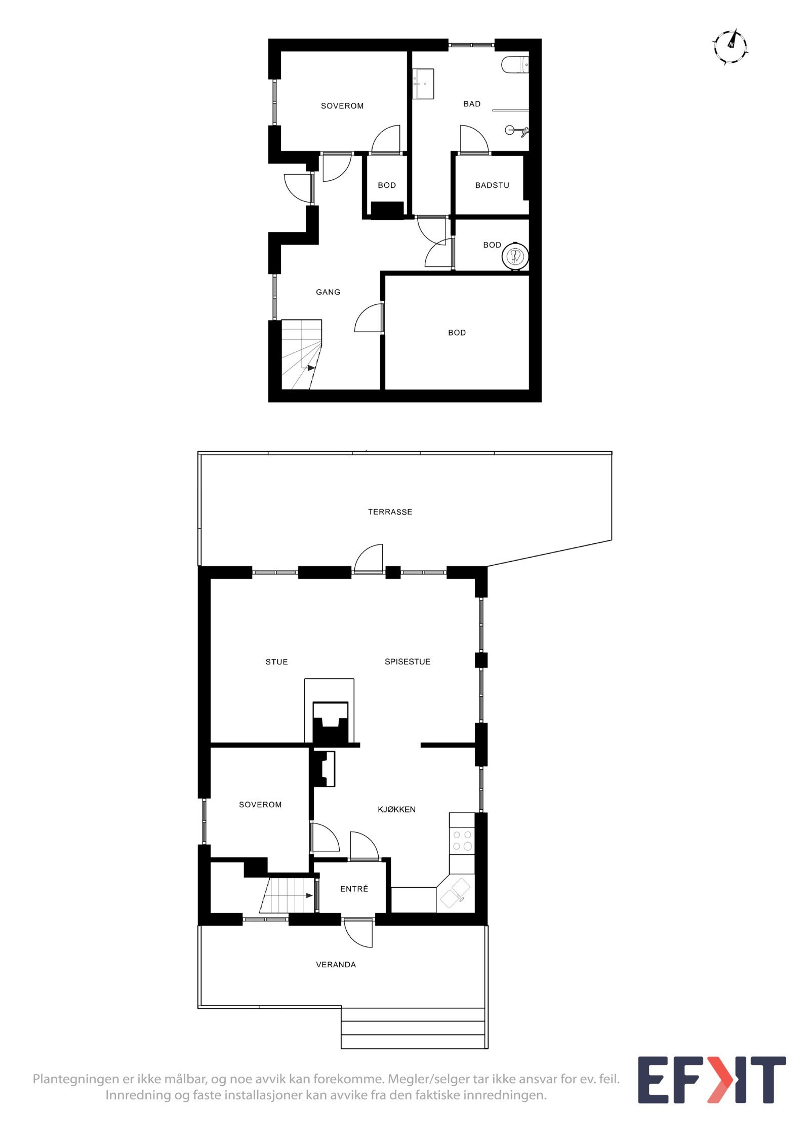
- Hytte 1 ferdigstilt i 2016 over to etasjer
- Plassbygd kjøkken og god stue med innbydende peis
- To soverom
- Delikat flislagt bad med badstue
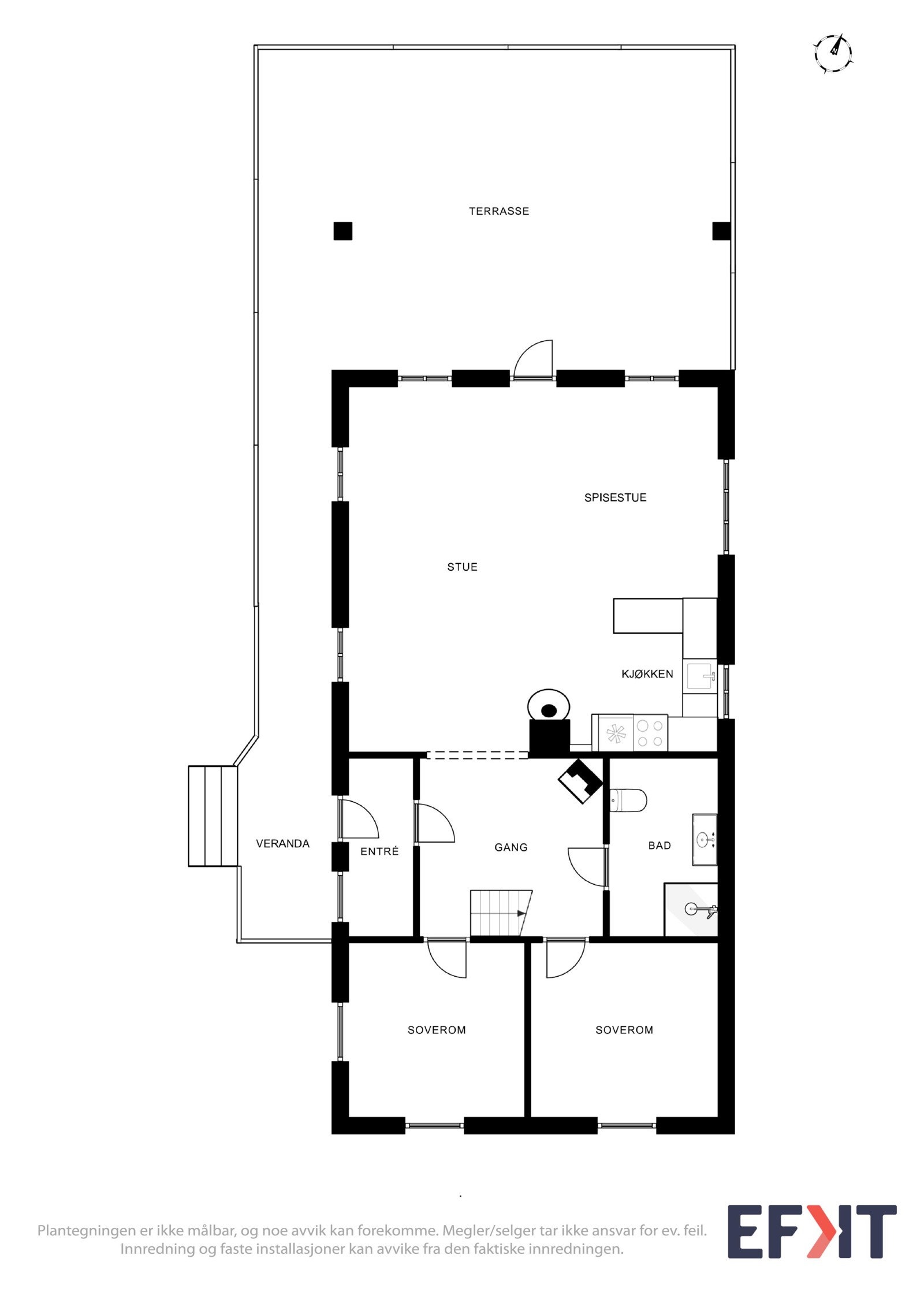
- Hytte 2 er oppført i 2006
- Luftig stue med tilbaketrukket kjøkken
- To soverom + hems
Salgsoppgaven beskriver vesentlig og lovpålagt informasjon om eiendommen
Se komplett salgsoppgaveNyttige lenker
Nærområdet

PrivatMegleren Renommé
Annonseinformasjon
| FINN-kode | 373410893 |
|---|---|
| Sist endret | 28. sep. 2025 02:15 |
| Referanse | 40240234 |
Annonsene kan være mangelfulle i forhold til lovpålagt opplysningsplikt. Før bindende avtale inngås oppfordres interessenter til å innhente komplett informasjon fra meglerforetaket, selger eller utleier.

























































