Bildegalleri

Velkommen til Nattrudstillia 16! Herlig familiehytte med en flott beliggenhet på en liten høyde. (Foto: Pholio v/ Bjørnar Fjeldberg)
Sjusjøen
Herlig familiehytte med panoramautsikt - Nær skianlegg, godt med sengeplasser, innlagt vann og strøm - Anneks med bod
Prisantydning4 900 000 kr
- Omkostninger
- 146 490 kr
- Totalpris
- 5 046 490 kr
- Kommunale avg.
- 11 577 kr per år
- Eiendomsskatt
- 6 454 kr per år
Nøkkelinfo
- Beliggenhet
- På fjellet
- Boligtype
- Hytte
- Eieform
- Eier (Selveier)
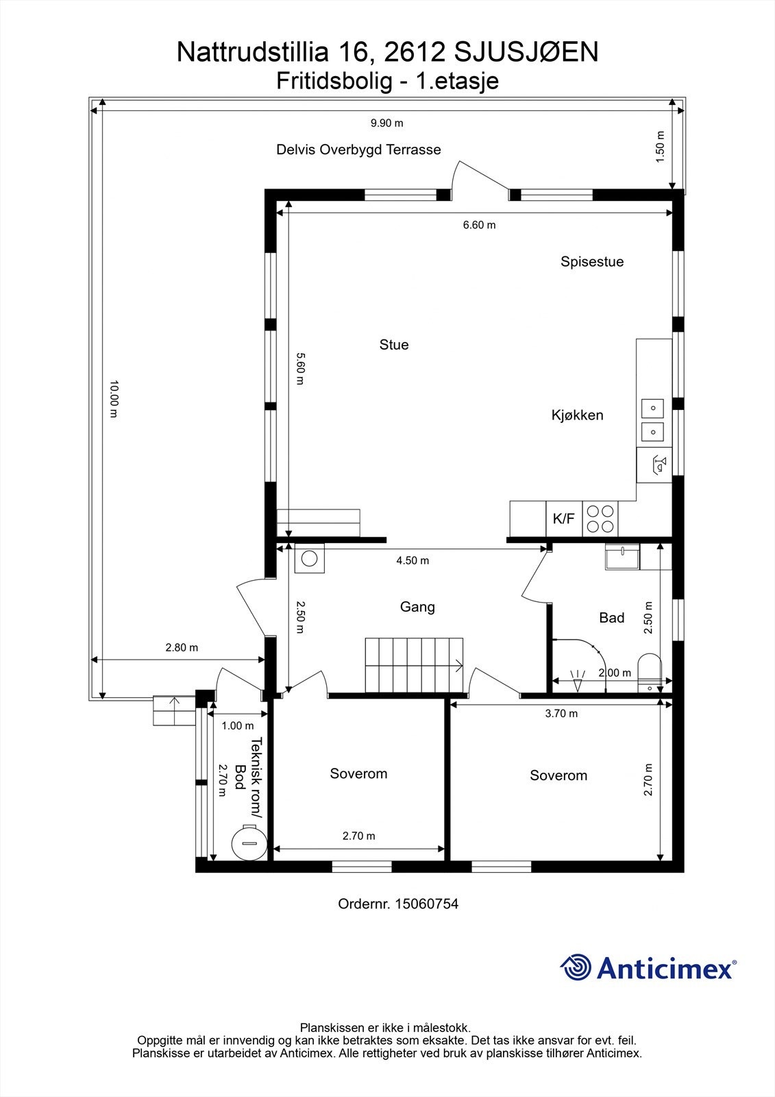
- Internt bruksareal
- 74 m² (BRA-i)
- Bruksareal
- 95 m²
- Eksternt bruksareal
- 21 m² (BRA-e)
- Balkong/Terrasse
- 38 m² (TBA)
- Tomt
- Festet
- Festeavgift
- 15 588 kr
- Byggeår
- 2006
- Soverom
- 2
- Rom
- 3
- Sengeplasser
- 8
- Energimerking
- D - Oransje
Fasiliteter
Innlagt vann
Alpinanlegg
Balkong/Terrasse
Barnevennlig
Bilvei frem
Garasje/P-plass
Hage
Peis/Ildsted
Rolig
Utsikt
Innlagt strøm
Offentlig vann/kloakk
Turterreng
Visning
lørdag, 21. februar
14:30 – 15:30
For å delta på visning, ber vi om at du melder deg på. Da sikrer vi at du får nødvendig informasjon og at det er satt av tilstrekkelig med tid. Husk å lese salgsoppgaven før visningen, så du stiller forberedt. NB. Visning utgår dersom det ikke er noen påmeldte.
Ønsker du kun å bli holdt orientert, kan du fra eiendommens hjemmeside få varsel om solgtpris, eller kontakte megler.
VisningspåmeldingOm boligen
Velkommen til Nattrudsillia 16!
Fin familiehytte med en flott beliggenhet på en liten høyde.
Panoramautsikt fra stue og terrassen.
Kort vei til skianlegget og flotte løyper og turstier i området.
Sjusjøen skisenter, Natrudstilen, har tre heiser, inkludert en stolheis, og totalt syv nedfarter som strekker seg over 7 km.
Du finner også en 5 km lang lysløype og to 5 km konkurranseløyper. Natrudstilen skisenter tilbyr en 10 km lang rulleskiløype, en asfaltert stadion på 7 dekar og 30 skiskytterskiver.
Hytteområdet er et meget attraktivt område både sommer og vinter.
Hytta har bilvei hele året og man kan få brøytet opp til selve hytta dersom man skal opp på vinterstid.
God og luftig planløsning med god takhøyde i stue og kjøkken.
Dette er en hytte som bør sees. Velkommen til visning!
Fin familiehytte med en flott beliggenhet på en liten høyde.
Panoramautsikt fra stue og terrassen.
Kort vei til skianlegget og flotte løyper og turstier i området.
Sjusjøen skisenter, Natrudstilen, har tre heiser, inkludert en stolheis, og totalt syv nedfarter som strekker seg over 7 km.
Du finner også en 5 km lang lysløype og to 5 km konkurranseløyper. Natrudstilen skisenter tilbyr en 10 km lang rulleskiløype, en asfaltert stadion på 7 dekar og 30 skiskytterskiver.
Hytteområdet er et meget attraktivt område både sommer og vinter.
Hytta har bilvei hele året og man kan få brøytet opp til selve hytta dersom man skal opp på vinterstid.
God og luftig planløsning med god takhøyde i stue og kjøkken.
Dette er en hytte som bør sees. Velkommen til visning!
NB: Knappen for å vise hele beskrivelsen har kun en visuell effekt.
NB: Knappen for å vise hele beskrivelsen har kun en visuell effekt.
Salgsoppgaven beskriver vesentlig og lovpålagt informasjon om eiendommen
Se komplett salgsoppgaveNyttige lenker
Nærområdet
Krogsveen Hamar
Verdien av en god megler.
Annonseinformasjon
| FINN-kode | 372626827 |
|---|---|
| Sist endret | 10. feb. 2026 10:13 |
| Referanse | KR65.24138 |
Annonsene kan være mangelfulle i forhold til lovpålagt opplysningsplikt. Før bindende avtale inngås oppfordres interessenter til å innhente komplett informasjon fra meglerforetaket, selger eller utleier.





























































