Bildegalleri

Plassering av tomt 1
Fritidsbolig ved sjøen i Flekkefjord - med båtplass og felles brygge
- Omkostninger
- 38 240 kr
- Totalpris
- 4 628 240 kr
Nøkkelinfo
- Beliggenhet
- Ved sjøen
- Boligtype
- Hytte
- Tomteareal
- 512 m² (eiet)
- Soverom
- 3
Fasiliteter
Visning
Ta kontakt for å avtale visning.Om eiendommen
Beliggenhet
Like utenfor Flekkefjord, nærmere bestemt i Gangstø v/ Abelsnes, finner du en skjult perle.
Gangstø hyttefelt er et lite hyttefelt med totalt 12 hyttetomter hvor 8 av tomtene er bebygd.
Hytta vi har for salg skal bygges på tomt nr. 1 med adresse: Kvellandstrand 5A. Hytta vil ligge sørvestvendt med fantastisk og fri utsikt over Anabeløy, Hidra og Hidrasundet, en av innseilingene til Flekkefjord.
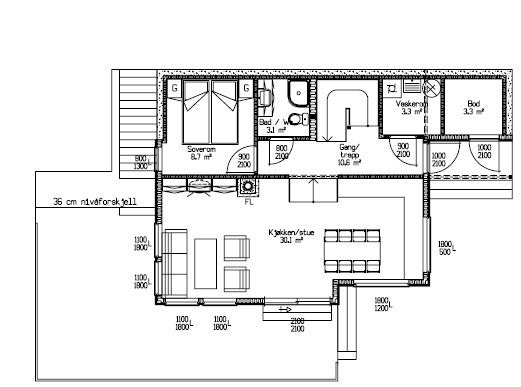
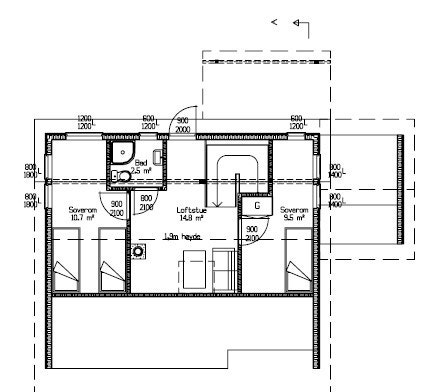
Her kan du få en svært innholdsrik hytte med hele 4 soverom, stor terrasse, båtplass med bod og felles bod med sløyebenk ved sjøen. Hyttefeltet ligger bare 10 minutter fra Flekkefjord sentrum med bil. Hyttefeltet er opparbeidet med bilvei fram, sti ned til bryggeanlegg og bod.
OM FLEKKEFJORD
Kystperlen Flekkefjord ligger midt mellom Kristiansand og Stavanger, helt innerst i Stolsfjorden på Sørlandet.
Før i tiden drev deler av byen aktiv handel med Nederland, og flere hollendere flyttet derfor hit. I dag kalles dette området for Hollenderbyen. Her kan du rusle langs gamle brosteinsgater mellom hvite trehus, ofte pyntet med sesongens fineste blomster.
Utforsk de smale smugene, titt innom en nisjebutikk eller to, og nyt en deilig lunsj på kafé. På spaserturen gjennom byen får du se noe av landets mest spektakulære gatekunst. Flere vegger er nemlig dekket av fargerike kunstverk og skaper en fin kontrast mot de gamle byggene.
Når det er tid for å bevege seg ut av sentrum, kan du finne roen på øya Hidra, gå tur til jettegrytene på Brufjell eller dra på skinnesykling på Flekkefjordbanen.
Flekkefjord kan ellers by på en svært flott skjærgård
Generelt
Hytta som er til salgs oppføres i takt med salg Her har du alle muligheter for påvirkning av materialvalg og planløsninger tilpasset dine ønsker og behov.
Pris kr 4.690.000,- + omkostninger (Nøkkelferdig iht. prospekt)
Det følger med båtplass. Hyttene har felles bod med sløyebenk samt egen utvendig bod.
Hyttefeltet har egen parkeringsplass som også gjestene kan benytte.
Ta kontakt for visning og fullstendig leveransebeskrivelse.
Adkomst/Tomteforhold
Følg RV44 ut fra Flekkefjord sentrum til du kommer til et kryss. Her tar du av og inn på fylkesvei 469 mot Abelnes. Følg denne veien i ca. 5,3 km og ta så til høyre mot Kvellandstrand. På toppen av bakken går det en vei inn til venstre. Følg denne veien til hyttefeltet.
Innhold
Standard
Ta kontakt med megler for komplett informasjon
Nærområdet
Mesterhus - Norrøn Bolig AS
Annonseinformasjon
| FINN-kode | 371977388 |
|---|---|
| Sist endret | 24. sep. 2024 08:35 |
| Referanse | X Gangstø tomt 1X |
Annonsene kan være mangelfulle i forhold til lovpålagt opplysningsplikt. Før bindende avtale inngås oppfordres interessenter til å innhente komplett informasjon fra meglerforetaket, selger eller utleier.














