Bildegalleri

Velkommen til Lehøvdvegen 99! Fotograf: Tor Solberg.
Lehøvd, Vestre Slidre
Trivelig og sjarmerende eiendom i flott turområde, ca. 920 moh! Ca. 20 m fra løypenett. Strøm. Lett, helårs adkomst.
Prisantydning1 690 000 kr
- Omkostninger
- 43 600 kr
- Totalpris
- 1 733 600 kr
- Verditakst
- 1 750 000 kr
Nøkkelinfo
- Beliggenhet
- På fjellet
- Boligtype
- Hytte
- Eieform
- Eier (Selveier)
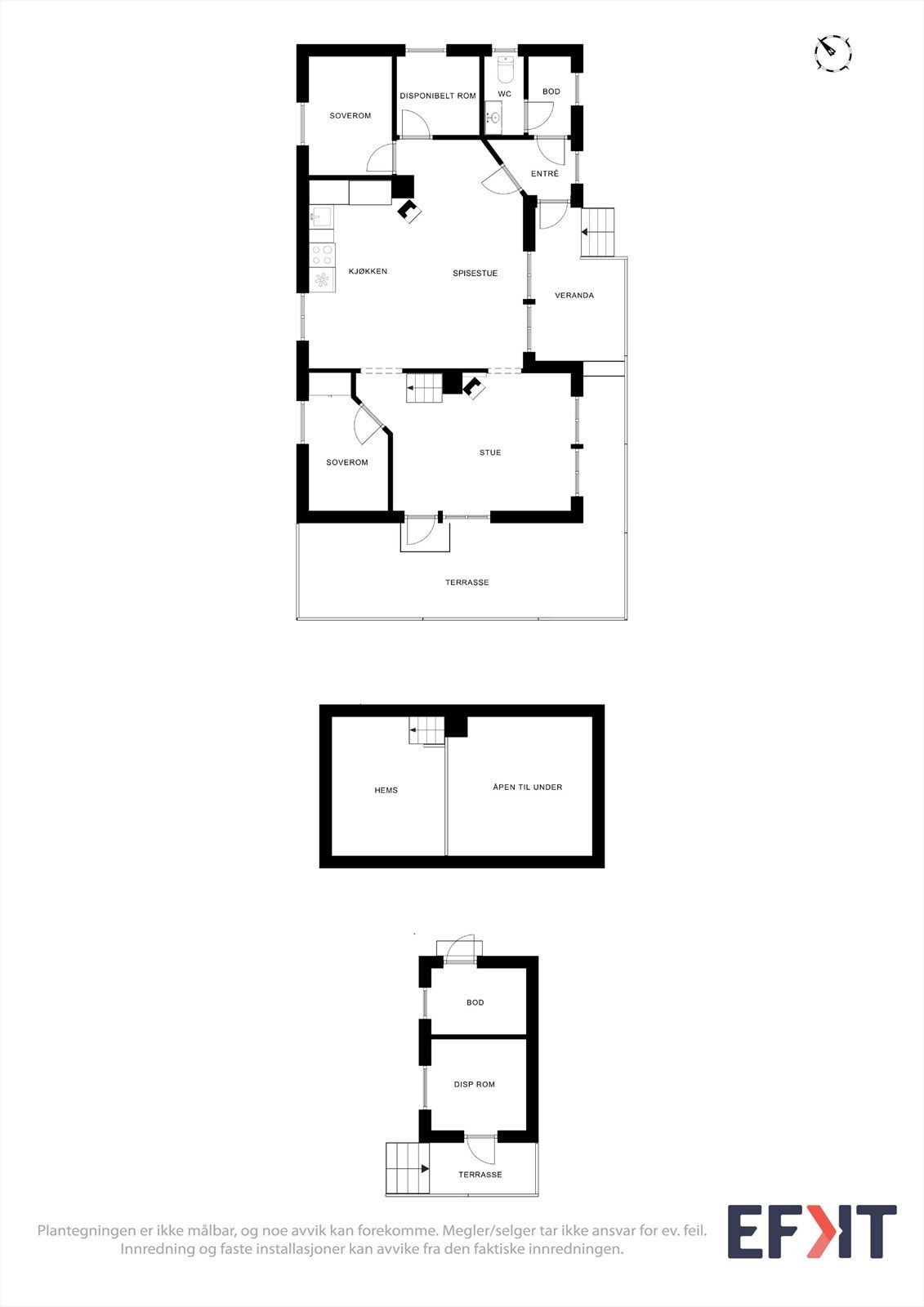
- Internt bruksareal
- 66 m² (BRA-i)
- Bruksareal
- 75 m²
- Eksternt bruksareal
- 9 m² (BRA-e)
- Balkong/Terrasse
- 29 m² (TBA)
- Tomteareal
- 1 059 m² (eiet)
- Byggeår
- 1999
- Soverom
- 2
- Rom
- 5
- Energimerking
- D - Oransje
Fasiliteter
Balkong/Terrasse
Barnevennlig
Bilvei frem
Garasje/P-plass
Hage
Peis/Ildsted
Rolig
Utsikt
Bademulighet
Fiskemulighet
Innlagt strøm
Turterreng
Visning
Ved annonsert visning er det viktig at du melder deg på visningen ved å bruke visningspåmeldingsknappen eller kontakter megler. Annonserte visninger hvor det ikke er noen påmeldte innen kl. 16.00 dagen før visningsdagen vil ikke bli avholdt.
For visninger utover dette, ta direkte kontakt med megler.
Husk å lese komplett salgsoppgave før visning. Bestill komplett, utskriftsvennlig salgsoppgave.
VisningspåmeldingOm boligen
Med lettvint, helårs tilgjengelighet, gode solforhold og flott utsikt, er dette en førsteklasses lokasjon å oppsøke. Eiendommen ligger midt i et spektakulært paradis for turgåere, der Grønsennknippa og Syndisfjellet kun er to av mange forlokkende destinasjoner. Området er en drøm for sykkelentusiaster og byr også på ypperlige fiskemuligheter. Om vinteren venter preparerte skiløyper som snor seg mil etter mil gjennom majestetisk fjellandskap. Den nærmeste løypa ligger omtrent 20 meter fra hytta.
For øvrig kan vi også by på følgende fasiliteter:
- Innbydende hytte med romslig kjøkken og lys stue.
- Innlagt strøm.
- 2 (3) soverom.
- Peisovn på både kjøkkenet og i stuen.
- Uthus/anneks med oppholdsrom (Ikke godkjent for varig opphold).
Hjertelig velkommen til visning!
For øvrig kan vi også by på følgende fasiliteter:
- Innbydende hytte med romslig kjøkken og lys stue.
- Innlagt strøm.
- 2 (3) soverom.
- Peisovn på både kjøkkenet og i stuen.
- Uthus/anneks med oppholdsrom (Ikke godkjent for varig opphold).
Hjertelig velkommen til visning!
NB: Knappen for å vise hele beskrivelsen har kun en visuell effekt.
NB: Knappen for å vise hele beskrivelsen har kun en visuell effekt.
Salgsoppgaven beskriver vesentlig og lovpålagt informasjon om eiendommen
Se komplett salgsoppgaveNærområdet
Aktiv Valdres
Annonseinformasjon
| FINN-kode | 371773160 |
|---|---|
| Sist endret | 19. des. 2025 09:11 |
| Referanse | 1201240108 |
Annonsene kan være mangelfulle i forhold til lovpålagt opplysningsplikt. Før bindende avtale inngås oppfordres interessenter til å innhente komplett informasjon fra meglerforetaket, selger eller utleier.








































