Bildegalleri

Velkommen til Ramnvegen 27 i Vrådal. Her har du direkte adkomst til alpinanlegg, skiløyper og flotte turområder rett utenfor døren!
Perfekt hytte for den kresne! Magisk utsikt - Alt på en flate - 4 soverom, 2 bad - Høy standard
Prisantydning5 990 000 kr
- Omkostninger
- 170 740 kr
- Totalpris
- 6 160 740 kr
- Kommunale avg.
- 15 034 kr per år
- Formuesverdi
- 1 182 813 kr
Nøkkelinfo
- Beliggenhet
- På fjellet
- Boligtype
- Hytte
- Eieform
- Eier (Selveier)
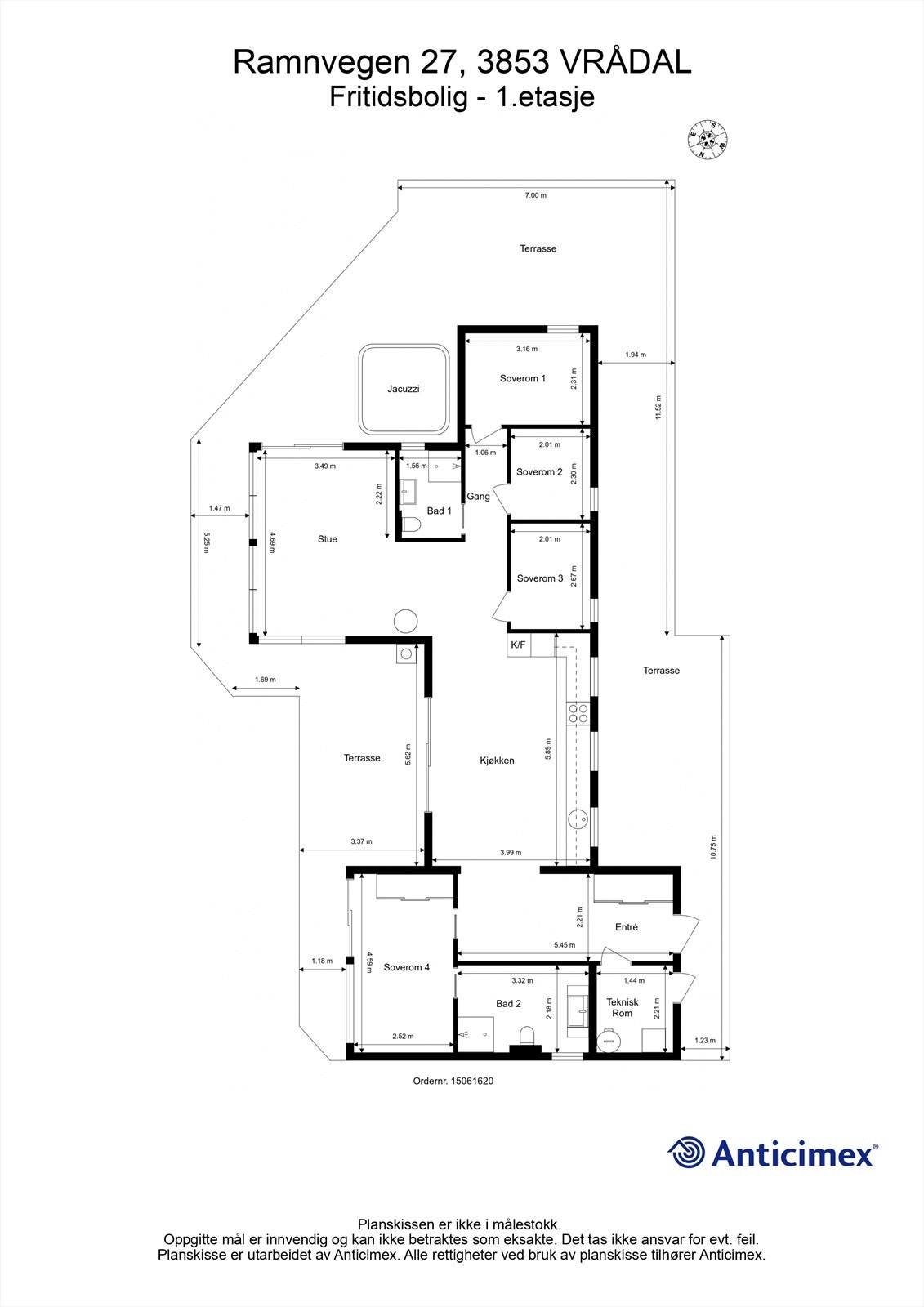
- Internt bruksareal
- 115 m² (BRA-i)
- Bruksareal
- 125 m²
- Eksternt bruksareal
- 10 m² (BRA-e)
- Balkong/Terrasse
- 118 m² (TBA)
- Tomteareal
- 939 m² (eiet)
- Byggeår
- 2016
- Soverom
- 4
- Rom
- 2
- Energimerking
- C - Gul
Fasiliteter
Innlagt vann
Alpinanlegg
Balkong/Terrasse
Barnevennlig
Bilvei frem
Bredbåndstilknytning
Garasje/P-plass
Golfbane
Peis/Ildsted
Rolig
Utsikt
Bademulighet
Fiskemulighet
Innlagt strøm
Offentlig vann/kloakk
Turterreng
Lademulighet
Visning
For å delta på visning, ber vi om at du melder deg på. Da sikrer vi at du får nødvendig informasjon og at det er satt av tilstrekkelig med tid. Kontakt megler dersom annet tidspunkt ønskes. Husk å lese salgsoppgaven før visningen, så du stiller forberedt. NB. Visning utgår dersom det ikke er noen påmeldte.
Visning i påsken etter avtale med megler!
Ta kontakt med megler for avtale om privatvisning.
Ønsker du kun å bli holdt orientert, kan du fra eiendommens hjemmeside få varsel om solgtpris, eller kontakte megler.
VisningspåmeldingOm boligen
Krogsveen v/Vindum ønsker velkommen til Ramnvegen 27 Stor og eksklusiv hytte med fantastisk utsikt!
En gjennomført hytte med høy standard, flott planløsning og mange uteplasser. Perfekt for de som ønsker komfort, aktivitet og naturopplevelser i ett.
4 soverom, 2 bad og romslig stue/allrom med kvalitetskjøkken
Store vindusflater lys, luftig og panoramautsikt
Flere solrike uteplasser og jacuzzi for ekstra velvære
Uteboder, parkeringsplass og elbil-lader ved hytten
Smakfullt innredet med fokus på kvalitet og funksjonalitet
Flytt rett inn og nyt vakre omgivelser ute og inne
Usjenerte uteplasser med storslått utsikt
Velkommen til vakre Vrådal og Vrådal Panorama!
En gjennomført hytte med høy standard, flott planløsning og mange uteplasser. Perfekt for de som ønsker komfort, aktivitet og naturopplevelser i ett.
4 soverom, 2 bad og romslig stue/allrom med kvalitetskjøkken
Store vindusflater lys, luftig og panoramautsikt
Flere solrike uteplasser og jacuzzi for ekstra velvære
Uteboder, parkeringsplass og elbil-lader ved hytten
Smakfullt innredet med fokus på kvalitet og funksjonalitet
Flytt rett inn og nyt vakre omgivelser ute og inne
Usjenerte uteplasser med storslått utsikt
Velkommen til vakre Vrådal og Vrådal Panorama!
NB: Knappen for å vise hele beskrivelsen har kun en visuell effekt.
NB: Knappen for å vise hele beskrivelsen har kun en visuell effekt.
Salgsoppgaven beskriver vesentlig og lovpålagt informasjon om eiendommen
Se komplett salgsoppgaveNyttige lenker
Nærområdet
Krogsveen Sandefjord
Velkommen til en enklere boligreise.
Annonseinformasjon
| FINN-kode | 371259557 |
|---|---|
| Sist endret | 29. des. 2025 13:45 |
| Referanse | KR22.24301 |
Annonsene kan være mangelfulle i forhold til lovpålagt opplysningsplikt. Før bindende avtale inngås oppfordres interessenter til å innhente komplett informasjon fra meglerforetaket, selger eller utleier.





![Kjøkken med hvitprofilerte fronter og integrerte hvitevarer fra byggeår [ 2016 ] Galleribilde](https://images.finncdn.no/dynamic/1600w/2025/11/vertical-2/24/7/371/259/557_5efbda2b-f693-48e7-8e50-978ada0b172d.jpg)








































































