Bildegalleri

Velkommen til Midtre Bure vei 6!

Har du noen spørsmål rundt salget av denne eiendommen?
Megler for dette salget
Jeg svarer gjerne på spørsmål om eiendommen og området.

Storsand - Fin hytte beliggende i rolige og naturskjønne omgivelser - Stor selveiertomt - 45 min fra Oslo
- Omkostninger
- 64 750 kr
- Totalpris
- 2 014 750 kr
- Kommunale avg.
- 3 018 kr per år
- Formuesverdi
- 286 074 kr
Pris på lån: fra 8 364 kr/mnd
Eff.rente 6,14 %. 1 170 000 o/20 år. Kostnad: 837 360 kr. Totalt 2 007 360 kr.
LånekalkulatorDenne annonsen har fått ekstra effekt fra BLINK
+60% flere klikk enn vanlig
Få flere klikk på din boligannonse+60% flere klikk enn vanlig
Få flere klikk på din boligannonseNøkkelinfo
- Beliggenhet
- Ved sjøen
- Boligtype
- Hytte
- Eieform
- Eier (Selveier)
- Internt bruksareal
- 42 m² (BRA-i)
- Bruksareal
- 68 m²
- Eksternt bruksareal
- 26 m² (BRA-e)
- Balkong/Terrasse
- 74 m² (TBA)
- Tomteareal
- 2 521 m² (eiet)
- Byggeår
- 1970
- Soverom
- 2
- Rom
- 3
- Energimerking
- G - Oransje
Fasiliteter
Om boligen
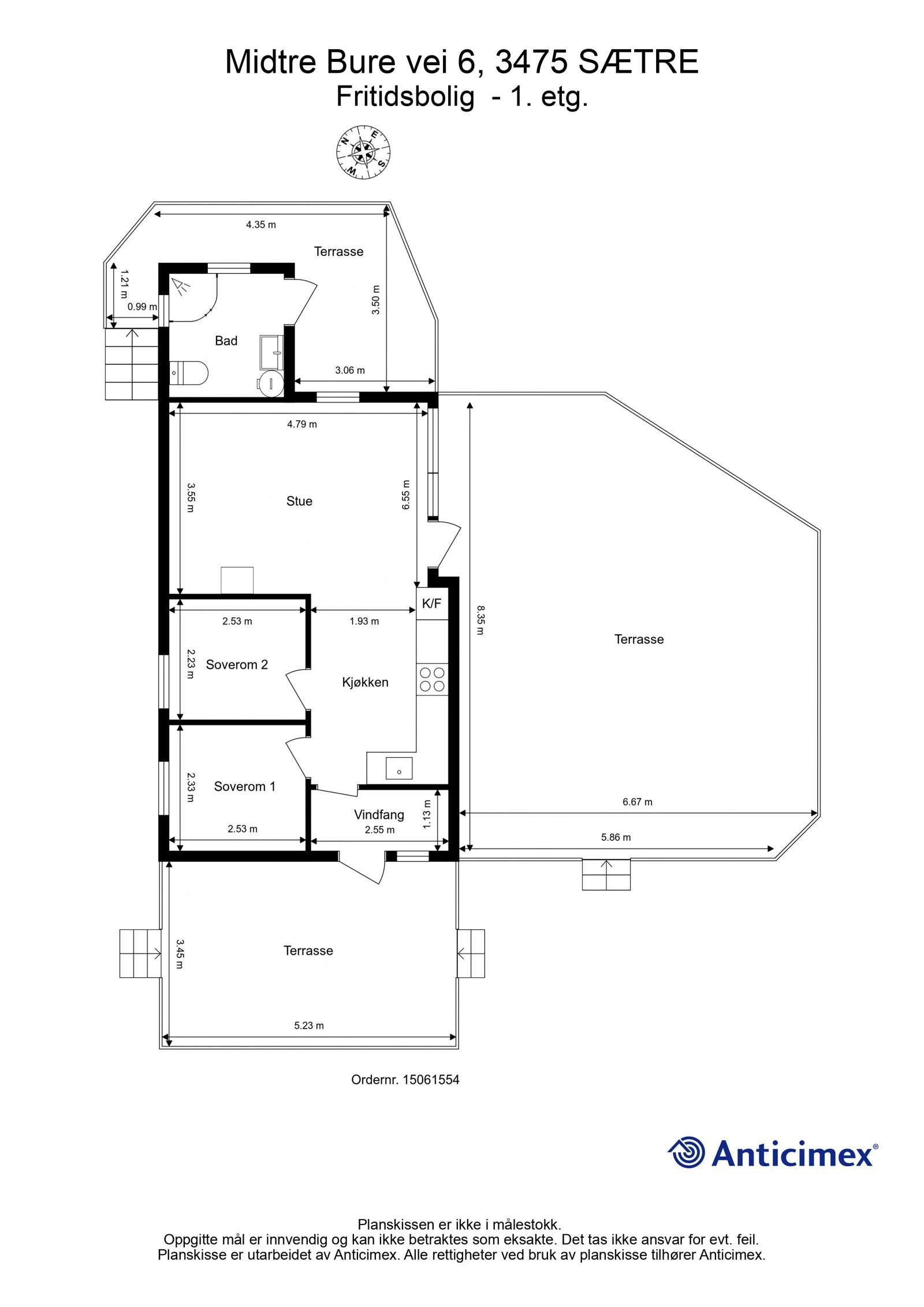
Velkommen til Midtre Bure vei 6 .- En koselig og sjarmerende hytte beliggende i landlige omgivelser med kort vei til både fjorden og marka. Her har man naturskjønne omgivelser og godt med plass til hyggelig sammenkomster. Hytta har en fin og usjenert beliggenhet i en blindvei. Flott turterreng i umiddelbar nærhet. I området finner man Eplegården og Grønsand gård med frisbeegolf samt tennisbane. Ca 15 min kjøring til Tofte sentrum med diverse servicetilbud og ca 7 min kjøring til Sætre sentrum med diverse forretning. Bilvei frem med parkeringsmuligheter på egen tomt.
- Beliggene i blindvei
- 2 soverom og anneks
- Terrasser på totalt 74 kvm
- Vedovn
Innhold: Hytte med vindfang, kjøkken, 2 soverom og stue. Utvendig adkomst til bad i forbindelse med hytten. Anneks med stue og 1 soverom.
Salgsoppgaven beskriver vesentlig og lovpålagt informasjon om eiendommen
Se komplett salgsoppgaveNyttige lenker
Nærområdet

FREM EIENDOMSMEGLING
Prisstatistikk
Midtre Bure vei 6
på annonsen
prisantydning per kvadratmeter
Prisfordeling
Pris per m² ligger 6 572 kr under snittet for hytter i Hurum.
Grafen viser antall hytter solgt i Hurum siste året fordelt på pris per m² - totalt 37 hytter
Antall boliger
Kvadratmeterpris tilsvarer prisantydning pluss fellesgjeld per kvadratmeter (p-rom eller BRA-i). Prisene i grafen er avrundet til nærmeste 1000 kr.
Annonsene kan være mangelfulle i forhold til lovpålagt opplysningsplikt. Før bindende avtale inngås oppfordres interessenter til å innhente komplett informasjon fra meglerforetaket, selger eller utleier.
































