Bildegalleri

Nyoppført, særegen, håndlaftet hytte m/høy standard.
Eggedal / Skallandslia
Nyoppført, særegen, håndlaftet hytte m/høy standard. Vakker uteplass belagt m/skifer (77 kvm). Bergvarme. Hems på 24 kvm
Prisantydning8 500 000 kr
- Omkostninger
- 45 740 kr
- Totalpris
- 8 545 740 kr
Nøkkelinfo
- Beliggenhet
- På fjellet
- Boligtype
- Hytte
- Eieform
- Selveier
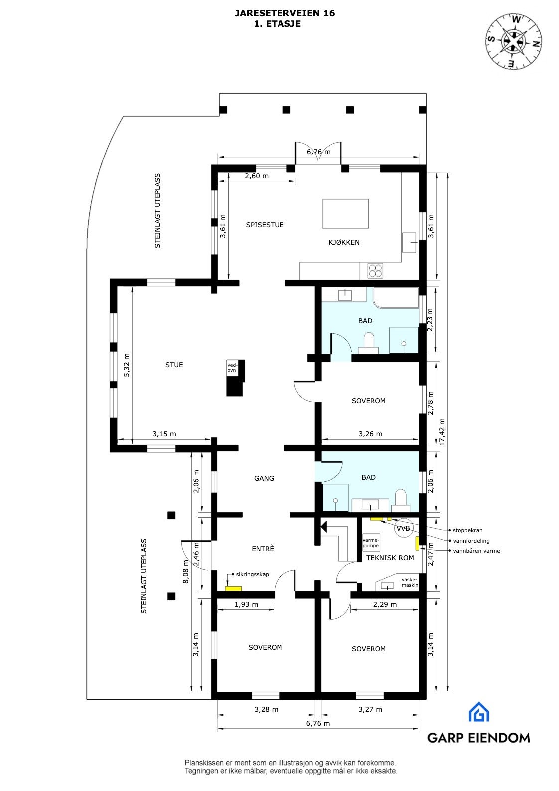
- Internt bruksareal
- 136 m² (BRA-i)
- Bruksareal
- 136 m²
- Balkong/Terrasse
- 77 m² (TBA)
- Tomteareal
- 1 086 m² (eiet)
- Byggeår
- 2024
- Soverom
- 3
- Rom
- 5
- Energimerking
- B - Lysegrønn
Fasiliteter
Alpinanlegg
Balkong/Terrasse
Barnevennlig
Bilvei frem
Garasje/P-plass
Peis/Ildsted
Rolig
Utsikt
Turterreng
Visning
Alle våre visninger har påmelding. På denne måten sikrer vi at megler har god oversikt og tid til å imøtekomme alle interessenter. Meld deg på visning ved å trykke på lenken visningspåmelding.
Husk å lese komplett salgsoppgave før visning. Bestill komplett, utskriftsvennlig salgsoppgave.
VisningspåmeldingOm boligen
Velkommen til Jareseterveien 16! Her får du en nyoppført og eksklusiv laftet hytte med massivt tre og håndskårede overflater. Påkostede og tidsriktige løsninger er gjennomgående - vannbåren gulvvarme i alle rom via bergvarme for ekstra komfort. Solrik tomt og nærhet til flotte langrennsløyper for å nevne noe.
Høydepunkter:
Nyoppført laftet hytte - Ubebodd
Lave omkostninger
136 kvm BRA-i
Hems på 24 kvm GUA
Uteplass på 77 kvm belagt m/skifer
Solrik tomt på et høydedrag - 884M over havet
Håndlaget kjøkken fra Telemark
Laftetømmer av høy kvalitet
3 sov, 2 bad + vaskerom og teknisk rom
Varmepumpe, vannbåren varme via bergvarme
Plassbygde løsninger
Vedovn
Takhøyde opptil hele 3,38M
Milevis m/langrennsløyper rett utenfor hytten
Kun 30 min til Norefjell alpint
Høydepunkter:
Nyoppført laftet hytte - Ubebodd
Lave omkostninger
136 kvm BRA-i
Hems på 24 kvm GUA
Uteplass på 77 kvm belagt m/skifer
Solrik tomt på et høydedrag - 884M over havet
Håndlaget kjøkken fra Telemark
Laftetømmer av høy kvalitet
3 sov, 2 bad + vaskerom og teknisk rom
Varmepumpe, vannbåren varme via bergvarme
Plassbygde løsninger
Vedovn
Takhøyde opptil hele 3,38M
Milevis m/langrennsløyper rett utenfor hytten
Kun 30 min til Norefjell alpint
NB: Knappen for å vise hele beskrivelsen har kun en visuell effekt.
NB: Knappen for å vise hele beskrivelsen har kun en visuell effekt.
Salgsoppgaven beskriver vesentlig og lovpålagt informasjon om eiendommen
Se komplett salgsoppgaveNyttige lenker
Nærområdet
Nordvik Majorstuen
Annonseinformasjon
| FINN-kode | 369194261 |
|---|---|
| Sist endret | 09. feb. 2026 15:34 |
| Referanse | 8-0295/24 |
Annonsene kan være mangelfulle i forhold til lovpålagt opplysningsplikt. Før bindende avtale inngås oppfordres interessenter til å innhente komplett informasjon fra meglerforetaket, selger eller utleier.


















































