Bildegalleri

Velkommen til Brendstaulvegen 45! En seksjonert fritidsleilighet i underetasjen av en firemannsbolig, oppført i 2021. Foto: Fotograf Magik
Inaktiv
Gausta Vertorama!
Nyere, seksjonert 4-roms fritidsleilighet - Ski-in/ski-out - Ekstra stor, solrik uteplass - Panoramautsikt - 2 p-plasser
Prisantydning5 250 000 kr
- Omkostninger
- 152 100 kr
- Totalpris
- 5 402 100 kr
- Kommunale avg.
- 14 007 kr per år
- Felleskost/mnd.
- 1 870 kr
- Fellesformue
- 14 979 kr
Nøkkelinfo
- Beliggenhet
- På fjellet
- Boligtype
- Leilighet
- Eieform
- Eier (Selveier)
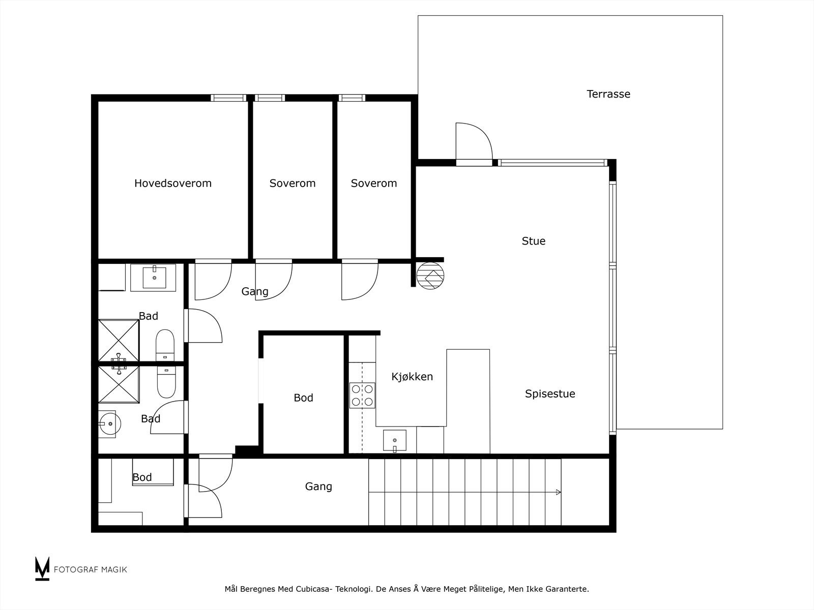
- Internt bruksareal
- 82 m² (BRA-i)
- Bruksareal
- 88 m²
- Eksternt bruksareal
- 6 m² (BRA-e)
- Balkong/Terrasse
- 34 m² (TBA)
- Tomteareal
- 9 522 m² (eiet)
- Byggeår
- 2021
- Soverom
- 3
- Rom
- 4
- Overtakelse
- Overtakelse skjer etter avtale med selger. Før boligen overleveres kjøper, skal fullt oppgjør og omkostninger være mottatt på meglers klientkonto.
Fasiliteter
Alpinanlegg
Balkong/Terrasse
Bilvei frem
Bredbåndstilknytning
Garasje/P-plass
Kabel-TV
Utsikt
Fiskemulighet
Offentlig vann/kloakk
Turterreng
Lademulighet
Visning
Kontakt megler på: 95594100 for å avtale visning!
Husk å lese komplett salgsoppgave før visning. Bestill komplett, utskriftsvennlig salgsoppgave.
VisningspåmeldingOm boligen
Brendstaulvegen 45 er en seksjonert fritidsleilighet i underetasjen av en firemannsbolig, oppført i 2021. Området er snøsikkert og byr på naturopplevelser og aktiviteter gjennom hele året, og med ski-in/ski-out kan man sette rett ut i fartsfylte alpinløyper. Leiligheten er trukket ned i terrenget og fra stuen er det utgang til en ekstra stor og solrik terrasse med panoramautsikt. Videre følger det med to faste p-plasser og flere boder.
Innvendig har leiligheten en lun, harmonisk stil med mørkbeisede veggflater, enstavs parkettgulv og store vinduer som trekker utsikten inn. Her får man en tiltalende stue med god takhøyde, spiseplass, peisovn og åpen kjøkkenløsning. Kjøkkenet er stilrent og har alle hvitevarer integrert.
Mulighet for rask overtagelse!
Innvendig har leiligheten en lun, harmonisk stil med mørkbeisede veggflater, enstavs parkettgulv og store vinduer som trekker utsikten inn. Her får man en tiltalende stue med god takhøyde, spiseplass, peisovn og åpen kjøkkenløsning. Kjøkkenet er stilrent og har alle hvitevarer integrert.
Mulighet for rask overtagelse!
NB: Knappen for å vise hele beskrivelsen har kun en visuell effekt.
NB: Knappen for å vise hele beskrivelsen har kun en visuell effekt.
Salgsoppgaven beskriver vesentlig og lovpålagt informasjon om eiendommen
Se komplett salgsoppgaveNyttige lenker
Nærområdet
Nordvik Tønsberg
Annonseinformasjon
| FINN-kode | 368907049 |
|---|---|
| Sist endret | 01. des. 2025 12:36 |
| Referanse | 25-0210/24 |
Annonsene kan være mangelfulle i forhold til lovpålagt opplysningsplikt. Før bindende avtale inngås oppfordres interessenter til å innhente komplett informasjon fra meglerforetaket, selger eller utleier.





















































