Bildegalleri

Prosjektert hytte med stor tomt i Skardfjellgrenda, ferdigstillelse vår 2025.
- Omkostninger
- 22 500 kr
- Totalpris
- 5 292 500 kr
Nøkkelinfo
- Beliggenhet
- På fjellet
- Boligtype
- Hytte
- Eieform
- Eier (Selveier)
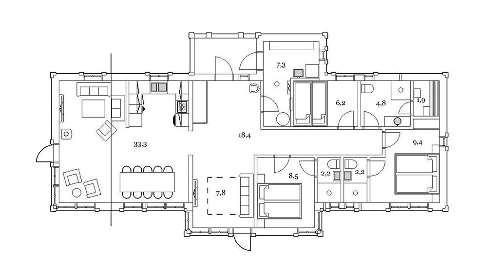
- Primærrom
- 110 m²
- Bruksareal
- 110 m²
- Tomteareal
- 2 200 m² (eiet)
- Grunnflate
- 132 m²
- Bruttoareal
- 132 m²
- Byggeår
- 2019
- Soverom
- 3
- Meter over havet
- 970
Fasiliteter
Visning
Ta kontakt for å avtale visning.Om eiendommen
Beliggenhet
Beliggenhet:
Skåbu ligger 85 km nord for Lillehammer, ved foten av Jotunheimen.
Tomten ligger i Skardfjellgrenda 970 moh., og har storslått utsikt mot Ruten-massivet. Fra Skardfjellet rett bak hytta er det utsikt til fire nasjonalparker: Jotunheimen, Rondane, Reinheimen og Langsua. Skåbu har et vidstrakt nett med preparerte skiløyper, tur- og sykkelstier inn mot Jotunheimen.
I fjellbygda Skåbu lever du det stille, rolige hyttelivet, side om side med bygdefolket.
Visning daglig, kontakt Pål Hallvard Virik, tlf: 92 60 51 01.
De som velger Skåbu, vil se naturen, ikke rett inn til naboen. Her får man god plass, både i skiløypene og på egen tomt.
Generelt
Prosjektert hytte på stor selveiertomt (2200 kvm), med friareal rett nedenfor.
Tomteutvikler er Skåbu Fjellgrend. I Skardfjellgrenda er tomtene store, og det blir det stilt krav til utformingen av hyttene for å bevare et helhetlig preg. Du kan bygge inntil 300 kvm på tomta. Utformingen av hyttene tuftes på lokal byggeskikk og gamle, norske håndverkstradisjoner. Fargene på hyttene er naturens egne, og fjellnaturen vokser fritt mellom hyttene.
Hytta bygges i stavkonstruksjon, som er den eldste norske byggeteknikken i tre, best kjent fra de vakre stavkirkene. Hytta har grove stolper, kraftige takåser og torv på taket. Den rommer stue, spisestue og kjøkken i åpen løsning med store vinduer i utsiktsretningene. Slik føler du at du er i naturen, også innendørs.
Egen TV-stue, så ingen forstyrrer samtalene rundt langbordet eller den som leser foran peisen. Hytta har tre soverom, som alle har plass til dobbeltseng, hvorav to har eget bad. Det er også et tredje separat baderom med dusj og badstue, samt en romslig entré.
Selveiertomt er inkludert, SpareBank1 Eiendomsmegling benyttes ved oppgjøret. Kjøper betaler vanlige omkostninger som dokumentavgift, tinglysningsgebyrer og grunnbokutskrift.
Grunn- og fundamentarbeider, vei, vann og avløp er inkludert.
Adkomst/Tomteforhold
Fra Lillehammer kjører du Fv 255 gjennom Gausdal og Espedalen til Skåbu, deretter Fv 425 fram til du tar av til høyre opp til Skardfjellgrenda. Kjøreturen fra Oslo til Skåbu tar 3 timer og 15 min.
Alternativt kjører du E6 til Vinstra og videre på Fv255 til Skåbu.
I sommerhalvåret kan du også kjøre den vakre Jotunheimvegen fra Valdresflya til Skåbu. I samme tidsrom er det direkteveier fra Skåbu til Randsverk / Glittertind. Om sommeren kan du også kjøre Peer Gynt-veien mellom Gålå og Skåbu.
Skåbu
Fjellbygda Skåbu
Naturen er den åpenbare grunnen til at det fortsatt bor mennesker så høyt til fjells.
Vår tids Skåbu er et aktivt lokalsamfunn der det årlig arrangeres bl.a. skirenn, fjellmaraton, sjekkpunkt for hundeløpet Gausdal Maraton og sommerfestivalen Skåbu Liv Lågå. Fjellbygda har turiststedstatus, søndagsåpen dagligvarebutikk og spisestedet Hos Rødhette & Ulven. Skåbu Fjellhotell byr på god atmosfære, utsøkt interiør og mat i en klasse for seg. Svømmebassenget på skolen er åpent for alle to ganger ukentlig. Skåbu har eget legekontor som holder åpent to dager i uken. Skåbu er et levende lokalsamfunn med et rikt kulturliv. Med hytte i Skåbu, blir du en del av ei ekte fjellbygd.
Innhold
Innvendig standard:
- Eikegulv med varmefolie i kjøkken/spisestue/stue.
- Skiferfliser med varmekabler i entre/gang.
- Fliser med varmekabler i badene og på vaskerom/teknisk rom
- Beiset furu glattpanel på vegger og himlinger
- Kraftige takåser i stuen
- Glassovn
- Hvitmalt 3-speils innerdører
- Malt kjøkkeninnredning fra lokalt snekkerverksted, inkl. hvitevarer.
- Takbelysning i alle rom bortsett fra badstue hvor det er vegglampe.
- Hvit baderomsinnredning, servant, toalett, vifte, komplett dusj med glassvegger.
- Hvite fliser i dusjnisjer.
- Komplett sanitær- og elektrisk anlegg, inkl. kontakter og panelovner
- Hytta leveres med ett strøk jernvitriol utvendig
- Hytta blir oppført iht gjeldende regler og forskrifter (TEK 17)
Standard
Solid tradisjonelt håndverk av norsk tømmer, høy standard. Oppstillingsplass for bil på hyttetomten. Utvendig har hytta stavpanel, kraftige stolper og sviller i malmet, norsk furu. Torvtak med naturtorv fra fjellet og neveravslutning. Natursteinsforblending på pipe. Røros vinduer, isolerglass, ferdigmalt grå, Røros ytterdør med fiskebeinsmønster - ferdigmalt grå, utebelysning og utekran.
Tidlig i byggeprosessen kan kjøper velge egne løsninger både innvendig og utvendig.
Vesentlige opplysninger
Ta kontakt med megler for komplett informasjon
Nærområdet
Skåbu Tradisjonsbygg AS
Annonseinformasjon
| FINN-kode | 368433858 |
|---|---|
| Sist endret | 30. aug. 2024 09:59 |
| Referanse | xhyttemedtomtskardfjellgrendax |
Annonsene kan være mangelfulle i forhold til lovpålagt opplysningsplikt. Før bindende avtale inngås oppfordres interessenter til å innhente komplett informasjon fra meglerforetaket, selger eller utleier.
















