Bildegalleri

Velkommen til Melmyrvegen 217!
NY PRIS! Usjenert eiendom beliggende i naturskjønne omgivelser | Stor tomt på 2,4 mål |Moderniseringsbehov |Stor garasje
- Omkostninger
- 40 940 kr
- Totalpris
- 830 940 kr
- Kommunale avg.
- 2 025 kr per år
- Formuesverdi
- 625 000 kr
Nøkkelinfo
- Beliggenhet
- Innlandet
- Boligtype
- Hytte
- Eieform
- Eier (Selveier)
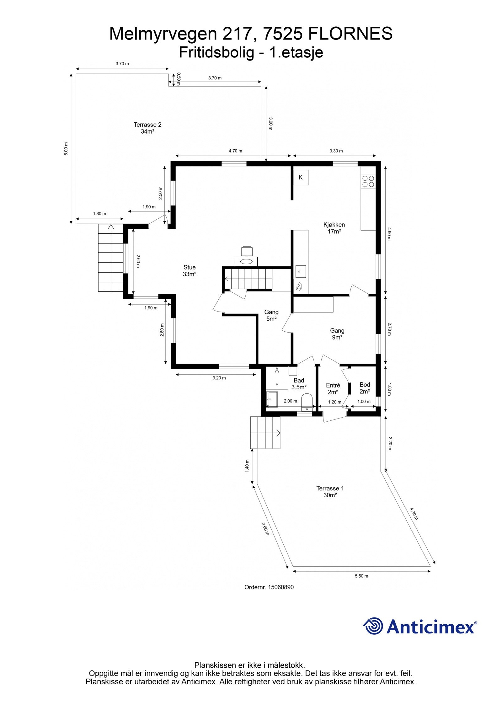
- Internt bruksareal
- 120 m² (BRA-i)
- Bruksareal
- 120 m²
- Balkong/Terrasse
- 64 m² (TBA)
- Tomteareal
- 2 389 m² (eiet)
- Byggeår
- 1900
- Soverom
- 3
- Rom
- 4
- Energimerking
- G - Rød
Fasiliteter
Visning
Ta kontakt for å avtale visning.Husk å lese komplett salgsoppgave før visning. Bestill komplett, utskriftsvennlig salgsoppgave.
VisningspåmeldingOm boligen
Velkommen til Melmyrvegen 217 presentert av EIE Eiendomsmegling v/Steve Johannes Klodiussen!
Dette er en eiendom med usjenerende beliggenhet i grønne og frodige omgivelser i Flora. Den var orginalt registrert som bolig, men har fått godkjent bruksendring fra bolig til fritidsbolig i 1996. Eiendommen ligger ca. 25 min kjøring utenfor Stjørdal, hvor man har tilgang på "alt" man trenger, inkludert dagligvarebutikker, apotek m.m.
Eiendommen ligger mellom Stjørdal og Meråker med mye utfartsterreng rett i nærheten. Fra eiendommen er det ca. 25 min kjøring til Meråker Alpinsenter.
Verdt å merke seg:
- Bolig over to etasjer
- Tre soverom
- Stor garasje
- Tomt på ca. 2,4 mål
- Umiddelbar nærhet til natur
- Bilvei helt frem
- Innlagt strøm og vann
Velkommen til visning!
Salgsoppgaven beskriver vesentlig og lovpålagt informasjon om eiendommen
Se komplett salgsoppgaveNærområdet
EIE eiendomsmegling Trondheim sentrum
Annonseinformasjon
| FINN-kode | 368255199 |
|---|---|
| Sist endret | 22. feb. 2026 03:17 |
| Referanse | 133240190 |
Annonsene kan være mangelfulle i forhold til lovpålagt opplysningsplikt. Før bindende avtale inngås oppfordres interessenter til å innhente komplett informasjon fra meglerforetaket, selger eller utleier.

























