Bildegalleri

Solgt
Vesterøy
Velholdt hytte med sjøutsikt, nyere bad og solrike uteplasser på 57 kvm. Egen brygge. Helårsvann.
Prisantydning3 400 000 kr
- Omkostninger
- 105 550 kr
- Totalpris
- 3 505 550 kr
- Kommunale avg.
- 11 169 kr per år
- Eiendomsskatt
- 5 161 kr per år
Nøkkelinfo
- Beliggenhet
- Ved sjøen
- Boligtype
- Hytte
- Eieform
- Eier (Selveier)
- Internt bruksareal
- 63 m² (BRA-i)
- Bruksareal
- 63 m²
- Balkong/Terrasse
- 57 m² (TBA)
- Tomteareal
- 1 338 m² (festet)
- Festeavgift
- 7 600 kr
- Byggeår
- 1950
- Soverom
- 3
- Rom
- 4
- Energimerking
- G - Rød
- Overtakelse
- Overtakelse skjer etter avtale med selger. Før boligen overleveres kjøper, skal fullt oppgjør og omkostninger være mottatt på meglers klientkonto.
Fasiliteter
Innlagt vann
Balkong/Terrasse
Barnevennlig
Bilvei frem
Båtplass
Garasje/P-plass
Peis/Ildsted
Utsikt
Bademulighet
Fiskemulighet
Innlagt strøm
Turterreng
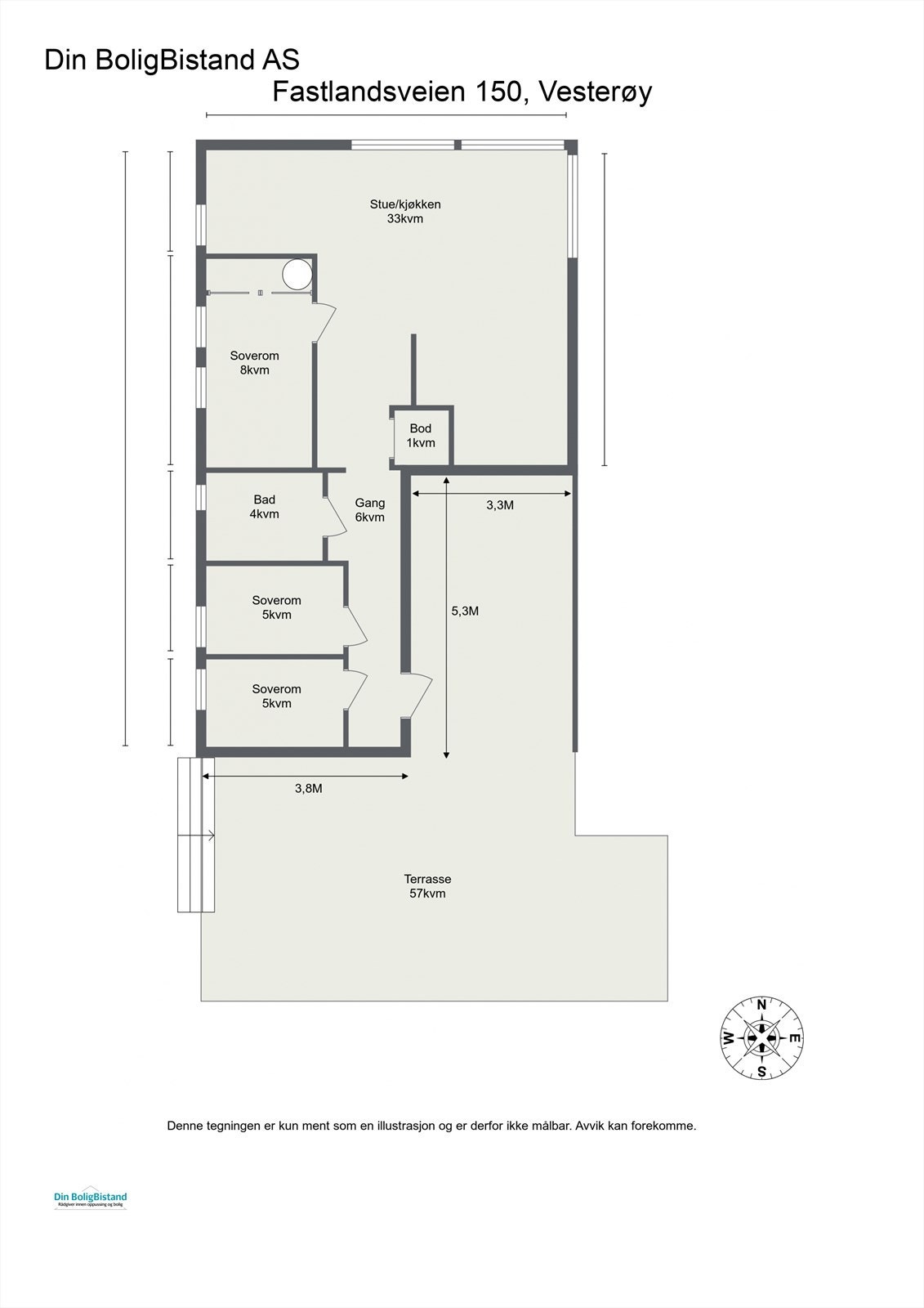
Om boligen
På vakre Vesterøy finner du denne koselige fritidsboligen på 63 kvm med tre soverom og helårs vann og avløp - ideell for bruk hele året. Fra hytta og de romslige uteplassene på totalt 57 kvm terrasse kan du nyte nydelig sjøutsikt og lange solrike dager. Rett over veien ligger din egen private brygge, perfekt for båt, kajakk eller en forfriskende dukkert. Innvendig holder hytta god standard med nyere bad fra 2018 og kun én TG2 i tilstandsrapporten. Utvendig ble den malt i 2024, noe som gir et friskt og velholdt preg. Eiendommen ligger lunt mellom sjø og skog, og ønsker du mer privatliv mot veien, kan du enkelt skjerme tomten ved å plante hekk. En sjelden mulighet til å kombinere natur, sjøliv og komfort midt i hjertet av Hvaler.
NB: Knappen for å vise hele beskrivelsen har kun en visuell effekt.
NB: Knappen for å vise hele beskrivelsen har kun en visuell effekt.
Salgsoppgaven beskriver vesentlig og lovpålagt informasjon om eiendommen
Se komplett salgsoppgaveNyttige lenker
Nærområdet
Nordvik Fredrikstad og Hvaler
Vi vet hva det er verdt
Prisstatistikk
Fastlandsveien 150
99 860 klikk
på annonsen
53 968 kr
prisantydning per kvadratmeter
Prisfordeling
Pris per m² ligger 35 032 kr under snittet for hytter i Hvaler.
Grafen viser antall hytter solgt i Hvaler siste året fordelt på pris per m² - totalt 51 hytter
Antall boliger
Kvadratmeterpris tilsvarer prisantydning pluss fellesgjeld per kvadratmeter (p-rom eller BRA-i). Prisene i grafen er avrundet til nærmeste 1000 kr.
Annonseinformasjon
| FINN-kode | 359013526 |
|---|---|
| Sist endret | 12. des. 2025 09:00 |
| Referanse | 30-0030/23 |
Annonsene kan være mangelfulle i forhold til lovpålagt opplysningsplikt. Før bindende avtale inngås oppfordres interessenter til å innhente komplett informasjon fra meglerforetaket, selger eller utleier.

















































