Bildegalleri

Velkommen til denne lekre hjørneleilighet beliggende i Fjellandsbyen i Hemsedal Skisenter!

Lekker hjørneleilighet med utsikt mot skibakken|2 bad| Gasspeis og badstue| Ferdig møblert og Innflyttingsklar!

Prisantydning8 390 000 kr
Omkostninger
211 070 kr
Totalpris
8 601 070 kr
Kommunale avg.
20 662 kr per år
Felleskost/mnd.
3 450 kr
Eiendomsskatt
12 880 kr per år

Nøkkelinfo

Beliggenhet
På fjellet
Boligtype
Leilighet
Eieform
Eier (Selveier)
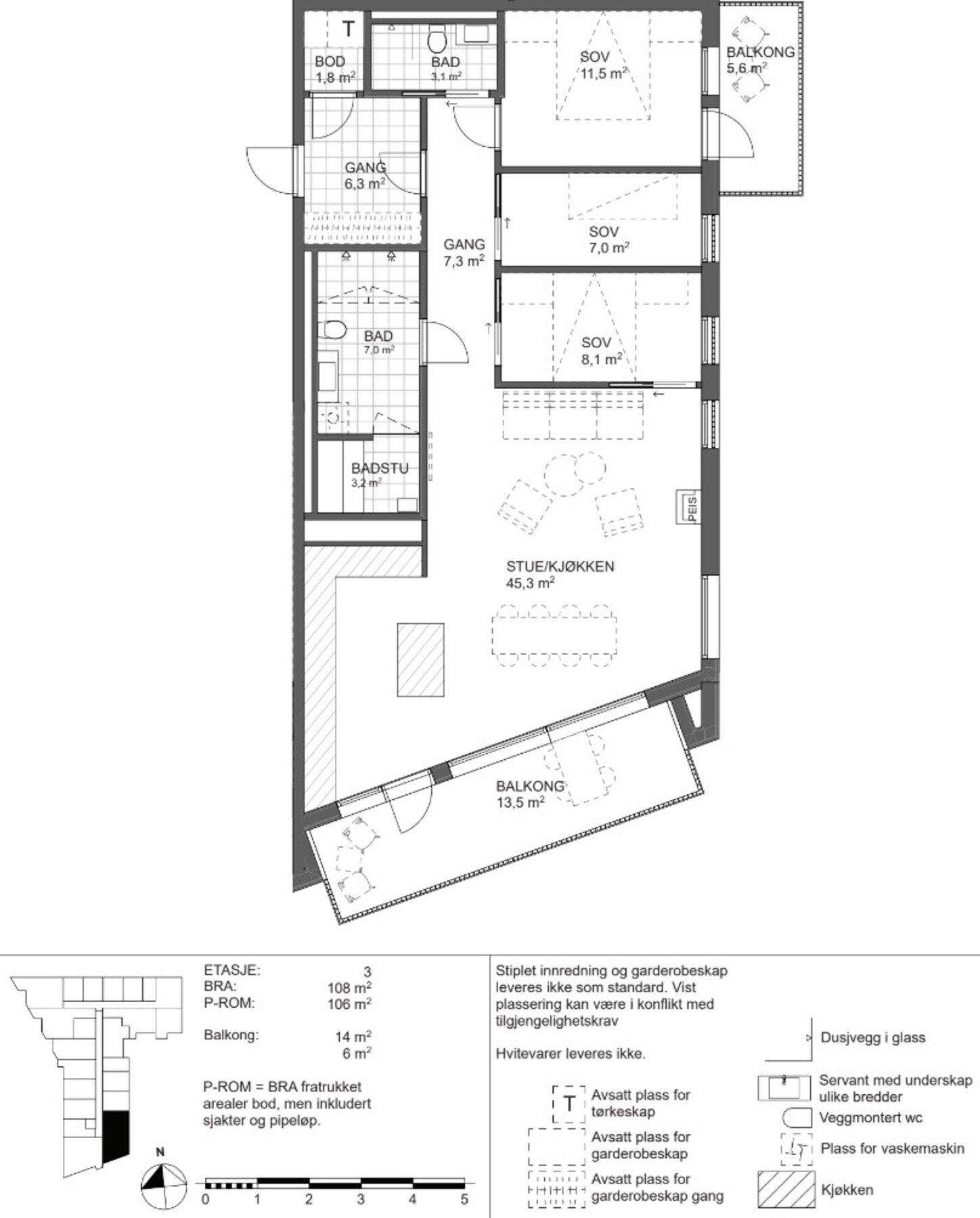
Bruksareal
106 m²
Tomteareal
8 732 m² (eiet)
Byggeår
2024
Soverom
3
Rom
4
Energimerking
B - Gul
Overtakelse
Etter nærmere avtale med selger. Vær vennlig å angi ønsket overtagelsesdato i vedlagte budskjema.

Les mer om bruksareal her

Visning

Dersom ikke oppsatt visningstidspunkt skulle passe. Tá kontakt med megler for å avtale privatvisning på din fritid. Velkommen til fjells!

Husk å lese komplett salgsoppgave før visning. Bestill komplett, utskriftsvennlig salgsoppgave.

Visningspåmelding

Om boligen

Delikat hjørneleilighet med svært attraktiv beliggenhet, skifront til Hemsedal Skisenter. Her kan du velge om du vil få med deg alt det spennende som skjer i og rundt skianlegget, eller trekke deg tilbake til en rolig kveld ved peisen i egen leilighet.

Leiligheten har åpen stue- og kjøkkenløsning med flott utsikt mot skianlegget. 3 soverom og 2 bad, hvorav ett med badstue. Innvendig bod i tilknytning til gang. I tillegg får du inkludert sportsbod i kjeller, samt 2 romslige skiskap med tørkefunksjon for lagring av ski, støvler og hjelm i skistallen. Fra balkongene har du full utsikt mot skisenterets flotte alpinbakker og fjell.

Som beboer her får du også eksklusiv tilgang til velutstyrt treningsrom, lekerom for barn og aktivitetsrom med spill for ungdom.

Ta kontakt for visning!

Salgsoppgaven beskriver vesentlig og lovpålagt informasjon om eiendommen

Se komplett salgsoppgave

Nærområdet

Annonseinformasjon

FINN-kode357224800
Sist endret26. nov. 2025 14:50
Referanse1532240110

Rapporter annonse

Annonsene kan være mangelfulle i forhold til lovpålagt opplysningsplikt. Før bindende avtale inngås oppfordres interessenter til å innhente komplett informasjon fra meglerforetaket, selger eller utleier.