Bildegalleri

Velkommen til Vestmarkavegen 1564! En koselig fritidsbolig beliggende i et naturskjønt hyttefelt. Foto: Svein Michaelsen
Vestmarka
Lettstelt hytte med idyllisk beliggenhet ved Skjervangen. Solrik tomt, nydelig utsikt mot innsjøen og bilvei helt frem.
Prisantydning1 500 000 kr
- Omkostninger
- 56 640 kr
- Totalpris
- 1 556 640 kr
- Kommunale avg.
- 1 894 kr per år
Nøkkelinfo
- Beliggenhet
- Innlandet
- Boligtype
- Hytte
- Eieform
- Eier (Selveier)
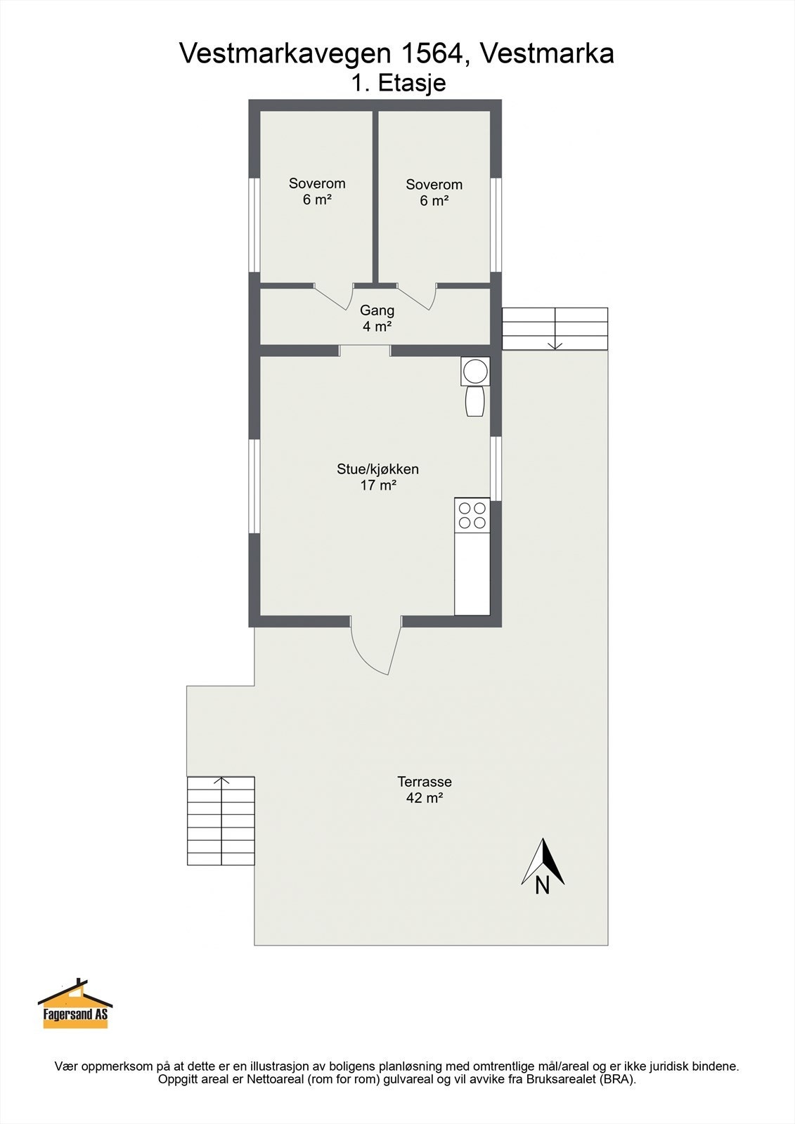
- Internt bruksareal
- 34 m² (BRA-i)
- Bruksareal
- 41 m²
- Eksternt bruksareal
- 7 m² (BRA-e)
- Balkong/Terrasse
- 42 m² (TBA)
- Tomteareal
- 1 612 m² (eiet)
- Byggeår
- 2000
- Soverom
- 2
- Rom
- 3
- Energimerking
- G - Rød
- Overtakelse
- Overtagelse etter avtale med selger. Vennligst oppgi ønsket dato i vedlagte budskjema.
Visning
Ta kontakt for å avtale visning.Husk å lese komplett salgsoppgave før visning. Bestill komplett, utskriftsvennlig salgsoppgave.
VisningspåmeldingOm boligen
Vestmarkavegen 1564 er en lettstelt hytte med alt på ett plan. Hytta ligger i et naturskjønt og idyllisk skogsområde kun to minutters gange fra innsjøen Skjervangen, med en liten sandstrand og gresslette. Innsjøen er ypperlig til fisking og padling, og langs vannet er det fine turmuligheter.
Det er bilvei helt frem og parkering på egen tomt. Tomten er en solfylt perle på 1612 kvm, noe opparbeidet med gressplen, men også vakker naturtomt med stedlig vegetasjon og et uthus med utedo og bod. Langs to sider av hytta er det bygget en terrasse på 42 kvm, med utekjøkken og nydelig utsikt utover innsjøen.
Innvendig består hytta av to soverom, en gang med plass til skap og stue/kjøkken i åpen løsning. Det koselige rommet har høy himling, gjennomgående dagslys, et enkelt kjøkken og peisovn.
Det er bilvei helt frem og parkering på egen tomt. Tomten er en solfylt perle på 1612 kvm, noe opparbeidet med gressplen, men også vakker naturtomt med stedlig vegetasjon og et uthus med utedo og bod. Langs to sider av hytta er det bygget en terrasse på 42 kvm, med utekjøkken og nydelig utsikt utover innsjøen.
Innvendig består hytta av to soverom, en gang med plass til skap og stue/kjøkken i åpen løsning. Det koselige rommet har høy himling, gjennomgående dagslys, et enkelt kjøkken og peisovn.
NB: Knappen for å vise hele beskrivelsen har kun en visuell effekt.
NB: Knappen for å vise hele beskrivelsen har kun en visuell effekt.
Salgsoppgaven beskriver vesentlig og lovpålagt informasjon om eiendommen
Se komplett salgsoppgaveNærområdet
Aktiv Bjørkelangen
Annonseinformasjon
| FINN-kode | 357081583 |
|---|---|
| Sist endret | 13. nov. 2025 12:43 |
| Referanse | 1107240136 |
Annonsene kan være mangelfulle i forhold til lovpålagt opplysningsplikt. Før bindende avtale inngås oppfordres interessenter til å innhente komplett informasjon fra meglerforetaket, selger eller utleier.



























