Bildegalleri

Velkommen til et idyllisk sjø- og hytteliv i Lygrepollen.
Inaktiv
Lygrepollen Hyttefelt
Nybygg fritidsbolig - Seks flotte byggeklare tomter med en idyllisk beliggenhet i Fusa. Mulighet for båtplass og bod.
Prisantydningnull kr
- Omkostninger
- 39 400 kr
Nøkkelinfo
- Beliggenhet
- Ved sjøen
- Boligtype
- Enebolig
- Eieform
- Eier (Selveier)
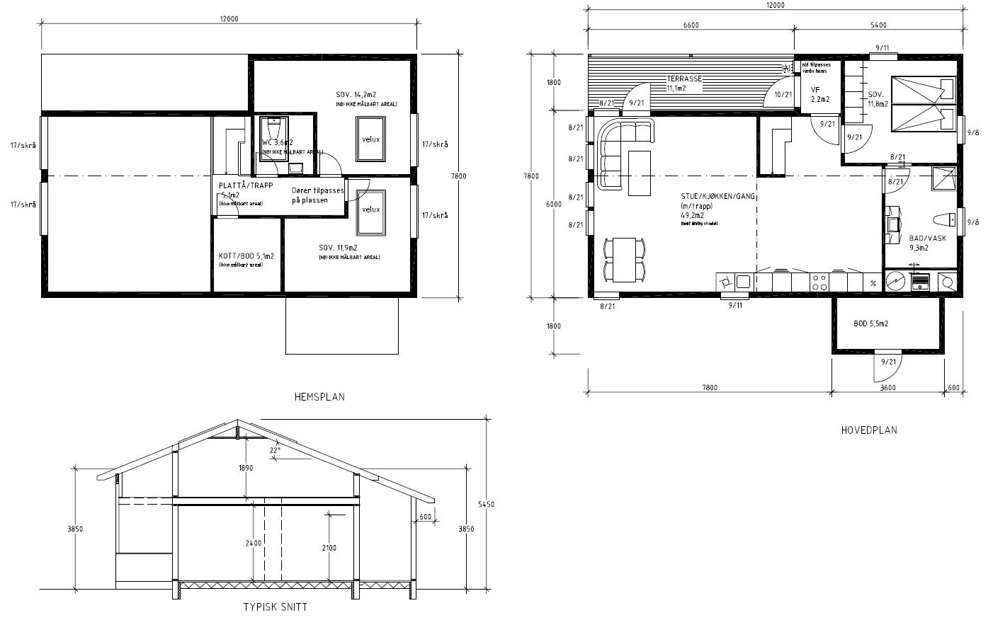
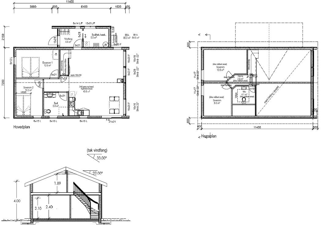
- Bruksareal
- 65 m²
- Tomteareal
- 533 m² (eiet)
- Byggeår
- 2016
- Soverom
- 0
- Rom
- 4
- Overtakelse
- Det fastsettes en oppgjørsdato for tomten normalt 30 dager etter handelen er kommet i stand. Selger vil møte kjøper for overtagelse av tomten.
Fasiliteter
Balkong/Terrasse
Barnevennlig
Bilvei frem
Bredbåndstilknytning
Båtplass
Garasje/P-plass
Hage
Rolig
Utsikt
Fiskemulighet
Turterreng
Visning
Ta kontakt for å avtale visning.Husk å lese komplett salgsoppgave før visning. Bestill komplett, utskriftsvennlig salgsoppgave.
VisningspåmeldingOm boligen
Velkommen til naturskjønne Lygrepollen hyttefelt på Abotnes. Hyttefeltet består av nybygg hvor det er tilrettelagt for 23 tomter totalt i feltet. Det er satt av plass for bl.a felles grillplass og badestrand. Her har en en rolig beliggenhet med kort vei til både sjø og skog. Felles kai med flytebrygge med mulighet for egen båtplass ligger like ved. Lygrepollen er et naturskjønt og herlig område kun ca 4 km til innerste arm i Hardangerfjorden.
Hyttefeltet består av totalt 24 tomter. Det er felles biloppstillingsplass ved innkjøring til området. Det er 6 ledige tomter i idylliske Lygrepollen!
Priseksempel fra kr. 4.300.000,- inkluderer hytte Åsen på på Abotnes 101. Tillegg for byggesøknad, gebyr til kommunen og evt. endringer kommer i tillegg.
Hyttefeltet består av totalt 24 tomter. Det er felles biloppstillingsplass ved innkjøring til området. Det er 6 ledige tomter i idylliske Lygrepollen!
Priseksempel fra kr. 4.300.000,- inkluderer hytte Åsen på på Abotnes 101. Tillegg for byggesøknad, gebyr til kommunen og evt. endringer kommer i tillegg.
NB: Knappen for å vise hele beskrivelsen har kun en visuell effekt.
NB: Knappen for å vise hele beskrivelsen har kun en visuell effekt.
Salgsoppgaven beskriver vesentlig og lovpålagt informasjon om eiendommen
Se komplett salgsoppgaveNyttige lenker
Nærområdet
Eiendomsmegler Norge Fana
Best der du bor
Annonseinformasjon
| FINN-kode | 356041562 |
|---|---|
| Sist endret | 05. nov. 2025 09:40 |
| Referanse | 14240064 |
Annonsene kan være mangelfulle i forhold til lovpålagt opplysningsplikt. Før bindende avtale inngås oppfordres interessenter til å innhente komplett informasjon fra meglerforetaket, selger eller utleier.









































