Bildegalleri

Velkommen til nybygde funkishytter på Valåsen i Risør!
Valåsen/ Risør - Smarte nyoppførte funkisshytter i naturskjønne omgivelser v/ sjøen - *Båtplass - 2 SOLGT
Prisantydning3 850 000 kr
- Omkostninger
- 45 792 kr
- Totalpris
- 3 895 792 kr
Nøkkelinfo
- Beliggenhet
- Ved sjøen
- Boligtype
- Hytte
- Eieform
- Eier (Selveier)
- Primærrom
- 85 m²
- Bruksareal
- 90 m²
- Tomteareal
- 350 m² (eiet)
- Byggeår
- 2023
- Soverom
- 3
- Rom
- 4
- Overtakelse
- Etter nærmere avtale med selger.
Fasiliteter
Innlagt vann
Balkong/Terrasse
Barnevennlig
Bilvei frem
Bredbåndstilknytning
Båtplass
Garasje/P-plass
Golfbane
Hage
Rolig
Bademulighet
Fiskemulighet
Innlagt strøm
Offentlig vann/kloakk
Turterreng
Visning
Ta kontakt for å avtale visning.Husk å lese komplett salgsoppgave før visning. Bestill komplett, utskriftsvennlig salgsoppgave.
VisningspåmeldingOm boligen
Drømmer du om et fristed du kan tilbringe helger og ferier? Er du på utkikk etter en splitter ny arkitekttegnet hytte med god standard, arealmessig effektive løsninger samt helårs standard. Da må du ta turen til Valåsen!
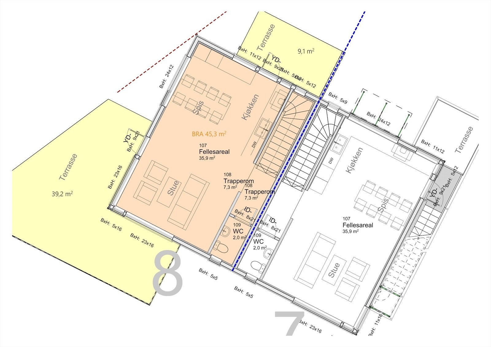
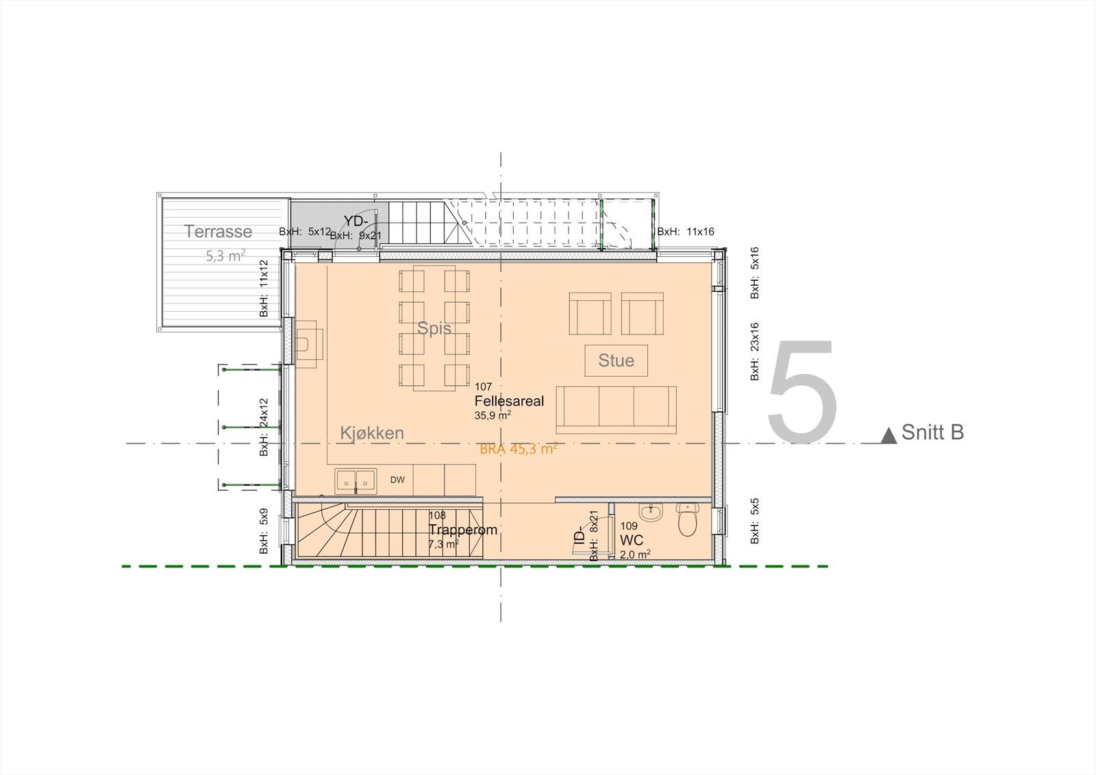
Hyttene består av to etasjer, hvorav 1. etasje inneholder; Entrè/gang, bod, bad og 3 soverom. 2. etasje vil inneholde toalettrom, åpen stue og kjøkken. Hytte 5, 6 og 7 har takterrasse. Hytte 8 har en stor veranda med utgang fra stue.
Priser:
Hytte 5: Kr 3 850 000,-
Hytte 6: Kr 3 950 000,-
Hytte 7: SOLGT
Hytte 8: SOLGT
Hyttene består av to etasjer, hvorav 1. etasje inneholder; Entrè/gang, bod, bad og 3 soverom. 2. etasje vil inneholde toalettrom, åpen stue og kjøkken. Hytte 5, 6 og 7 har takterrasse. Hytte 8 har en stor veranda med utgang fra stue.
Priser:
Hytte 5: Kr 3 850 000,-
Hytte 6: Kr 3 950 000,-
Hytte 7: SOLGT
Hytte 8: SOLGT
NB: Knappen for å vise hele beskrivelsen har kun en visuell effekt.
NB: Knappen for å vise hele beskrivelsen har kun en visuell effekt.
Salgsoppgaven beskriver vesentlig og lovpålagt informasjon om eiendommen
Se komplett salgsoppgaveNærområdet
Aktiv Frogner
Annonseinformasjon
| FINN-kode | 355755139 |
|---|---|
| Sist endret | 19. juni 2025 09:27 |
| Referanse | 1007230100 |
Annonsene kan være mangelfulle i forhold til lovpålagt opplysningsplikt. Før bindende avtale inngås oppfordres interessenter til å innhente komplett informasjon fra meglerforetaket, selger eller utleier.












































