Bildegalleri

Velkommen til Beitobrinken 3a - en meget attraktiv og praktisk innredet leilighet i 1. etg. med stor terrasse - sol fra morgen til kveld! Foto: Tor Solberg.
Svært attraktiv og sentrumsnær fritidsleil. - 4 sov - 2 Bad - Badstue - Peis - Stor, meget solrik terrasse - *1 carport
Prisantydning5 280 000 kr
- Omkostninger
- 143 762 kr
- Totalpris
- 5 428 646 kr
- Kommunale avg.
- 11 814 kr per år
- Fellesgjeld
- 4 884 kr
- Felleskost/mnd.
- 2 363 kr
- Fellesformue
- 22 147 kr
- Eiendomsskatt
- 4 582 kr per år
- Formuesverdi
- 1 384 031 kr
Nøkkelinfo
- Beliggenhet
- På fjellet
- Boligtype
- Leilighet
- Eieform
- Eier (Selveier)
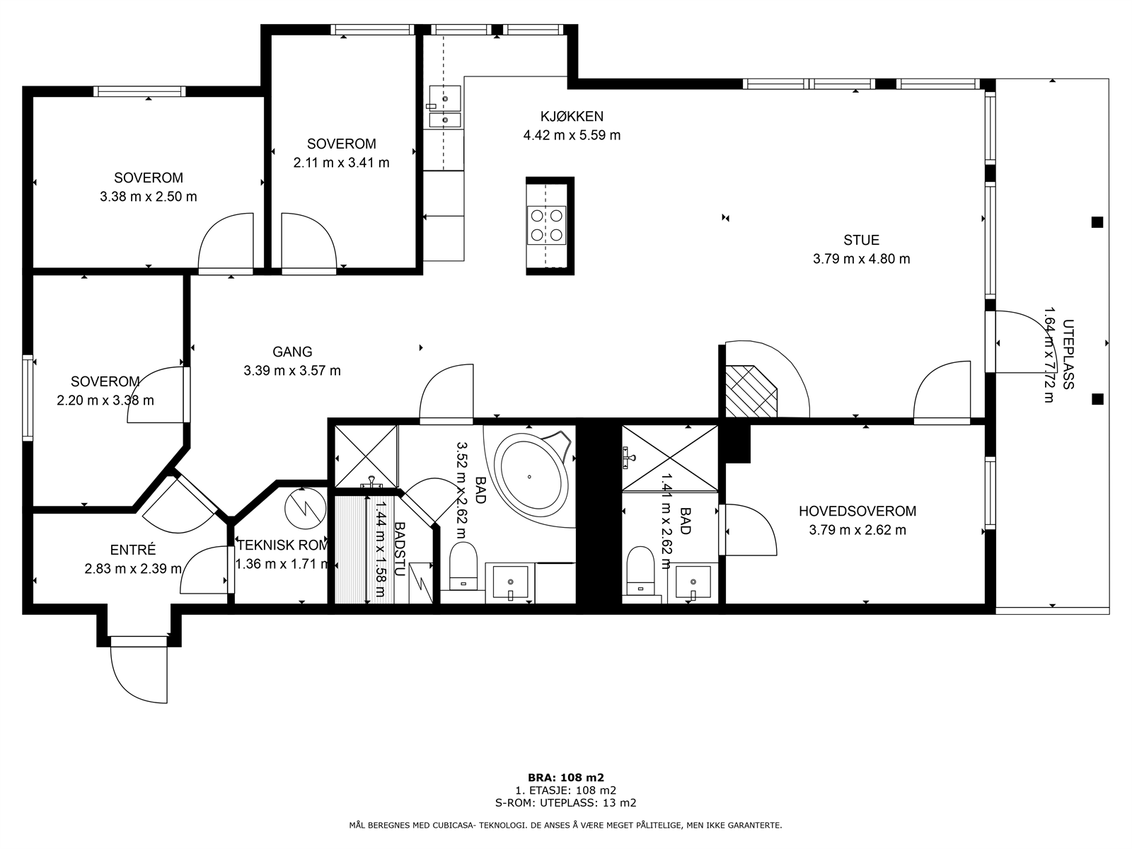
- Internt bruksareal
- 108 m² (BRA-i)
- Bruksareal
- 108 m²
- Tomteareal
- 4 141 m² (eiet)
- Byggeår
- 2003
- Soverom
- 4
- Rom
- 5
- Energimerking
- F - Oransje
- Overtakelse
- Leiligheten kan overtas på kort varsel. Overtakelse skjer etter avtale med selger. Før boligen overleveres kjøper, skal fullt oppgjør og omkostninger være mottatt på meglers klientkonto.
Fasiliteter
Alpinanlegg
Balkong/Terrasse
Barnevennlig
Bilvei frem
Bredbåndstilknytning
Garasje/P-plass
Kabel-TV
Peis/Ildsted
Rolig
Utsikt
Innlagt strøm
Offentlig vann/kloakk
Turterreng
Visning
Kontakt selger direkte på mobil - 922 22 285 -for avtale om privatvisning!
Husk å lese komplett salgsoppgave før visning. Bestill komplett, utskriftsvennlig salgsoppgave.
VisningspåmeldingOm boligen
Beitobrinken 3A er en attraktiv, innholdsrik og praktisk innredet leil. m/svært gode solforhold, ca. 300 m fra sentrum. Oppusset i 2017/18.
Gangavstand til alpinbakken, butikker, spisesteder/restauranter, puber m.m. Skiløype tilknyttet det store løypenettet på Beitostølen er i umiddelbar nærhet.
Leiligheten har enkel adkomst på østenden av bygget. Med hele 4 soverom, 2 bad og en romslig stue/spisestue i delvis åpen løsning med kjøkkenet er det ingen problem å huse både familie og venner. Solforholdene er optimale! Sammenbygde terrasser mot sør og øst, gjør at du har sol omtrent hele dagen.
Kort oppsummert:
-4 soverom
-2 bad (oppusset i 2017/18)
-Badstue
-Solrik terrasse
-1 carport (*mulig å kjøpe en ekstra).
-Elbillading i sameiet
-Sentrumsnært
For visning ring selger 92 22 22 85
Gangavstand til alpinbakken, butikker, spisesteder/restauranter, puber m.m. Skiløype tilknyttet det store løypenettet på Beitostølen er i umiddelbar nærhet.
Leiligheten har enkel adkomst på østenden av bygget. Med hele 4 soverom, 2 bad og en romslig stue/spisestue i delvis åpen løsning med kjøkkenet er det ingen problem å huse både familie og venner. Solforholdene er optimale! Sammenbygde terrasser mot sør og øst, gjør at du har sol omtrent hele dagen.
Kort oppsummert:
-4 soverom
-2 bad (oppusset i 2017/18)
-Badstue
-Solrik terrasse
-1 carport (*mulig å kjøpe en ekstra).
-Elbillading i sameiet
-Sentrumsnært
For visning ring selger 92 22 22 85
NB: Knappen for å vise hele beskrivelsen har kun en visuell effekt.
NB: Knappen for å vise hele beskrivelsen har kun en visuell effekt.
Salgsoppgaven beskriver vesentlig og lovpålagt informasjon om eiendommen
Se komplett salgsoppgaveNyttige lenker
Nærområdet
Nordvik Bærum
Annonseinformasjon
| FINN-kode | 345832292 |
|---|---|
| Sist endret | 01. des. 2025 09:25 |
| Referanse | 56-0076/24 |
Annonsene kan være mangelfulle i forhold til lovpålagt opplysningsplikt. Før bindende avtale inngås oppfordres interessenter til å innhente komplett informasjon fra meglerforetaket, selger eller utleier.




































