Bildegalleri

Bildet fra identisk hytte i feltet.
Ny Solheim 100 på utsiktstomt på Klevan, Savalen
- Omkostninger
- 18 740 kr
- Totalpris
- 4 468 740 kr
Nøkkelinfo
- Beliggenhet
- På fjellet
- Boligtype
- Hytte
- Bruksareal
- 116 m²
- Grunnflate
- 89 m²
- Byggeår
- 2024
- Soverom
- 4
- Meter over havet
- 850
Visning
Ta kontakt for å avtale visning.Om eiendommen
Beliggenhet
Enten du bor i Trøndelag, Oslo, på Mørekysten eller ved Mjøsa – det er enkelt å komme seg til Savalen og Klevan hyttefelt.
Tilgjengeligheten til hyttefeltet er god, uavhengig om du kommer med egen bil, buss, tog eller fly.
- 19 mil fra Trondheim
- 30 mil fra Oslo
- 20 mil fra Hamar
- 27 mil til Molde
- 6 mil til Røros
Tynset er Savalens nærmeste by og regionens handelssentrum. Her finner du alt du trenger av butikker, serveringssteder og andre servicetilbud.
Fra Tynset til Savalen er det 20 km.
Det er alpinanlegg 3 min fra hytta. Milevis med daglig oppkjørte skiløyper og stabile snøforhold fra november til april. Fantastiske fjell i umiddelbar nærhet, som kan besøkes til fots eller med sykkel. I tillegg er det nå etablert en egen sykkelløype på 1.3 km som er tilpasset sykling for hele familien. Løypa ligger i umiddelbar nærhet til feltet og er perfekt lagt inn i terrenget. Gode fiskemuligheter i sjøen Savalen som ligger nedfor feltet.
Savalen fjellhotel ligger i umiddelbar nærhet, med egen spa avdeling. Ellers er det mye spennende på Savalen, med nissetorg, påskegilde og muligheter for å kjøre/ri på hest.
Generelt
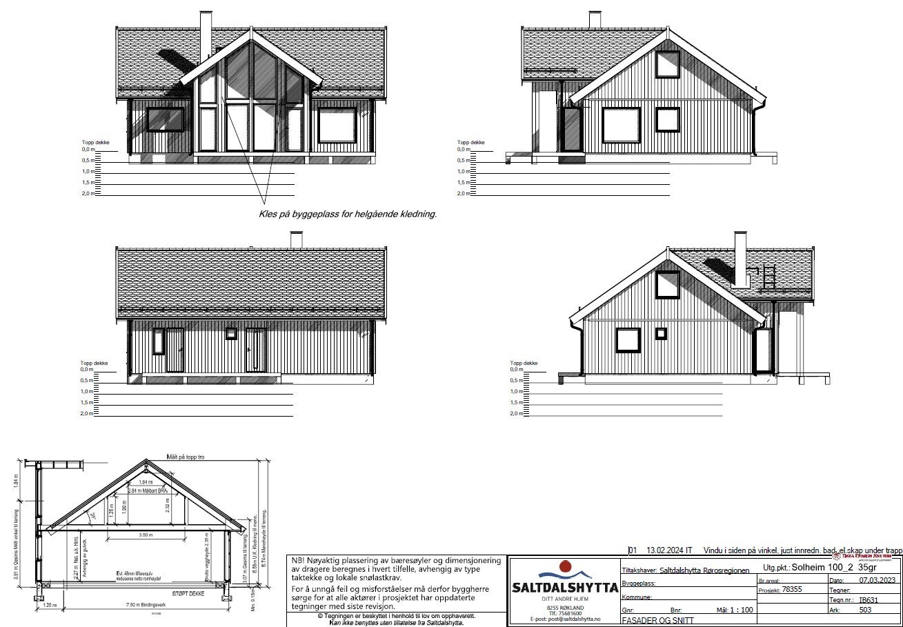
Solheim er vår mest populære modell. Her har vi prosjektert en Solheim 100, med ekstra glass i fasaden på frambygget i stuen. Med moderne eksteriør, god takhøyde og store vindusflater gir stuen deg den gode hyttefølelsen og naturen tett på. To gode soverom og et flott kjøkken er plassert i hver sin fløy. Planløsningen inneholder et bad og egen WC. Adkomsten er lagt til hyttas bakside, og her er det også en romslig utebod. På loftet er det to disponible/soverom, og en loftsstue med et galleri mot stua og utsikten.
Adkomst/Tomteforhold
Innhold
INNVENDIGE OVERFLATER
Alle innvendige overflater leveres med vegger og himlinger av beiset Sprekkpanel(13x120) i valgt farge. Stående på vegg og i møneretning i tak. Gerikter, tak- og gulvlister leveres i samme farge som vegg.
YTTERVEGGER OG TAK
Yttervegger med stående Låvepanel med et strøk grunning i lys brun. Isolert med 200mm Glava(150mm+50mm). Vinduer, ytterdører og verandadører leveres ferdig overflatebehandlet etter Tek 17. Tak isolert (200mm + 50mm) og tekkes med shingel farge sort. Takrenner, nedløp og pipebeslag leveres i sort lakkert stål.
INNERVEGGER
Leveres med 73mm isolert bindingsverk, paneles på begge sider. Teknisk vegg utføres med 198mm bindingsverk. Bærevegger utføres med 98mm bindingsverk.
ILDSTED OG PIPE:
Standard er Jøtul F134
ELANLEGG
El-anlegg med omfang i henhold til forskrift NEK 400. Påkostet med varmekabel i stue/kjøkken. Downlights og sort utførelse.
RØRLEGGERARBEIDER
Sanitæranlegg med omfang som på plantegninger.
KJØKKEN- OG BADEINNREDNINGER
Kjøkken ligger inne med et verdikort på kr 100 000,- Kunde velger.
FØLGENDE ER IKKE INKLUDERT I KJØPESUMMEN
• Ilustrasjoner i dette prospektet kan inneholde tilvalg som ikke er med i standard leveranse.
• Byggetegninger er kun til illustrasjon og kan inneholde møbler, benker, garderobeskap, senger osv. og plassering av disse. Dette er ikke inkludert i leveransen.
• Kostnader forbundet med kjøpers finansiering, takster og tinglysningsgebyrer
Påkoblingsavgift strøm: 9 500 kr
Vei/vann/avløp
Privat vei. Årlig avgift for brøyting ca 2000 kr
Offentlig vann og avløp:
Påkoblingsavgift: Vann og avløp 50 000 kr
Videre er det en årlig avgift etter forbruk.
Kommunale avgifter faktureres direkte fra kommunen, og settes når eiendommen tas i bruk.
Tynset kommune har eiendomsskatt.
Standard
Ta kontakt med megler for komplett informasjon
Nærområdet
Saltdalshytta Rørosregionen AS
Annonsene kan være mangelfulle i forhold til lovpålagt opplysningsplikt. Før bindende avtale inngås oppfordres interessenter til å innhente komplett informasjon fra meglerforetaket, selger eller utleier.

















