Bildegalleri

Velkommen til Eltdalen og denne flotte hytta med romslig garasje i Trysilknuts Fjellsenter 45!
TRYSIL-KNUTS FJELLVERDEN
Pen og godt vedlikeholdt hytte beliggende i et friluftseldorado! Fint turterreng, skiløyper, jakt- og fiskemuligheter!
Prisantydning2 600 000 kr
- Omkostninger
- 66 240 kr
- Totalpris
- 2 666 240 kr
- Kommunale avg.
- 5 248 kr per år
Nøkkelinfo
- Beliggenhet
- På fjellet
- Boligtype
- Hytte
- Eieform
- Eier (Selveier)
- Internt bruksareal
- 83 m² (BRA-i)
- Bruksareal
- 129 m²
- Eksternt bruksareal
- 46 m² (BRA-e)
- Balkong/Terrasse
- 58 m² (TBA)
- Tomteareal
- 1 058 m² (eiet)
- Byggeår
- 2014
- Soverom
- 2
- Rom
- 3
- Energimerking
- C - Gul
- Overtakelse
- Overtakelse etter nærmere avtale med selger. Dersom annet ikke avtales, sendes skjøte/hjemmelsdokument for tinglysing i etterkant av overtakelse.
Fasiliteter
Balkong/Terrasse
Barnevennlig
Bilvei frem
Garasje/P-plass
Peis/Ildsted
Rolig
Fiskemulighet
Innlagt strøm
Turterreng
Visning
Ved annonsert visning er det viktig at du melder deg på visningen ved å bruke visningspåmeldingsknappen eller kontakter megler. Annonserte visninger hvor det ikke er noen påmeldte innen kl. 16.00 dagen før visningsdagen vil ikke bli avholdt.
For visninger utover dette, ta direkte kontakt med megler. Ta kontakt for å avtale visning utover oppsatt fellesvisning.
Husk å lese komplett salgsoppgave før visning. Bestill komplett, utskriftsvennlig salgsoppgave.
VisningspåmeldingOm boligen
Velkommen til denne trivelige og innholdsrike fritidseiendommen i Trysilknuts Fjellsenter 45!
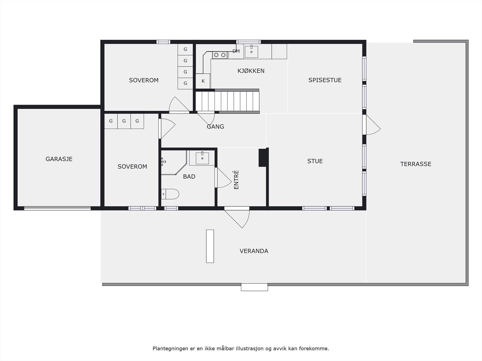
En solid, romslig og godt vedlikeholdt fritidsbolig over 2 plan med tilbygd bod/mindre garasje, i tillegg til en frittstående og stor garasje. Eiendommen ligger fint til i flatt terreng og har gode solforhold. Hytta består av entré, kjøkken, stue, gang, 2 soverom og bad i 1. etasje. På loftsplanet er det innredet med mellomgang-/loftstue og to soverom (ikke godkjent for varig opphold) - totalt 8 sengeplasser. Romslig, dels overbygd terrasse med utgang fra stue, og overbygd veranda på loftsplan.
Eiendommen ligger lunt til i flotte omgivelser, i et område som er godt kjent for snøsikre vintre med milevis med skiløyper, og flotte turområder i sommerhalvåret samt jakt-/fiskemuligheter.
En solid, romslig og godt vedlikeholdt fritidsbolig over 2 plan med tilbygd bod/mindre garasje, i tillegg til en frittstående og stor garasje. Eiendommen ligger fint til i flatt terreng og har gode solforhold. Hytta består av entré, kjøkken, stue, gang, 2 soverom og bad i 1. etasje. På loftsplanet er det innredet med mellomgang-/loftstue og to soverom (ikke godkjent for varig opphold) - totalt 8 sengeplasser. Romslig, dels overbygd terrasse med utgang fra stue, og overbygd veranda på loftsplan.
Eiendommen ligger lunt til i flotte omgivelser, i et område som er godt kjent for snøsikre vintre med milevis med skiløyper, og flotte turområder i sommerhalvåret samt jakt-/fiskemuligheter.
NB: Knappen for å vise hele beskrivelsen har kun en visuell effekt.
NB: Knappen for å vise hele beskrivelsen har kun en visuell effekt.
Salgsoppgaven beskriver vesentlig og lovpålagt informasjon om eiendommen
Se komplett salgsoppgaveNærområdet
Aktiv Innlandet
Annonseinformasjon
| FINN-kode | 344043924 |
|---|---|
| Sist endret | 28. okt. 2025 11:42 |
| Referanse | 1211240103 |
Annonsene kan være mangelfulle i forhold til lovpålagt opplysningsplikt. Før bindende avtale inngås oppfordres interessenter til å innhente komplett informasjon fra meglerforetaket, selger eller utleier.





































