Bildegalleri

Velkommen til Toresvei 17
Birkenåsen/Rena - Fritidsbolig over et plan med nydelig utsikt og flott beliggenhet med ski inn/ut. Tre sov. Garasje.
Prisantydning4 390 000 kr
- Omkostninger
- 132 900 kr
- Totalpris
- 4 522 900 kr
- Kommunale avg.
- 5 207 kr per år
- Eiendomsskatt
- 4 911 kr per år
- Formuesverdi
- 780 595 kr
Nøkkelinfo
- Beliggenhet
- Innlandet
- Boligtype
- Hytte
- Eieform
- Eier (Selveier)
- Bruksareal
- 126 m²
- Tomteareal
- 1 910 m² (eiet)
- Byggeår
- 2003
- Soverom
- 3
- Rom
- 5
- Energimerking
- D - Oransje
Fasiliteter
Innlagt vann
Alpinanlegg
Balkong/Terrasse
Barnevennlig
Bilvei frem
Garasje/P-plass
Golfbane
Hage
Peis/Ildsted
Rolig
Utsikt
Innlagt strøm
Turterreng
Visning
Alle våre visninger har påmelding. På denne måten sikrer vi at megler har god oversikt og tid til å imøtekomme alle interessenter på beste måte. Skulle ingen være påmeldt til visningen, vil visningen ikke bli gjennomført. Passer ikke annonsert tidspunkt, ta kontakt så finner vi en løsning.
Husk å lese komplett salgsoppgave før visning. Bestill komplett, utskriftsvennlig salgsoppgave.
VisningspåmeldingOm boligen
Velkommen til Rena og Toresveien 17!
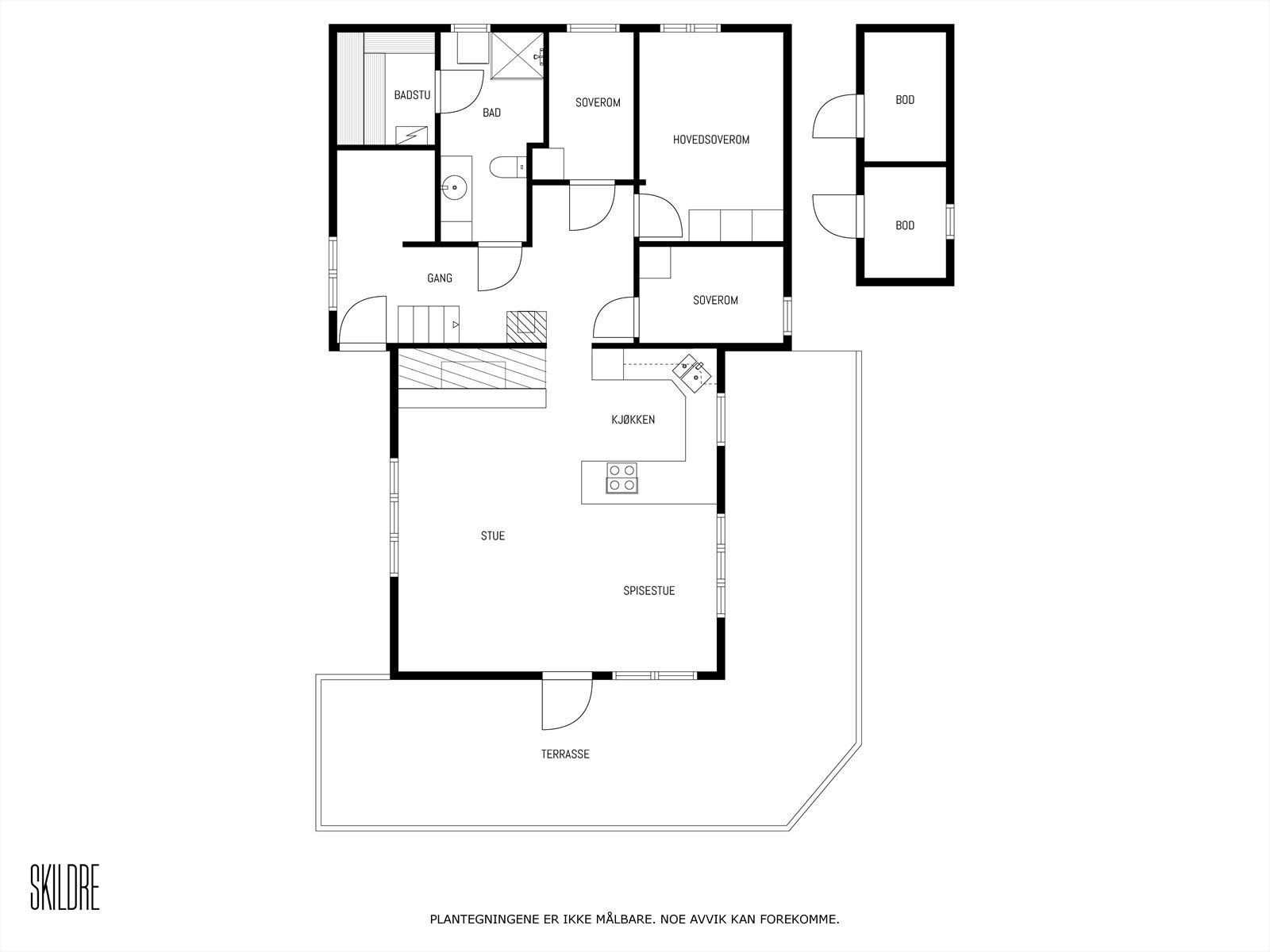
Her har vi en fin fritidsbolig over et plan med hems, som inneholder stue, spisestue, kjøkken, tre soverom, bad og badstue for å nevne noe. Romslig, solrik tomt. Nydelig utsikt utover nærområdet fra terrassen. Frittstående garasje med plass til to kjøretøy. Garasjen er også innredet med bar og barkrakker.
Fritidsboligen ligger innerst i blindvei og er godt skjermet. Ski inn/ut til alpinanlegg. Oppkjørte skiløyper og turterreng i umiddelbar nærhet. Til Rena sentrum er det ca. 12 km. Her finner man det meste av det en trenger til hytteturen.
Velkommen til visning!
Meld deg på via påmeldingsknappen eller ta kontakt med Hans Petter Carlsson, eiendomsmegler MNEF, på tlf. 911 25 518.
Her har vi en fin fritidsbolig over et plan med hems, som inneholder stue, spisestue, kjøkken, tre soverom, bad og badstue for å nevne noe. Romslig, solrik tomt. Nydelig utsikt utover nærområdet fra terrassen. Frittstående garasje med plass til to kjøretøy. Garasjen er også innredet med bar og barkrakker.
Fritidsboligen ligger innerst i blindvei og er godt skjermet. Ski inn/ut til alpinanlegg. Oppkjørte skiløyper og turterreng i umiddelbar nærhet. Til Rena sentrum er det ca. 12 km. Her finner man det meste av det en trenger til hytteturen.
Velkommen til visning!
Meld deg på via påmeldingsknappen eller ta kontakt med Hans Petter Carlsson, eiendomsmegler MNEF, på tlf. 911 25 518.
NB: Knappen for å vise hele beskrivelsen har kun en visuell effekt.
NB: Knappen for å vise hele beskrivelsen har kun en visuell effekt.
Salgsoppgaven beskriver vesentlig og lovpålagt informasjon om eiendommen
Se komplett salgsoppgaveNyttige lenker
Nærområdet
Meglerhuset Østlandet AS
Annonseinformasjon
| FINN-kode | 343044826 |
|---|---|
| Sist endret | 15. des. 2025 10:31 |
| Referanse | GAR14.23162 |
Annonsene kan være mangelfulle i forhold til lovpålagt opplysningsplikt. Før bindende avtale inngås oppfordres interessenter til å innhente komplett informasjon fra meglerforetaket, selger eller utleier.















































