Bildegalleri

Solheim i blåtimen.
Ny Flott Solheim i Jakobsåsen i Dalsbygda. 20 min fra Røros. Klar for overtagelse. Visning etter avtale.
- Omkostninger
- 13 740 kr
- Totalpris
- 4 263 740 kr
Nøkkelinfo
- Beliggenhet
- På fjellet
- Boligtype
- Hytte
- Eieform
- Eier (Selveier)
- Bruksareal
- 116 m²
- Tomteareal
- 1 695 m²
- Grunnflate
- 89 m²
- Byggeår
- 2025
- Soverom
- 4
- Meter over havet
- 850
Fasiliteter
Visning
Ta kontakt for å avtale visning.Om eiendommen
Beliggenhet
Jakobsåsen hyttefelt ligger i vakre Dalsbygda, kun 20 minutter fra Røros. Rett ved et av bygdas populære utfartsområder med flotte skiforhold om vinteren. Det er fullt mulig å gå på ski til Røros . Hummelfjell Alpinanlegg med gode og sikre snøforhold ligger bare 9 km unna.
Tomtene i Jakobsåsen ligger på lesiden i fjellbjørkeskogen 850 meter over havet, og hyttefeltet har svært gode solforhold sommer som vinter. Alle tomtene ligger vendt mot sydøst med flott utsikt mot Glomma, Hummelfjellet og Rørosvidda. Fra denne tomten ser man også innover mot Dalsbygda.
Det er muligheter for jakt og fiske. Setersjøen ligger ovenfor feltet og er en perle.
Generelt
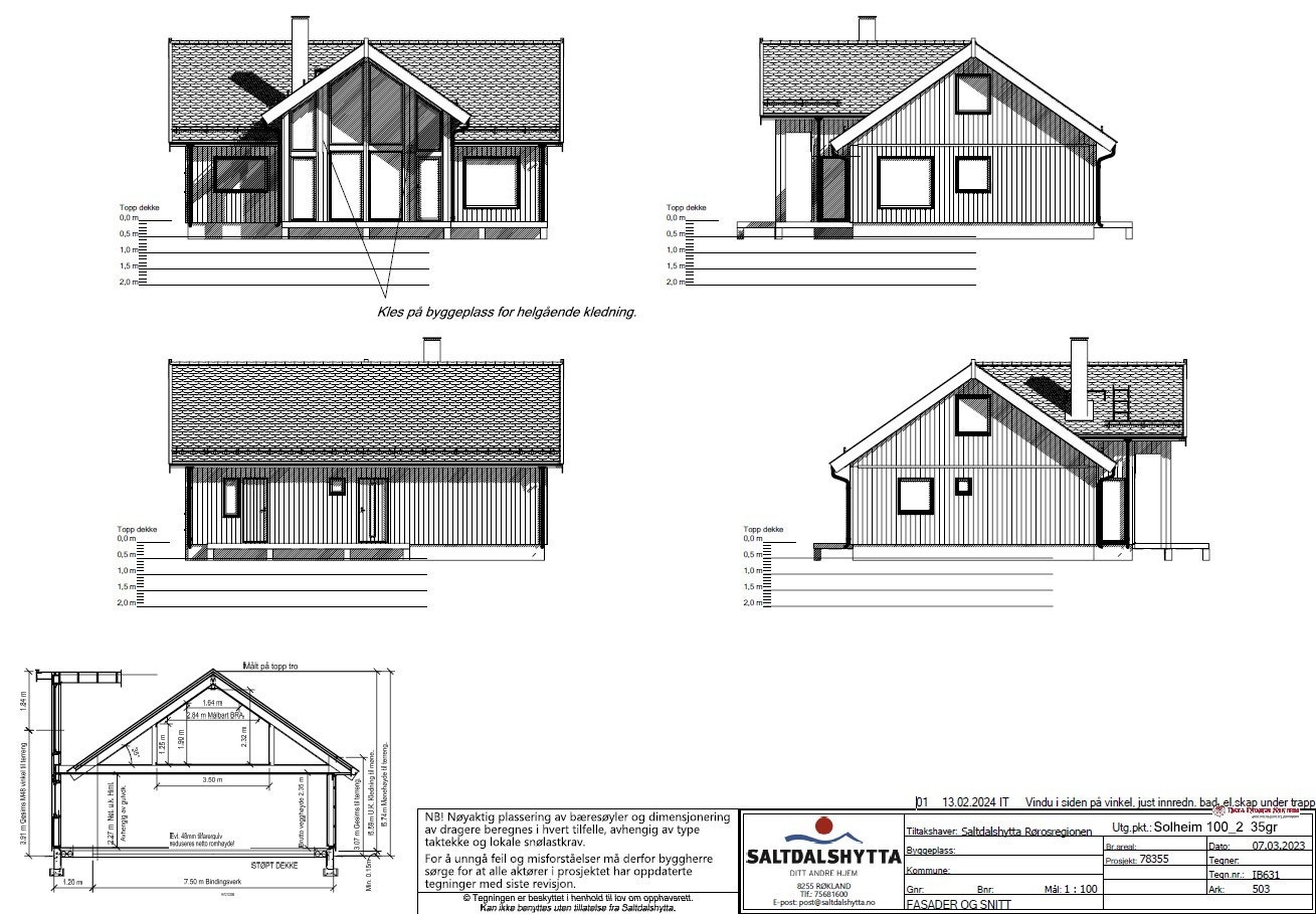
Solheim er vår mest populære modell. Her har vi bygd en Solheim 100, med ekstra glass i fasaden på frambygget i stuen. Med moderne eksteriør, god takhøyde og store vindusflater gir stuen deg den gode hyttefølelsen og naturen tett på. To gode soverom og et flott kjøkken er plassert i hver sin fløy. Planløsningen inneholder et bad og egen WC. Adkomsten er lagt til hyttas bakside, og her er det også en romslig utebod. På loftet er det to disponible/soverom, og en loftsstue med et galleri mot stua og utsikten. FLYTT RETT INN.
Adkomst/Tomteforhold
Innhold
Standard leveranse som er inkludert i prisen:
INNVENDIGE OVERFLATER
Alle innvendige overflater leveres med vegger og himlinger av beiset Sprekkpanel(13x120) i farge skigardsgrå. Stående på vegg og i møneretning i tak. Gerikter, tak- og gulvlister leveres i samme farge som vegg.
YTTERVEGGER OG TAK
Yttervegger med stående Låvepanel med et strøk grunning i lys brun. Isolert med 200mm Glava(150mm+50mm). Vinduer, ytterdører og verandadører leveres ferdig overflatebehandlet etter Tek 17. Tak isolert (200mm + 50mm) og tekkes med shingel. Takrenner, nedløp og pipebeslag leveres i sort lakkert stål.
INNERVEGGER
Leveres med 73mm isolert bindingsverk, paneles på begge sider. Teknisk vegg utføres med 198mm bindingsverk. Bærevegger utføres med 98mm bindingsverk.
ILDSTED OG PIPE:
Std Jøtul stålpipe. Valgt JøtuL ovn F134
ELANLEGG
Betydelig påkostet. Varmekabel i stue/kjøkken. Gang, bad og WC. Sort utførelse på alle stikk og brytere. Masse Downlights.
Betydelig påkostet med varmekabel i stue/kjøkken, downlights og sort utførelse.
RØRLEGGERARBEIDER
Sort utførelse på det meste av installasjoner. Dusj, wc, håndtak osv.
KJØKKEN- OG BADEINNREDNINGER
Kjøkken fra Sigdal med alle hvitevarer.
FØLGENDE ER IKKE INKLUDERT I KJØPESUMMEN
• Illustrasjoner i dette prospektet kan inneholde tilvalg som ikke er med i standard leveranse.
• Byggetegninger er kun til illustrasjon og kan inneholde møbler, benker, garderobeskap, senger osv. og plassering av disse. Dette er ikke inkludert i leveransen.
• Kostnader forbundet med kjøpers finansiering, takster og tinglysningsgebyrer
REGULERINGSPLANER
Reguleringsbestemmelse for Jakobsåsen fås ved henvendelse.
Tomt inngår i pris.
GRUNN- OG UTOMHUS ARBEIDER
Adkomst fra vei mot biloppstilling for 2 biler.
Gravearbeider og arbeider med plate støpt på mark inngår i prisen.
Påkoblingsavgift strøm:ca 9500 kr
Vei/vann/avløp
Privat vei. Årlig avgift for brøyting ca 2100 kr
Offentlig vann og avløp:
Påkoblingsavgift: Vann:ca 18125 kr Avløp: ca 20625 kr
Videre er det en årlig avgift etter forbruk.
Kommunale avgifter faktureres direkte fra kommunen, og settes når eiendommen tas i bruk.
Os kommune har eiendomsskatt.
Standard
Ta kontakt med megler for komplett informasjon
Nærområdet
Saltdalshytta Rørosregionen AS
Annonsene kan være mangelfulle i forhold til lovpålagt opplysningsplikt. Før bindende avtale inngås oppfordres interessenter til å innhente komplett informasjon fra meglerforetaket, selger eller utleier.



































