Bildegalleri

Velkommen til Vinterro - et særegent og eksklusivt fritidskonsept med fjellhytter av høy kvalitet!
VINTERRO / KVITFJELL VEST -Eksklusiv fjellhytte m/ skreddersydde løsninger. 2 bad, 3(5) sov, 2 balkonger. Ski inn/ut!
- Omkostninger
- 6 240 kr
- Totalpris
- 10 156 240 kr
- Kommunale avg.
- 13 800 kr per år
- Felleskost/mnd.
- 628 kr
Nøkkelinfo
- Beliggenhet
- På fjellet
- Boligtype
- Hytte
- Eieform
- Eier (Selveier)
- Internt bruksareal
- 141 m² (BRA-i)
- Bruksareal
- 141 m²
- Balkong/Terrasse
- 18 m² (TBA)
- Tomt
- Festet
- Festeavgift
- 3 343 kr
- Soverom
- 4
- Rom
- 5
Fasiliteter
Visning
Husk å lese komplett salgsoppgave før visning. Bestill komplett, utskriftsvennlig salgsoppgave.
VisningspåmeldingOm eiendommen
Ta kontakt for visning!
Kom og opplev våre to ferdigstilte enheter!
Ta kontakt for å avtale din visning.
Velkommen til Vinterro og chalet 6A
Privatmegleren v/ Hallvard B. Klingen har gleden av å presentere Chalet 6A - en særegen fjellhytte i det eksklusive fritidskonseptet Vinterro, bestående av 26 vertikaldelte tomannshytter. Prosjektet er utviklet av Veslefrikk Eiendom med fokus på å tilpasse seg både den moderne barnefamilien og voksne som ønsker et enkelt og aktivt liv til fjells.
Besøk prosjektets hjemmeside for boligvelger og all informasjon:
www.vinterro950.no
Prisbelønnede R21 arkitekter har tegnet chaletinspirerte hytter som skiller seg ut i form, farge, materialitet og innhold. Chalet 6A er 1 av 26 hytter som sammen danner et tun; usjenert beliggende, vendt vekk fra Svartskardvegen, uten gjennomgangstrafikk. Fritidsboligens plassering er basert på å gi en opplevelse av å ligge alene i naturen, men samtidig i sosialt samspill. Hyttene er typiske vertikaldelte tomannshytter, men med et moderne uttrykk og gjennomtenkte planløsninger.
Skreddersydde løsninger, påkostet innredning, fokus på detaljer og delikate fargekombinasjoner gir en stilsikker og eksklusiv atmosfære. Her får man høy bokomfort og maksimal utnyttelse av arealet!
Noen høydepunkter:
- Særegen fjellhytte av høy kvalitet
- Gjennomtenkte løsninger og flotte detaljer
- Spesialtilpasset og velutstyrt kjøkken med skreddersydd innredning og integrerte hvitevarer fra Miele
- Generøse vindusflater og god takhøyde, opp mot 3,8 meter i plan 2
- Stue og kjøkken hevet til 2. etasje, med utsyn til spektakulær og rå natur
- Oppholdssonen i 2. etasje er gjennomgående, med balkong i hver ende
- Stue også i 1. etasje
- Stemningsfull peisinnsats fra Rais
- 2 delikate bad med skreddersydd innredning i treverk
- 3 gode soverom. Det er mulig å etablere ekstra soverom både i plan 1 og plan 2, se stiplet løsning i plantegning.
- Hovedsoverom med tilknyttet bad og utgang stor markterrasse
- Flott 1-stavs eikeparkett og moderne limtrepanel
- Tidløse fliser med gulvvarme
- Luft-til-luft varmepumpe
- Innbydende entré med doble skyvedører inn til sportsbod
- Praktisk vaskerom tilknyttet entréen
- Bod for ski og sykler
- Fantastisk beliggenhet på Kvitfjell Vest, med ski inn/ut til både alpinanlegget og langrennsløyper
Besøk prosjektets hjemmeside for hyttevelger!
Besøk hjemmesiden www.vinterro950.no for å finne din drømmehytte!
Her finnes også hyttevelger og prisoversikt.
Priser:
Fra kr 7 950 000,- til kr 10 500 000,-
BRAi:
Fra 110 kvm. til 141 kvm.
Fantastisk beliggenhet på Kvitfjell - Skientusiastenes førstevalg
I hjertet av Gudbrandsdalen ligger Kvitfjell. En sjelden perle i den norske fjellheimen. Alpinbakker for skientusiaster - og milevis med langrennsløyper og sykkelstier i Peer Gynts rike. Kvalitetsmat på idylliske skistuer. Vakker utsikt mot Rondane nasjonalpark i nord og den frodige Gudbrandsdalen i sør. Heldige er de som kan tilbringe fritiden sin på Kvitfjell.
Kvitfjell ligger høyt, snøsikkert og vakkert plassert. Her finner erfarne alpinister ekte skiglede og lekne barn boltreplass i et av landets beste skianlegg. Rett utenfor Vinterro venter i tillegg 600 kilometer med langrennsspor i høyfjellsterreng. Kvitfjell er samtidig et perfekt utgangspunkt for fjellturer året rundt, være seg på ski, sykkel eller til fots.
Kvitfjell er ikke bare stedet for de sporty skidagene og de fine fjellturene, det har også blitt et yndet sted for gode matopplevelser. Sving inn til Tyrihanstunet for hjemmelaget mat i idylliske omgivelser. Sus videre på ski til for eksempel Fjellbistroen eller Fôr - eller ta gondolen over til Varden hvor det serveres luksuslunsj og nydelig kaffe. Avslutt dagen på Koia med gourmetpølser og ekte østerisk afterski midt i den norske fjellheimen.
På 950 meters høyde har prisbelønnede R21 arkitekter tegnet 26 chaleter med ski inn/ut til både alpinanlegget og langrennsløyper på Kvitfjell Vest. Spenn på deg skiene. Trekk inn den friske luften. Se deg rundt før du suser av sted.
Bli med på eventyret, velkommen til fjells!
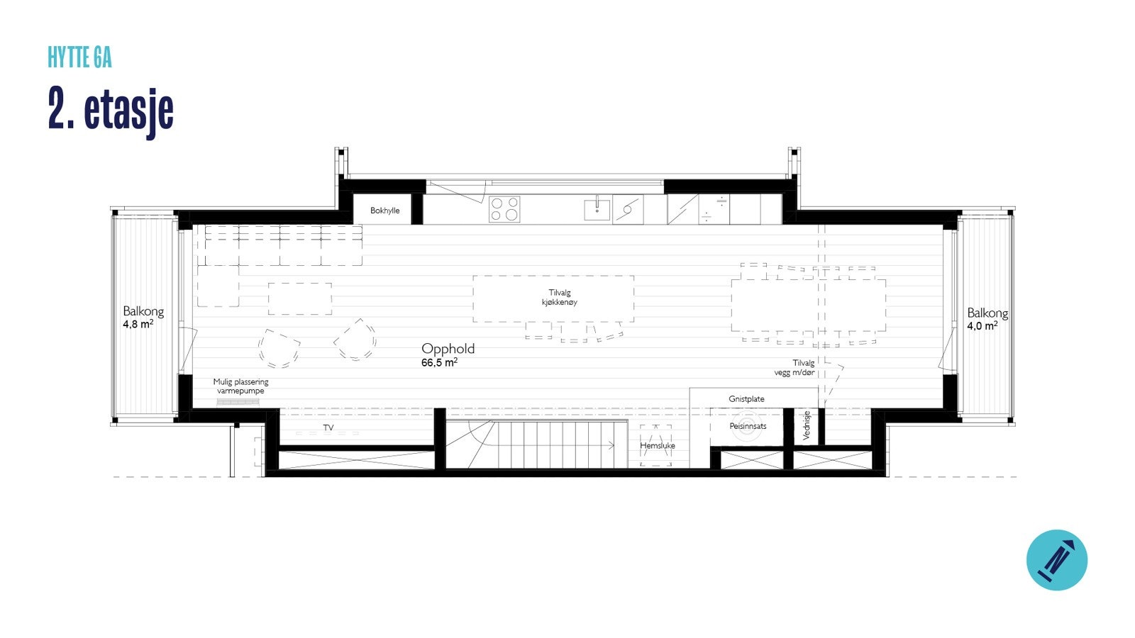
Chalet 6A, 141,7 m2 BRA-i:
Eksklusiv fjellhytte med 3 soverom (5 mulig), 2 bad, vaskerom, 2 stuer, åpen kjøkkenløsning, terrasse, 2 balkonger, sportsbod, generøse vindusflater og god takhøyde.
1. etasje byr på en romslig og innbydende entré med lekre fliser og gulvvarme. Entréen har doble skyvedører inn til en romslig sportsbod samt inngang til et praktisk vaskerom. Gangen fra entréen fører videre inn til et delikat bad, stue og 3 soverom av god størrelse. Hovedsoverommet har eget bad og direkte utgang til en stor markterrasse. Praktisk bod under trapp til 2. etasje.
2. etasje er en særdeles lys og luftig oppholdssone med generøse vindusflater og imponerende takhøyde. Sonen består av stue/spisestue, flott peisinnsats og et eksklusivt kjøkken i åpen løsning med skreddersydd innredning med overflater i treverk som skaper en lun atmosfære. Etasjen er gjennomgående med balkong i begge ender. Fra andre etasje vil det gjennom en luke med nedfellbar stige bli tilgang til kneloft (ikke målbart), et avlangt areal som ligger over trapp og ut til fasadene på hver side. Her er det praktisk å lagre for eksempel julepynt, påskepynt og annet sesongutstyr. Til hver hytte medfølger en egen, praktisk bod for ski og sykkel.
Standard, Vinterro Chalet 6A
Entré:
Romslig og meget innbydende entré, med lekre gulvfliser fra italienske Cæsar Ceramiche i serien Core, farge Ancient (grå) og i format 60x60 cm. samt sorte spotter fra Flos. Mellom entréen og sportsboden er det doble skyvedører som i åpen posisjon gir et stort og praktisk omkledningsareal, samt plass til å preparere ski eller justere på en sykkel.
Stue:
En lys og varm stue på kalde vinterdager, med fantastisk utsikt, generøs takhøyde og rause vindusflater samt en stilfull peisinnsats fra Rais.
Stue og kjøkken er lagt til andre etasje for å gi en lys og luftig atmosfære. Dette deilige rommet består av en gjennomgående oppholdssone med skråtak og inntil 3,8 meters takhøyde, store vinduer, balkong i hver ende - og et generøst kjøkkenvindu i langfasaden. De store vindusarealene vil sammen med den rause takhøyden medfører at lyset i oppholdssonen skaper ulike atmosfærer døgnet gjennom.
Kjøkken:
Kjøkkenet er for mange navet i fritidsboligen. Her samles man til helgekos eller fest. Den skreddersydde kjøkkeninnredningen skaper den perfekte rammen uansett anledning. Moderne og tidløst design kombinert med gjennomgående meget god kvalitet, funksjonelle løsninger og en fantastisk materialpalett, gir deg et kjøkken med stor bruksglede og lang levetid. Det meget rause kjøkkenet leveres av Bærum Kjøkkensenter, med integrerte hvitevarer fra Miele: stekeovn i høyskap, 80 cm induksjonsplatetopp med integrert benkeventilator, oppvaskmaskin og kjøl/fryseskap. Det leveres ettgreps, sort kjøkkenbatteri samt sort/mørk, underlimt vask type Blanco Subline. I himling over kjøkken leveres belysning fra Flos.
Baderom:
To delikate bad beliggende i 1. etasje, hvorav ett er tilknyttet hovedsoverommet. Badene leveres med baderomsinnredning, skreddersydd av Bærum Kjøkkensenter. Både baderommet ved inngangen og baderommet tilliggende hovedsoverommet leveres med tidløse storformatsfliser på gulv. Det flislegges også på veggene i selve dusjsonen, mens det på de øvrige veggene legges lyst panel av ask. Baderomshimlingen leveres også med lyst panel av ask.
Begge baderom vil ha sort servantbatteri, sort dusjbatteri med toppdusj og håndholdt løsning, sort toalett med dempesete, samt dusjvegg(er) med sorte profiler/innfestning. Elektriske varmekabler i flisgulv samt sorte LED downlights med tilbaketrukket lyskilde som standard. Det monteres opplegg for vaskemaskin på bad, som vist på plantegning.
Soverom:
Fritidsboligen byr på tre gode soverom beliggende i 1. etasje, med plass til både stor seng og garderobeløsning. Hovedsoverom med inngang til eget bad og direkte utgang til stor markterrasse. Med limtrepanel beiset i fargen Patinagrå på vegg og i himling, som er en klassisk og varig paneltype, får også soverommene et eksklusivt preg.
Gulv:
Flott 1-stavs eikeparkett i hvitlasert utførelse, type Harmonie Eik Skandinavia. Tidløse fliser på bad, i entré, gang og bod/sportsbod. Det leveres eiketrapp uten vanger og trinn i hvitlasert utførelse (tilpasset/tilnærmet standard eikeparkett).
Vegger:
Innvendige vegger leveres med limtrepanel i bredde ca. 215 mm beiset i fargen Patinagrå. På baderomsveggene legges lyst panel av ask.
Himling:
Alle himlinger, foruten baderomshimlingene, leveres med limtrepanel i bredde ca. 215 mm beiset i fargen Patinagrå. I baderomshimlinger leveres lyst panel av ask.
Garderobe:
Det leveres ikke garderobeskap som standard, men dette kan bestilles i forbindelse med tilvalgsprosessen. Mulig plassering er antydet på tegning. Det tas forbehold om at plassering av garderobeskap må tilpasses detaljprosjekterte løsninger.
Ventilasjon:
Det vil bli montert ventilasjonsaggregat med varmegjenvinner i boligen. Aggregat plasseres fortrinnsvis på kneloft. På kjøkken leveres benkeventilator integrert i induksjonstoppen, fortrinnsvis løst med kullfilter.
Sportsbod og ski-/sykkelbod:
En romslig og praktisk sportsbod er integrert i boligen og ligger i direkte tilknytning til entréen.
Det blir levert 1 utvendig ski-/sykkelbod til hver enhet slik det fremkommer av utomhusplanen i prospektet. Takhøyde inntil 1,90 meter. Sykkelbodens gulvareal utgjør ca. 2,5 kvm.
Oppdragsansvarlig
PrivatMegleren Nyeboliger AS / Hallvard Brekke Klingen
Selger/Utbygger
Kvitfjell Chalet AS v/ Veslefrikk Eiendom AS
Betegnelse
Gnr. 102 Bnr. 114 i Ringebu kommune
Arealer og fordeling per etasje
Totalt BRA Vinterro Chalet 6A består av:
- BRA-i (internt bruksareal): 141,7 m2
Bygninger
Vinterro består av 26 hytter (vertikaldelte tomannshytter) som sammen danner et tun med usjenert beliggenhet, uten gjennomgangstrafikk. Plasseringen av hyttene er basert på å gi alle enhetene en opplevelse av å ligge alene i naturen, men samtidig i sosialt samspill med hverandre.
Byggemåte
Hyttene blir kledd med dyp spilekledning. Treverket på fasaden får en egenartet dimensjon som gir hyttene et robust utrykk. Det blir innslag av treshingel som gir en detaljering og dybde til fasadene. Detaljer som taknedløp, takrenner, beslag, pipehatt og balkong rekkverk leveres i moderne utførelse og farge. Terrasser og inngangspartier rammes inn av presist cortensstål, som også benyttes rundt de spesiallagde inngangsristene. Ved inngangspartiet leveres frostsikkert vannuttak for effektiv vask av hunder, sykler og fjellstøvler.
Innhold
1. etasje: Entré, sportsbod, vaskerom, 3 soverom, stue, 2 bad, gang, bod under trapp og utgang markterrasse.
2. etasje: Stue med utgang balkong, kjøkken i åpen løsning og spisestue med utgang balkong. Luke til kaldloft for ekstra lagring.
I tillegg medfølger 1 stk. bod for ski og sykkel.
Oppvarming
Boligen vil hovedsakelig være oppvarmet med varmepumpe i 2. etasje. Varmepumpen vil kunne betjenes med App over WIFI/4G.
Det leveres peisinnsats i 2. etasje.
Boligen vil for øvrig være oppvarmet med elektriske varmekabler i begge baderom, gang, vaskerom/bod, entré og tilliggende sportsbod/bod.
Tilvalgsmuligheter
Utover de valgalternativer som er beskrevet i prospektet, vil det bli gitt mulighet for å gjøre enkelte individuelle tilpasninger. Selger og entreprenør vil i god tid før innredningsarbeidene starter utarbeide tilvalgsmateriell/tilvalgsportal hvor priser og frister for beslutning vil fremkomme. Bestillinger etter denne tilvalgsbrosjyren/portalen avtales med entreprenør og faktureres som et utgangspunkt fra selger via megler i forbindelse med sluttoppgjøret.
Kontakt megler for nærmere informasjon.
Parkering / Garasje
Det medfølger 1 stk. parkeringsplass til boligen.
Det er mulighet for kjøper å bestille ladepunkt/ladeboks, samt nødvendige el-materiell, i forbindelse med tilvalgsprosessen.
Det leveres totalt 13 stk. gjesteparkeringsplasser som en del av prosjektet. Se utomhusplan som viser foreløpig fordelig av alle plasser.
Adkomst
Ta av fra E6 ved Fåvang og følg skilting mot Kvitfjell Varden / Vest. Vegen slynger seg oppover i dalsiden mot Kvitfjell Vest. Adkomst fra Svartskardvegen.
Oppgjør
Det forutsettes at kr 200 000,- av kjøpesummen innbetales ved kontraktinngåelse til meglers klientkonto. Ved vedtatt byggestart innbetales 10 % av kjøpesum til meglers klientkonto med fradrag for delinnbetalingen på kr 200 000,-. Ved kjøp etter vedtatt byggestart innbetales 10 % av kjøpesum ved kontraktsinngåelse. Kjøper plikter ikke å innbetale noen del av kjøpesummen før selger har stilt garanti iht. bestemmelsene i bustadoppføringslova § 12. Hovedoppgjør (rest kjøpesum og kjøpsomkostninger - se eget avsnitt om tilvalg og endringer) skal innbetales til meglers klientkonto én uke før overtagelse av eierseksjonen.
Finansiering
Kontakt megler for avklaring av finansielle forhold, herunder lån til kjøp av eiendom. Privatmegleren har avtale med Nordea om formidling av lån og andre finansielle tjenester. Privatmegleren mottar godtgjørelse for dette.
Festeavtale
Festetid regnes fra 01.01.2022 og kan kreves regulert i henhold til endringene i SSBs konsumprisindeks og så ofte tomtefestelovgivningen tillater. Se avsnitt om løpende faste kostnader for nærmere informasjon om årlig festeavgift. Rett til innløsning følger av tomtefestelovens bestemmelser. Se for øvrig festekontrakt som er vedlegg til denne salgsoppgave.
Adgang til utleie (fritidsformål)
Eier får full råderett over egen seksjon og kan fritt leie den ut til fritidsboligformål iht. Eierseksjonsloven.
Overtagelse
Sålen er støpt for dette bygget (Chalet 6) og ferdigstillelse er derfor bare 8-9 måneder etter kjøpekontrakt er inngått. Endelig overtagelsesperiode fastsettes i kjøpekontrakten.
Solgt ihht bustadoppføringsloven
Boligen selges i henhold til Bustadoppføringslova som regulerer kjøpers (forbrukers) rettigheter og plikter ved avtale om oppføring av bolig og kjøp av fast eiendom der bygningen ikke er fullført når avtalen inngås. Ved salg til aksjeselskap legges Avhendingslovens bestemmelser til grunn. For øvrig gjelder Lov om eierseksjoner for eierseksjonssameiet og driften av dette.
Garantier
Det stilles garantier i henhold til Bustadoppføringslovas bestemmelser. Garanti etter § 12 vil bli stilt i forbindelse med avtaleinngåelse. Garantien skal være pålydende 3% av kjøpesummen i byggetiden og 5% i 5 år etter overlevering av boligene til kjøper. Garanti etter § 47 forutsettes stilt om selger ønsker utbetalt forskudd/delinnbetaling/sluttoppgjør før hjemmelsovergang. Eventuelle påkrevde endringer av garantier ved eventuelle videresalg/transporter utføres ikke og bekostes ikke av selger.
Budgiving
Boligen selges til fastpris.
Alle bud/kjøpetilbud på eiendommen skal være skriftlig og sendes meglerforetaket pr. fax, mail, sms eller via vår "gi bud"-knapp på våre nettsider. Knappen finner du også på Privatmeglerens hjemmeside for prosjektet, se på den enkelte bolig.
Bud/kjøpetilbud må ikke ha kortere akseptfrist enn til kl. 12.00 første virkedag etter siste annonserte visning. Lørdag regnes ikke som virkedag. Bud/kjøpetilbud med kortere frist enn dette kan ikke formidles av megler. Nærmere info om budgiving finner du på egen side sammen med kjøpetilbud/budskjema.
Som budgiver hos Privatmegleren kan du kreve budjournal fremlagt så snart handel er gjennomført.
Innhold i budjournal er lovregulert, og innebærer at budgivere må akseptere at opplysninger om budet kan bli fremlagt for selger, kjøper og øvrige budgivere. Budgiver som ikke blir kjøper, kan kreve kopi av anonymisert budjournal.
Lov om hvitvasking
Megler er underlagt lov om hvitvasking som innebærer plikt til å melde ifra til Økokrim om mistenkelige transaksjoner
Salgsoppgaven beskriver vesentlig og lovpålagt informasjon om eiendommen
Se komplett salgsoppgaveNyttige lenker
Nærområdet

PrivatMegleren Nyeboliger Oslo
Annonseinformasjon
| FINN-kode | 340436222 |
|---|---|
| Sist endret | 12. des. 2025 03:04 |
| Referanse | 304230021 |
Annonsene kan være mangelfulle i forhold til lovpålagt opplysningsplikt. Før bindende avtale inngås oppfordres interessenter til å innhente komplett informasjon fra meglerforetaket, selger eller utleier.



































