Bildegalleri

Inaktiv
Velkommen til Beitostølen
Unik, innholdsrik og påkostet familiehytte med solfylt tomt, garasje og fantastisk utsikt over fjellheimen
Prisantydning19 500 000 kr
- Omkostninger
- 488 740 kr
- Totalpris
- 19 988 740 kr
- Kommunale avg.
- 18 883 kr per år
- Formuesverdi
- 1 446 839 kr
Nøkkelinfo
- Beliggenhet
- På fjellet
- Boligtype
- Hytte
- Eieform
- Eier (Selveier)
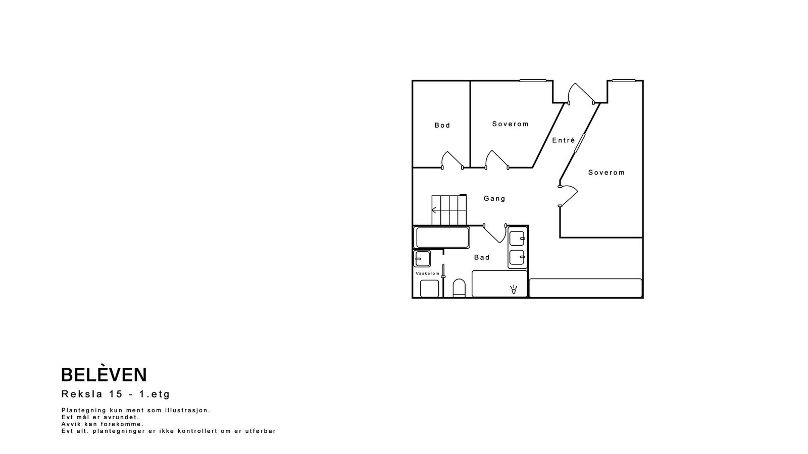
- Internt bruksareal
- 275 m² (BRA-i)
- Bruksareal
- 289 m²
- Eksternt bruksareal
- 40 m² (BRA-e)
- Balkong/Terrasse
- 67 m² (TBA)
- Tomteareal
- 1 663 m² (eiet)
- Byggeår
- 2017
- Soverom
- 5
- Rom
- 8
- Sengeplasser
- 10
- Energimerking
- D - Oransje
Fasiliteter
Balkong/Terrasse
Garasje/P-plass
Offentlig vann/kloakk
Peis/Ildsted
Turterreng
Utsikt
Alpinanlegg
Bilvei frem
Innlagt strøm
Innlagt vann
Lademulighet
Balansert ventilasjon
Visning
Ta kontakt for å avtale visning.Husk å lese komplett salgsoppgave før visning. Bestill komplett, utskriftsvennlig salgsoppgave.
VisningspåmeldingOm boligen
Midt i det vakre fjellandskapet i ytterkant av hyttefeltet Markhøvda på Beitostølen, er Reksla 15 et helt unikt ferieparadis. Beitostølen er selve inngangsporten til Jotunheimens mange, vakre og rekreasjonsrike turmuligheter. Her finner du varierte og godt preparerte langrennsløyper og alpinbakker - ideelt for skiløpere på alle nivåer.
Hytten er inspirert av byggestilen til gamle låver, og allerede ved innkjørselen får man et godt førsteinntrykk at den unike arkitekturen. Inne i hytten finner du et innholdsrikt interiør, som er nøye utvalgt for å gi komfort og funksjonalitet. Med et åpent oppholdsrom og store panoramavinduer, kan man ta inn den fantastiske utsikten over fjelltoppene og den vakre naturen rundt. Boligens fleksible planløsning gir gode bruksmuligheter - alt etter behov.
Denne særegne låvehytten byr på en opplevelse utenom det vanlige. Med sin unike arkitektur og karakteristiske trestruktur, skiller denne hytten seg ut blant andre. Er dette ditt nye ferieparadis?
Hytten er inspirert av byggestilen til gamle låver, og allerede ved innkjørselen får man et godt førsteinntrykk at den unike arkitekturen. Inne i hytten finner du et innholdsrikt interiør, som er nøye utvalgt for å gi komfort og funksjonalitet. Med et åpent oppholdsrom og store panoramavinduer, kan man ta inn den fantastiske utsikten over fjelltoppene og den vakre naturen rundt. Boligens fleksible planløsning gir gode bruksmuligheter - alt etter behov.
Denne særegne låvehytten byr på en opplevelse utenom det vanlige. Med sin unike arkitektur og karakteristiske trestruktur, skiller denne hytten seg ut blant andre. Er dette ditt nye ferieparadis?
NB: Knappen for å vise hele beskrivelsen har kun en visuell effekt.
NB: Knappen for å vise hele beskrivelsen har kun en visuell effekt.
Salgsoppgaven beskriver vesentlig og lovpålagt informasjon om eiendommen
Se komplett salgsoppgaveNyttige lenker
Nærområdet
Belèven Eiendomsmegling
Annonsene kan være mangelfulle i forhold til lovpålagt opplysningsplikt. Før bindende avtale inngås oppfordres interessenter til å innhente komplett informasjon fra meglerforetaket, selger eller utleier.




































