Bildegalleri

Illustrasjonsbilde av stue
Norefjell vest- prosjektert hytte med panoramautsikt og friområde foran mot vest
Nøkkelinfo
- Beliggenhet
- På fjellet
- Boligtype
- Hytte
- P-plasser
- 2
- Internt bruksareal
- 83 m² (BRA-i)
- Eksternt bruksareal
- 4 m² (BRA-e)
- Tomteareal
- 1 000 m²
- Bruttoareal
- 104 m²
- Byggeår
- 2023
- Soverom
- 2
- Meter over havet
- 840
Fasiliteter
Visning
Ta kontakt for å avtale visning.Om eiendommen
Beliggenhet
Tomta, som ligger på 840 moh, har en fin beliggenhet og er en av de beste tomtene i feltet grunnet lang avstand til hytter foran. Store vindusflater og panoramautsikt mot sør-vest.
Beliggenhet i Sigdal kommune som er en av norges største hyttekommuner nettopp på grunn av sine fantastiske fjellområder fra Norefjell i syd til Haglebu i nord samt kort kjøreavstand fra Oslo og andre byer i Viken.
Norefjell Skisenter
15 minutters biltur unna hytteområdet Norefjell Vest, finner du fantastiske Norefjell Skisenter. Her kan du oppleve Nord-Europas største fallhøyde i heisanlegget, 14 heiser og 30 nedfarter.
Er du klar for svarte løyper og sug i magen? Eller er du ute etter slakere svinger og cruising? Uansett nivå, er Norefjell Skisenter et fint sted å tilbringe dagen, for hele familien. Norefjell Skisenter har skiutleie og skishop som bugner av kvalitetsutstyr. Når du trenger litt påfyll, er det bare å svinge innom et av skisenterets spisesteder med ski inn/ski ut.
Langrenn
Det er ikke uten grunn at Aftenposten kaller Norefjell et av Norges aller beste områder med tanke på skispor med utsikt. Et stort nett av skiløyper snor seg rundt tomtene på Norefjell Vest. Her er det bare å spenne på seg skiene og legge ut på tur. Det er Eggedal Turlag og Norefjell Turforening som kjører løypene, til sammen flere hundre kilometer.
Fra hytta kan du gå mot Høgevarde (1460moh), Gråfjell eller når været ikke tillater høyfjellet kan du gå midtre Djupsjøløype til Norefjell Ski og Spa.
Eggedal i Sigdal kommune er en bygd med mye kultur med blant annet "Hagan". Hagan er et av landets best bevarte kunstnerhjem fra gullalderen i norsk malerkunst. Her bodde maleren Christian Skredsvig (1854–1924) i 30 år.
Både huset og interiøret har stått urørt siden Chr. Skredsvig og hans familie bodde der. På veggene henger hans egne og kunstnervenners malerier og tegninger, til sammen ca. 150 originalarbeider.
Vi har "Lauvlia" med hjemmet til Theodor Kittelsen. Han er en av Norges mest folkekjære kunstnere. Kittelsen er kanskje mest kjent for sine eventyrtegninger og stemningsfulle malerier av folk og troll, dyr og landskap. Sammen med sin familie flyttet han inn i sitt eget, nye hjem i 1899, og de bodde her i ti år. Lauvlia, ligger vakkert til ved vannet Soneren i Sigdal, med utsikt til Andersnatten, Båneberget, Eggedalsfjella og Norefjell, motiver som Th. Kittelsen brukte i mange av sine bilder.
Generelt
Blink Hytta Sigdal as sikret seg i alt 8 tomter av grunneierne på et tidlig tidspunkt. Fram til nå er 4 solgt og tomt 4 er en av de mest atraktive i området, bla pga friområde foran. Se forøvrig vår nettside www.blinkhytta-sigdal.no.
Hytta er ikke påbegynt og det er mulig med vesentlig endring på hytte under forutsetning av man holder seg til reguleringsbestemmelsene.
Se på tegninger under logo oppe til høyre.
Tomteprisen er satt til 1,3 mill og det blir da dokumentavgift 2,5 % kun av denne summen og ikke totalsummen. Dette er helt vanlig ved nybygg og betales av kjøper.
Ellers er tilboblingavgift til Tempelseter vann og avløp på kr. 180.000,- inkludert i kjøpesummen samt oppmåling og tilkoblingavgift strøm på kr. 100.000,-
Byggegebyr til Sigdal kommune på kr. 28.000,- er også inkudert i summen.
Vi disponerer også 3 andre tomter (2, 13 og 16) i området som kan bebygges med hytte etter ønske. Tomtepris 1 -1,6 mill.
Adkomst/Tomteforhold
Kjør via Eggedal i Sigdal kommune, ta til høyre i Eggedal sentrum og kjør mot Djupsjøen og Norefjell. Rett etter bommen tar man til venstre og følger veien helt til endes.
Om man kjører via Noresund og Norefjell, kjør forbi Djupsjøen og ta til høyre like før bommen.
Innhold
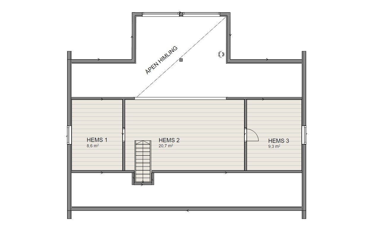
Inneholder stor stue/kjøkken på hele 40 m2. To romslige soverom, bad med dusj/wc. Vaskerom/teknisk med wc. Entre med trapp opp til hems med stor loftstue og 2 hemsesoverom. Hemsen har full ståhøyde på midten. Gulvareal på hele 39 m2. Utvendig bod på 4,5 m2.
Det installeres en peisovn fra Jøtul med ventilert stålpipe i stue. Kjøkken fra Sigdal med en prosjektpris på kr. 100.000,-
Standard
Høy standard med 25 cm isolasjon i tak, 20 cm i gulv og vegger. Eikeparkett i hele hytta unntatt hall, vaskerom og bad hvor det er fliser.
Torv på taket med helsveiset membran. Ferdig behandlet panel innvendig av type Skigardsgrå sprekk.
Utvendig grunnet panel av typen Dobbelfalset tett 19x148mm.
Ta kontakt med megler for komplett informasjon
Nærområdet

Annonsene kan være mangelfulle i forhold til lovpålagt opplysningsplikt. Før bindende avtale inngås oppfordres interessenter til å innhente komplett informasjon fra meglerforetaket, selger eller utleier.





















