Bildegalleri

01Fasade
Vestbakken Hyttefelt / Midt i alpinanlegget - Solrikt vid utsikt over Hovden. Modell Fjellfrost fra 100 til 141 kvm
- Omkostninger
- 76 240 kr
- Totalpris
- 7 526 240 kr
Nøkkelinfo
- Beliggenhet
- På fjellet
- Boligtype
- Annet fritid
- Eieform
- Eier (Selveier)
- Primærrom
- 1 m²
- Bruksareal
- 142 m²
- Tomt
- Eiet
- Soverom
- 4
Visning
Husk å lese komplett salgsoppgave før visning. Bestill komplett, utskriftsvennlig salgsoppgave.
Om boligen
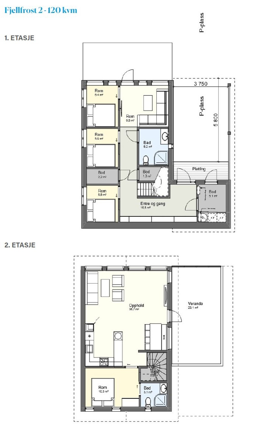
Vestbakken Hyttefelt består av enkel og doble hytter på selveiertomter. Arealer 100 - 120 - 141 kvm
Hovdens beste beliggenhet
Vestbakken hyttefelt ligger midt i alpinbakkene på Hovden Alpinsenter. Hyttene har en unik beliggenhet med ski inn/ski ut til både alpinbakken og langrennsløyper. Fantastisk utsikt over dalen mot Hovden sentrum, Hartevann og Hovdenut.
Gode solforhold og flotte turområder rett utenfor hytta, både til Nos og Hovdenut.
Denne hyttetypen bygges på de 11 øverste tomtene samt de 5 enkle tomtene i midt rekken i byggetrinn 1. Hyttene bygges i en eksklusiv stil, fasaden har ekstra brede bord.
Fullstendig info på - www.vestheisenfamiliepark.no
Ta kontakt med megler for komplett informasjon
Nyttige lenker
Nærområdet
Exbo Sørlandet AS
Annonsene kan være mangelfulle i forhold til lovpålagt opplysningsplikt. Før bindende avtale inngås oppfordres interessenter til å innhente komplett informasjon fra meglerforetaket, selger eller utleier.































