Bildegalleri

Fasade sydøst
Inaktiv
Nybygget, arkitekttegnet hytte m/høy standard. Flott utsikt til Ula og havet.
Prisantydning8 900 000 kr
- Omkostninger
- 47 420 kr
- Totalpris
- 8 947 420 kr
- Kommunale avg.
- 9 273 kr per år
Nøkkelinfo
- Beliggenhet
- Ved sjøen
- Boligtype
- Hytte
- Eieform
- Eier (Selveier)
- Primærrom
- 117 m²
- Bruksareal
- 117 m²
- Tomteareal
- 800 m² (eiet)
- Byggeår
- 2023
- Soverom
- 4
- Energimerking
- C - Oransje
- Overtakelse
- Etter nærmere avtale, men snarlig overtagelse er ønskelig.
Fasiliteter
Innlagt vann
Balkong/Terrasse
Barnevennlig
Bilvei frem
Golfbane
Peis/Ildsted
Rolig
Utsikt
Bademulighet
Fiskemulighet
Innlagt strøm
Offentlig vann/kloakk
Turterreng
Visning
For å delta på visning, ber vi om at du melder deg på. Da sikrer vi at du får nødvendig informasjon og at det er satt av tilstrekkelig med tid. Kontakt megler dersom annet tidspunkt ønskes. Husk å lese salgsoppgaven før visningen, så du stiller forberedt.
Ønsker du kun å bli holdt orientert, kan du fra eiendommens hjemmeside få varsel om solgtpris, eller kontakte megler.
Ta kontakt med megler for avtale om privatvisning.
VisningspåmeldingOm boligen
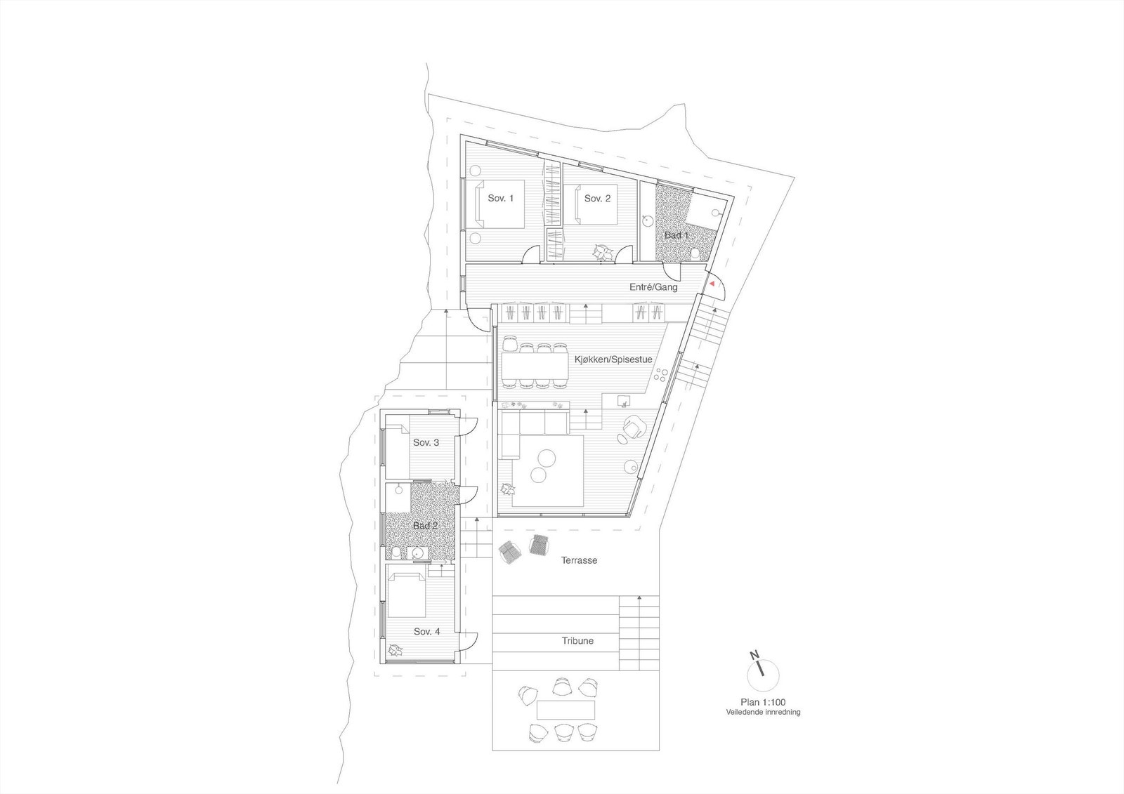
Ei fantastisk, arkitekttegnet og nybygget hytte på eiet tomt med flott utsikt mot Ula og havet utenfor. Hytta holder særdeles høy standard med eksklusivt materialvalg ute og inne. Denne bør oppleves ! I nærområdet er det flotte strender og svaberg og store turområder ! Bl.a. 4 store soverom og 2 eksklusive bad.
NB: Knappen for å vise hele beskrivelsen har kun en visuell effekt.
NB: Knappen for å vise hele beskrivelsen har kun en visuell effekt.
Salgsoppgaven beskriver vesentlig og lovpålagt informasjon om eiendommen
Se komplett salgsoppgaveNyttige lenker
Nærområdet
Krogsveen Larvik
Verdien av en god megler.
Annonseinformasjon
| FINN-kode | 328095475 |
|---|---|
| Sist endret | 23. aug. 2024 16:48 |
| Referanse | KR23.2340 |
Annonsene kan være mangelfulle i forhold til lovpålagt opplysningsplikt. Før bindende avtale inngås oppfordres interessenter til å innhente komplett informasjon fra meglerforetaket, selger eller utleier.































































