Bildegalleri

U-3000 fra Urbanhus - Illustrasjonsbilde
Byggeklare sørvendte utsiktstomter! - Nøkkelferdig U-3000 - NYHET: Vi hjelper til med å redusere strømforbruket!
- Omkostninger
- 250 000 kr
- Totalpris
- 5 990 000 kr
Nøkkelinfo
- Beliggenhet
- Ved sjøen
- Boligtype
- Hytte
- Eieform
- Eier (Selveier)
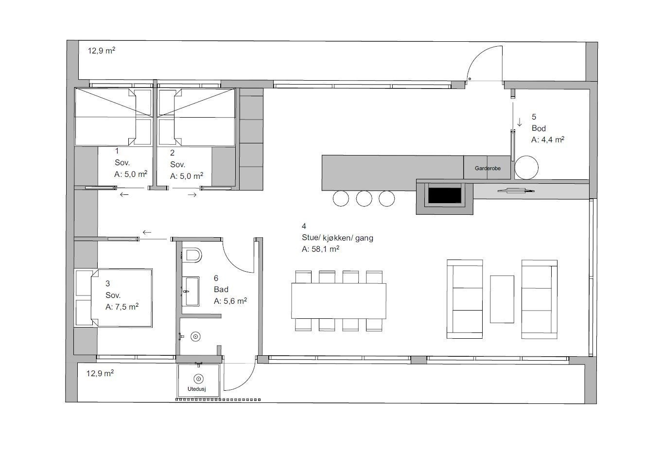
- Bruksareal
- 89 m²
- Tomt
- Eiet
- Soverom
- 3
- Meter over havet
- 60
Fasiliteter
Visning
Ta kontakt for å avtale visning.Om eiendommen
Beliggenhet
Infrastrukturen ferdigstilles våren 2023! Nå har vi ca. 50 byggeklare tomter!
Midt mellom Lyngør og Tvedestrand finner du Sørlandsleia, med spektakulær utsikt og sol fra morgen til kveld. Et vakkert og solrikt hytteområde som starter der bølgene slutter. Her kan du oppleve det beste sørlandskysten har å by på!
Her har du mange muligheter i umiddelbar nærhet. Yrende båtliv, flotte bademuligheter, flere sosiale samlingspunkt, restauranter og aktivitetsmuligheter både for barn og voksne rett i nærheten av hyttetomtene. Det er mulighet for å leie båtplass like i nærheten av feltet.
Våren 2023 ferdigstilles infrastrukturen til de første 52 tomtene. På disse tomtene tilbyr vi nøkkelferdige hytter til nøkkelferdige priser. Her blir det god plass mellom hyttene. Gjennomsnittlig tomtestørrelse er på ca. 1000 kvm. Solforholdene og utsikten gleder vi oss til å vise deg. Hvis man ønsker å kun kjøpe tomt, avvente bygging, eller bygge noe annet enn det vi har i vår katalog så er det ingenting i veien for det.
Generelt
Tvedestrand Utvikling samarbeider med anerkjente hytteleverandører, blant annet Familiehytta, Nordlyshytter og Urbanhus. I vårt prospekt og på vår hjemmeside presenteres et godt utvalg hytter fra disse leverandørene. Alle med nøkkelferdige priser på alle tomter. Er det andre hytter fra disse leverandørene du ønsker pris på, ta kontakt. Det tas forbehold om trykkfeil og at alle typer endringer kan skje på kort varsel. Alle bilder av hytta og plantegninger er illustrasjonsbilder og kan ha mindre avvik fra virkeligheten.
Selvbetjent visning
På Sørlandsleia hyttefelt har vi ingen bommer og et nytt visningssystem som gir deg full oversikt over både tomter og nøkkelferdige hytter med nøkkelferdige priser, akkurat når det passer for deg.
I konseptet til Sørlandsleia er alle tomtene delt inn i ulike priskategorier, markert med hver sin farge. På vei opp til feltet ser du en informasjonstavle med kart over tomtene. Her henger det ei postkasse hvor du også finner vårt prospekt som du tar med deg på leting etter din drømmetomt.
Dette betyr at du som kunde kan gå uforstyrret rundt på våre felter når det passer, og få en komplett prisoversikt på både nøkkelferdige hytter og tomter.
Selv om vi har godt opplegg for selvbetjent visning ser vi frem til å bli kontaktet, og tar gjerne et møte med deg på Sørlandsleia.
Adkomst/Tomteforhold
Fra Oslo bruker man ca. 2 timer og 45 minutter med bil. Denne tiden blir ytterligere kortet ned når ny E18 gjennom Telemark og Agder står ferdig. Den enkleste måten å finne frem til feltet på er å legge inn "Sørlandsleia hyttefelt" på Google maps. Da vil du ende opp på veien opp til feltet.
Vi hjelper deg å få lave strømkostnader i ny hytte!
Investeringen som muliggjør dette dekker Tvedestrand Utvikling for alle som kjøper tomt i 2023!
Tre viktige faktorer gjør dette mulig:
- Nye hytter har minimalt varmeutslipp sammenliknet med eldre hytter
- Topp moderne varmepumpe fra Mitsubishi
- App-basert styringssystem ”Strømkontroll” fra Futurehome
Les mer om vår "strømpakke" på hjemmesiden https://sorlandsleia.no/stromsparing/ eller ta kontakt for mer informasjon!
Innhold
Standard
Salgsoppgaven beskriver vesentlig og lovpålagt informasjon om eiendommen
Se komplett salgsoppgaveNyttige lenker
Nærområdet
Tvedestrand Utvikling
Annonseinformasjon
| FINN-kode | 327005574 |
|---|---|
| Sist endret | 29. jan. 2026 12:19 |
| Referanse | Tv_u3000 |
Annonsene kan være mangelfulle i forhold til lovpålagt opplysningsplikt. Før bindende avtale inngås oppfordres interessenter til å innhente komplett informasjon fra meglerforetaket, selger eller utleier.





















