Bildegalleri

Lofoten 76 fra Nordlyshytter
Nøkkelferdig Lofoten 76 - NYHET: Vi hjelper til med å redusere strømforbruket!
- Omkostninger
- 170 000 kr
- Totalpris
- 3 710 000 kr
Nøkkelinfo
- Beliggenhet
- Ved sjøen
- Boligtype
- Hytte
- Eieform
- Eier (Selveier)
- P-plasser
- 2
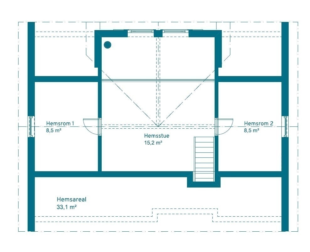
- Bruksareal
- 65 m²
- Tomt
- Eiet
- Byggeår
- 2021
- Soverom
- 4
- Meter over havet
- 60
Fasiliteter
Visning
Om eiendommen
Beliggenhet
Øysang i Risør ligger meget solrikt til oppe på et platå med sol fra tidlig morgen til sent på kveld. Her kan du rusle til både sjøen og Skarvann på få minutter.
I dag bruker du ca 2,5 timer fra Oslo til Øysang, denne reisetiden vil ytterligere kortes ned når fire felts E18 blir ferdig om få år.
Her kan du med egen båt eller MF Øisang som er landets eldste bilferge i tre som fortsatt er i fast rute komme til Risør sentrum på ca. 15 minutter. Du rusler fra hyttefeltene og ned til fergeleiet på ca. 10 minutter. Velger du å ta bilen til Risør tar dette ca. 25 minutter.
Trivsel og aktivitetsmuligheter for de som kjøper tomt og hytte hos oss, er det som vi prioriterer høyest. Øysang Utvikling har derfor etablert Øysang Aktivitetspark, som er et flerbruksområde for fotball, basketball og håndball, pluss sandvolleyballbane og en fin lekeplass. To oppussede tennisbaner står også klare til bruk. Jegertunet Feriesenter er vår gode og nærmeste nabo. Her kan man foruten å få seg et bad i bassenget deres, også få kjøpt god mat og noe kaldt i glassene.
Vi tilbyr nå ca. 45 tomter med nøkkelferdige hytter og nøkkelferdige priser på Øysang Vest og på Øysangkollen. På Øysang Vest har vi ca. 30 byggeklare tomter regulert for "Vidsyn"-hytte. Last ned prospektet for å lese mer. På Øysangkollen, hvor man kan bygge denne hytta, er infrastrukturen på trinn 1 ferdig. Her har vi nå ca. 15 byggeklare tomter for salg. Se oysang.no for en oppdatert oversikt over hvilke tomter som er ledige.
Generelt
Øysang Utvikling samarbeider med anerkjente hytteleverandører, blant annet Familiehytta og Nordlyshytter. I vårt prospekt og på vår hjemmeside presenteres et godt utvalg hytter fra disse leverandørene. Alle med nøkkelferdige priser på alle tomter. Er det andre hytter fra disse leverandørene du ønsker pris på, ta kontakt. Det tas forbehold om trykkfeil og at alle typer endringer kan skje på kort varsel.
Selvbetjent visning
På Øysang i Risør har vi ingen bommer og et nytt visningssystem som gir deg full oversikt over både tomter og nøkkelferdige hytter med nøkkelferdige priser, akkurat når det passer for deg.
I konseptet til Øysang i Risør er alle de ca. 60 tomtene delt inn i ulike priskategorier, markert med hver sin farge. Når du svinger inn veien til Jegertunet og Øysang så finner du etter ca. 500 meter skilter til både Øysang Vest og Øysangkollen. Når du kommer frem til feltene ser du en informasjonstavle med kart over tomtene. Her henger det ei postkasse hvor du også finner vårt prospekt som du tar med deg på leting etter din drømmetomt.
Dette betyr at du som kunde kan gå uforstyrret rundt på våre felter når det passer, og få en komplett prisoversikt på både nøkkelferdige hytter og tomter.
Selv om vi har godt opplegg for selvbetjent visning ser vi frem til å bli kontaktet, og tar gjerne et møte med deg på Øysang.
Adkomst/Tomteforhold
Fra Oslo bruker man ca. 2 timer og 30 minutter med bil. Denne tiden blir ytterligere kortet ned når ny E18 gjennom Telemark og Agder står ferdig. Den enkleste måten å finne frem til feltet på er å legge inn "Øysang Utvikling" på Google maps. Da vil du ende opp på feltet.
Vi hjelper deg å få lave strømkostnader i ny hytte!
Investeringen som muliggjør dette dekker Øysang Utvikling for alle som kjøper tomt i 2023!
Tre viktige faktorer gjør dette mulig:
- Nye hytter har minimalt varmeutslipp sammenliknet med eldre hytter
- Topp moderne varmepumpe fra Mitsubishi
- App-basert styringssystem ”Strømkontroll” fra Futurehome
Les mer om vår "strømpakke" på hjemmesiden https://oysang.no/stromsparing/ eller ta kontakt for mer informasjon!
Innhold
Standard
Salgsoppgaven beskriver vesentlig og lovpålagt informasjon om eiendommen
Se komplett salgsoppgaveNyttige lenker
Nærområdet
Øysang Utvikling AS
Annonseinformasjon
| FINN-kode | 323864924 |
|---|---|
| Sist endret | 29. jan. 2026 12:10 |
| Referanse | Oy-Lof76 |
Annonsene kan være mangelfulle i forhold til lovpålagt opplysningsplikt. Før bindende avtale inngås oppfordres interessenter til å innhente komplett informasjon fra meglerforetaket, selger eller utleier.



















