Bildegalleri

Lignende Ålhytta på en av nabotomtene
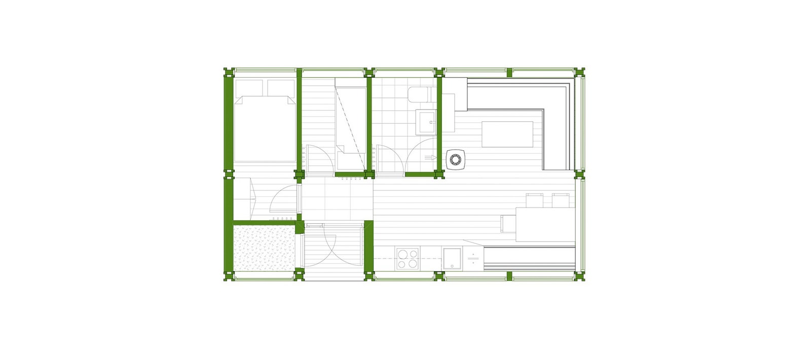
Ålhytte med 2 soverom, bod, bad og åpen stue/kjøkken Sørbølfjell Tomt 71
- Omkostninger
- 70 000 kr
- Totalpris
- 2 850 000 kr
Nøkkelinfo
- Beliggenhet
- På fjellet
- Boligtype
- Hytte
- Eieform
- Eier (Selveier)
- P-plasser
- 2
- Tomteareal
- 836 m² (eiet)
- Bruttoareal
- 41 m²
- Soverom
- 2
- Sengeplasser
- 4
- Meter over havet
- 780
Fasiliteter
Visning
Ta kontakt for å avtale visning.Om eiendommen
Beliggenhet
Hytta skal bygges på Sørbølfjell hytteområde.
Fantastisk turterreng for ski, fotturer og sykkelturer. Jakt og fiskemuligheter i området. Svært kort kjøreavstand fra Oslo og det sentrale østlandsområdet.
Generelt
Tomt
Tomt 71 har helårsvei, vann, avløp og strøm og leveres med parkeringsplass for 2 biler. Åpen tomt med flott utsikt og gode solforhold. Hytta fundamenteres på støpt plate
Hytteleveransen:
Ålhytte med 2 soverom, åpen stue/kjøkkenløsning. Ålhytta kan levere komplette interiørpakker, tegnet av samme arkitekt som har tegnet hytta. Vi leverer gjerne komplett interiør til hytta men dette inngår ikke i pris på dette prospekt.
Strøm, vann og avløp:
El og VVS leveres komplett med rør og avløp, dusj, toalett, servanter og armatur. El-installasjoner inkluderer hovedinntak, hovedtavle, alle nødvendige kurser og jordsikringer, samt 2 varmekabler.
Generelt
Hytta er ikke påbegynt, og vil kunne tegnes om etter ønske fra kunde. Prisen er basert på indeks per des 25
Adkomst/Tomteforhold
Kjørebeskrivelse
Sørbølfjell ligger i Flå kommune, snaue 2 timers kjøring fra Oslo, kun 10 mil fra Sandvika. Følg riksvei 7 til avkjøring ved Gulsvik. Med ny RV7 mellom Sokna og Gulsvik er det kun 100 km fra Sandvika i Oslo til hytta.
Tomteforhold
Tomten ligger ca. 780 moh, er på ca 830 m2, har helårsvei, vann, avløp og strøm og leveres med parkeirngsplass. Åpen tomt med flott utsikt og gode solforhold. Hytta blir fundamentert på støpt plate.
Innhold
Standard
Ta kontakt med megler for komplett informasjon
Nærområdet
Ålhytta
Annonsene kan være mangelfulle i forhold til lovpålagt opplysningsplikt. Før bindende avtale inngås oppfordres interessenter til å innhente komplett informasjon fra meglerforetaket, selger eller utleier.
















